LoginSubscribe to Alerts

4 bedroom semi detached house in Salisbury

Do you want to get more information from Persimmon Homes
Call: 01722 448 913
Request Details
Arrange Viewing
Video Tour Available 

St Peters Place by Persimmon Homes

The Kennet

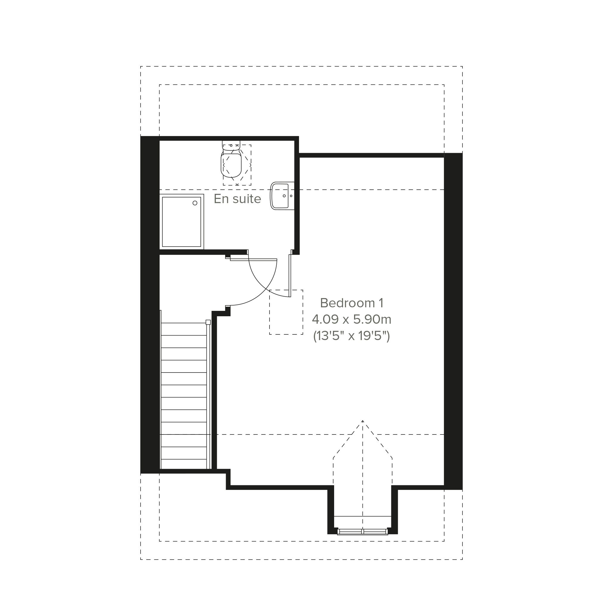
The Kennet is a new home that makes the most of an extra floor to create an en suite bedroom that feels like a grown-up retreat. That still leaves three bedrooms and a bathroom for the rest of the family to call their own, while downstairs, this house has been designed to make sure theres plenty of space for all the action of family life.

Additional Information

  • Tenure: Freehold
  • Council tax band: Not made available by local authority until post-occupation

Tenure: Freehold

Property Features

  • Open plan kitchen/dining room with French doors leading into the garden
  • Handy utility room
  • Front-aspect living room
  • Under-stairs storage
  • Downstairs WC
  • Family bathroom
  • Impressive bedroom one with en suite and storage cupboard
  • Energy efficient

Quick mortgage affordability calculator

Tembo is an award-winning mortgage broker
Voted the UK’s Best Mortgage Broker by its customers in 2022 and 2023, Tembo is helping buyers discover their true mortgage affordability.

Tembo boosts its average customer’s maximum budget by £82,000. They do this by not only checking your affordability for over 100 lenders and standard products, but also for a range of budget-boosting specialist schemes.

Schemes include:
Ways for family to support using income, property or savings 
Private part buy part rent & government shared ownership 
Professional mortgages and 5.5x borrowing schemes
Sharia compliant home purchase plans
& so much more

Discover what your budget could be using our simple calculator, and afterwards access personalised interest rates through their full fact-find.

Your home may be repossessed if you do not keep up payments on your mortgage.

Property Floorplans

Click to expand floorplan image.

Property Tour


Contact Persimmon Homes

Want to know more about St Peters Place from Persimmon Homes
Persimmon Homes will use this information to contact you.
ThankYou

Other properties on this development

List Sort: 
986 - The Brampton
4 bedroom detached house for sale
Video Tour 
4 Bedrooms
The Brampton has the flexibility of open-plan space as well as separate private space.
1022 - The Lambridge
4 bedroom detached house for sale
Video Tour 
4 Bedrooms
The detached 4 bed + study Lambridge enjoys a good size open plan family/kitchen room with French doors to rear garden, good size bedrooms, garage & parking
993 - The Barnwood
3 bedroom detached house for sale
Video Tour 
3 Bedrooms
The Barnwood is a detached home that will catch your eye if you are looking for more space for your growing family. Or maybe you want to downsize, but still have room for friends and family to stay.

Property Information

Price Details:
Coming Soon
Bedrooms:
4 bedrooms
Development:

Development Location

Individual savings and affordability may vary.

YOUR HOME MAY BE REPOSSESSED IF YOU DO NOT KEEP UP PAYMENTS ON YOUR MORTGAGE.

If you choose to use Tembo for mortgage advice, we may earn a commission from them for the introduction. This does not negatively impact the amount you'll pay for their service.

Tembo Money Limited (12631312) is a company registered in England and Wales with its registered office at 18 Crucifix Lane, London, SE1 3JW. Tembo is authorised and regulated by the Financial Conduct Authority under the registration number 952652.
© 2026 WhatHouse?
Click here to see your activities