LoginSubscribe to Alerts

3 bedroom end terraced house in Gateshead

Do you want to get more information from Persimmon Homes
Call: 0191 323 0722
Request Details
Arrange Viewing
Video Tour Available 

Birchwood Manor by Persimmon Homes

The Saunton

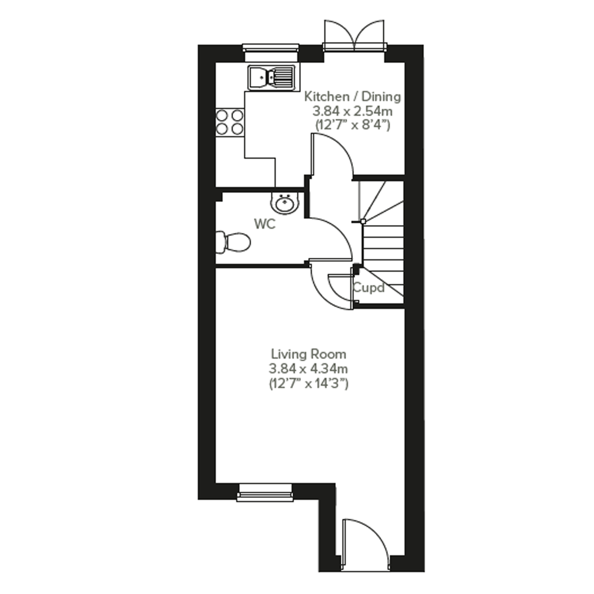
An attractive three-storey home, the Saunton has an open-plan kitchen/dining room, a living room and three bedrooms. The top floor bedroom has an en suite. The enclosed porch, downstairs WC and three storage cupboards mean it`s practical as well as stylish.

Additional Information

  • Tenure: Freehold
  • Council tax band: Not made available by local authority until post-occupation

Tenure: Freehold

Property Features

  • Spacious three-story living
  • Bright kitchen/dining room with French doors into the garden
  • Front aspect living room
  • Downstairs WC
  • Large first bedroom with en suite
  • Handy storage cupboards on the second floor

Quick mortgage affordability calculator

Tembo is an award-winning mortgage broker
Voted the UK’s Best Mortgage Broker by its customers in 2022 and 2023, Tembo is helping buyers discover their true mortgage affordability.

Tembo boosts its average customer’s maximum budget by £82,000. They do this by not only checking your affordability for over 100 lenders and standard products, but also for a range of budget-boosting specialist schemes.

Schemes include:
Ways for family to support using income, property or savings 
Private part buy part rent & government shared ownership 
Professional mortgages and 5.5x borrowing schemes
Sharia compliant home purchase plans
& so much more

Discover what your budget could be using our simple calculator, and afterwards access personalised interest rates through their full fact-find.

Your home may be repossessed if you do not keep up payments on your mortgage.

Property Floorplans

Click to expand floorplan image.

Property Tour


Contact Persimmon Homes

Want to know more about Birchwood Manor from Persimmon Homes
Persimmon Homes will use this information to contact you.
ThankYou

Other properties on this development

List Sort: 
105 - The Marlborough
4 bedroom detached house for sale
4 Bedrooms
The Marlborough is a detached four-bedroom family home offering an open-plan kitchen/breakfast/family room - which has French doors to the garden - and separate living and dining rooms.
65 - The Harley
4 bedroom detached house for sale
4 Bedrooms
The Harley has four bedrooms and an integral garage. A study has been included in the spacious first-floor layout.
87 - The Selwood
4 bedroom detached house for sale
4 Bedrooms
The Selwood is a lovely home. The open-plan kitchen/dining room is perfect for family time. Theres also a living room, an integral garage, a cloakroom and a utility room with outside access.
93 - The Gisburn
4 bedroom detached house for sale
4 Bedrooms
The Gisburn features a bright front-aspect living room leading to a stunning open-plan kitchen/dining room with French doors opening into the garden.
46 - The Gisburn
4 bedroom detached house for sale
4 Bedrooms
The Gisburn features a bright front-aspect living room leading to a stunning open-plan kitchen/dining room with French doors opening into the garden.
100 - The Sherwood Corner
3 bedroom detached house for sale
3 Bedrooms
The three-bedroom Sherwood Corner has everything you need for modern living. Bedroom one is en suite and theres a family bathroom.
54 - The Gisburn
4 bedroom detached house for sale
4 Bedrooms
The Gisburn features a bright front-aspect living room leading to a stunning open-plan kitchen/dining room with French doors opening into the garden.
83 - The Sherwood Corner
3 bedroom detached house for sale
3 Bedrooms
The three-bedroom Sherwood Corner has everything you need for modern living. Bedroom one is en suite and theres a family bathroom.
84 - The Sherwood
3 bedroom detached house for sale
3 Bedrooms
This is a popular three-bedroom home. The Sherwood has an open-plan kitchen/dining room and a bright front-aspect living room.
50 - The Charnwood
3 bedroom detached house for sale
Video Tour 
3 Bedrooms
The Charnwood has a stylish open-plan kitchen/breakfast room and separate utility with garden access. Upstairs, there are three bedrooms - one is en-suite - and a bathroom.
94 - The Dalby
3 bedroom detached house for sale
3 Bedrooms
Popular with families, the Dalby has a light-filled modern open-plan kitchen, a dining room with French doors leading into the garden - ideal for entertaining - a front porch, a garage, a downstairs ...
101 - The Dalby
3 bedroom semi detached house for sale
3 Bedrooms
Popular with families, the Dalby has a light-filled modern open-plan kitchen, a dining room with French doors leading into the garden - ideal for entertaining - a front porch, a garage, a downstairs ...
72 - The Dalby
3 bedroom semi detached house for sale
3 Bedrooms
Popular with families, the Dalby has a light-filled modern open-plan kitchen, a dining room with French doors leading into the garden - ideal for entertaining - a front porch, a garage, a downstairs ...
91 - The Saunton
3 bedroom end terraced house for sale
Video Tour 
3 Bedrooms
An attractive three-storey, three-bedroom family home, the Saunton has an open-plan kitchen/dining room, a living room and three bedrooms. The top floor bedroom has an en suite.
86 - The Danbury
3 bedroom semi detached house for sale
Video Tour 
3 Bedrooms
The Danbury has a lovely natural flow that leads you through the living space. This home will suit first-time buyers and young professionals.
96 - The Danbury
3 bedroom semi detached house for sale
Video Tour 
3 Bedrooms
The Danbury has a lovely natural flow that leads you through the living space. This home will suit first-time buyers and young professionals.
90 - The Braunton
3 bedroom terraced house for sale
3 Bedrooms
The Braunton features a bright open-plan kitchen/dining room with access to the garden and a spacious front-aspect living room, downstairs WC and storage cupboard.

Property Information

Price Details:
£234,995
Bedrooms:
3 bedrooms
Development:

Development Location

Individual savings and affordability may vary.

YOUR HOME MAY BE REPOSSESSED IF YOU DO NOT KEEP UP PAYMENTS ON YOUR MORTGAGE.

If you choose to use Tembo for mortgage advice, we may earn a commission from them for the introduction. This does not negatively impact the amount you'll pay for their service.

Tembo Money Limited (12631312) is a company registered in England and Wales with its registered office at 18 Crucifix Lane, London, SE1 3JW. Tembo is authorised and regulated by the Financial Conduct Authority under the registration number 952652.
© 2026 WhatHouse?
Click here to see your activities