LoginSubscribe to Alerts

4 bedroom semi detached house in Fulford

Do you want to get more information from Persimmon Homes
Call: 01904 809 554

Germany Beck by Persimmon Homes

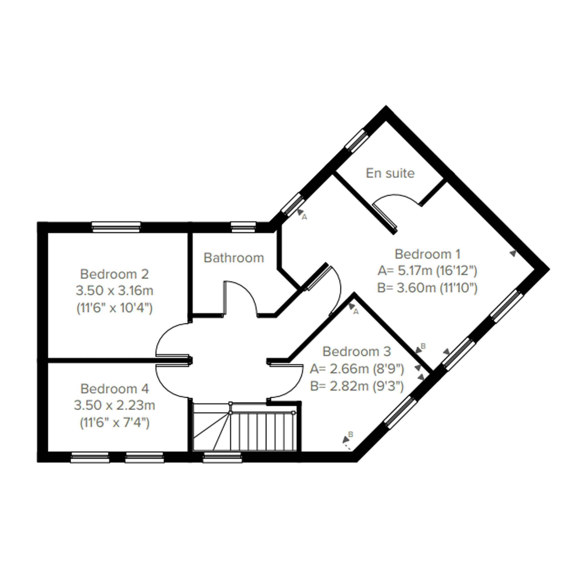
The Coxwold

The Coxwold is a four-bedroom family home with a great sense of space. The dual-aspect living room is a lovely relaxing room with French doors opening into the garden. There`s a separate dining room, and the kitchen has a utility room with a door to the garden as well as to a ground floor WC. Upstairs, bedroom one has a en suite. Three further bedrooms, a family bathroom.

Additional Information

  • Tenure: Freehold
  • Annual service charge amount (£): 113
  • Council tax band: Not made available by local authority until post-occupation

Tenure: Freehold

Property Features

  • Bright spacious dual-aspect living room with French doors leading into garden
  • Separate kitchen
  • Separate dining room
  • Bedroom 1 with en suite
  • Family bathroom with modern fixtures and fittings
  • Downstairs WC
  • Useful utility room

Quick mortgage affordability calculator

Tembo is an award-winning mortgage broker
Voted the UK’s Best Mortgage Broker by its customers in 2022 and 2023, Tembo is helping buyers discover their true mortgage affordability.

Tembo boosts its average customer’s maximum budget by £82,000. They do this by not only checking your affordability for over 100 lenders and standard products, but also for a range of budget-boosting specialist schemes.

Schemes include:
Ways for family to support using income, property or savings 
Private part buy part rent & government shared ownership 
Professional mortgages and 5.5x borrowing schemes
Sharia compliant home purchase plans
& so much more

Discover what your budget could be using our simple calculator, and afterwards access personalised interest rates through their full fact-find.

Your home may be repossessed if you do not keep up payments on your mortgage.

Property Floorplans

Click to expand floorplan image.

Contact Persimmon Homes

Want to know more about Germany Beck from Persimmon Homes
Persimmon Homes will use this information to contact you.
ThankYou

Other properties on this development

List Sort: 
564 - The Kilburn
4 bedroom detached house for sale
4 Bedrooms
The Kilburn is a detached family home. The modern and stylish open-plan kitchen/dining room. Theres also a spacious living room, separate study, downstairs WC and handy utility with outside access.
596 - The Malton
3 bedroom detached house for sale
3 Bedrooms
The Malton is a three-bedroom family home with an open-plan kitchen/dining room and a well-proportioned living room. Bedrooms one and two are en suite, theres a separate study and a family bathroom.
595 - The Malton
3 bedroom detached house for sale
3 Bedrooms
The Malton is a three-bedroom family home with an open-plan kitchen/dining room and a well-proportioned living room. Bedrooms one and two are en suite, theres a separate study and a family bathroom.
577 - The Cawood
3 bedroom detached house for sale
3 Bedrooms
A nicely-proportioned three-bedroom detached home, the Cawood has everything you need for modern living.
586 - The Cawood
3 bedroom detached house for sale
3 Bedrooms
A nicely-proportioned three-bedroom detached home, the Cawood has everything you need for modern living.
587 - The Butterwick
3 bedroom semi detached house for sale
3 Bedrooms
The Butterwick is a lovely three-bedroom family home with a bright and modern open-plan kitchen/dining room with French doors leading out into the garden.
574 - The Butterwick
3 bedroom semi detached house for sale
3 Bedrooms
The Butterwick is a lovely three-bedroom family home with a bright and modern open-plan kitchen/dining room with French doors leading out into the garden.
561 - The Wistow
2 bedroom semi detached house for sale
2 Bedrooms
The Wistow has a stylish open-plan kitchen/dining room with French doors to the garden, a spacious living room, a cloakroom and a built-in storage cupboard.
560 - The Wistow
2 bedroom semi detached house for sale
2 Bedrooms
The Wistow has a stylish open-plan kitchen/dining room with French doors to the garden, a spacious living room, a cloakroom and a built-in storage cupboard.
557 - The Wistow
2 bedroom end terraced house for sale
2 Bedrooms
The Wistow has a stylish open-plan kitchen/dining room with French doors to the garden, a spacious living room, a cloakroom and a built-in storage cupboard.
558 - The Wistow
2 bedroom terraced house for sale
2 Bedrooms
The Wistow has a stylish open-plan kitchen/dining room with French doors to the garden, a spacious living room, a cloakroom and a built-in storage cupboard.

Property Information

Price Details:
£485,000
Bedrooms:
4 bedrooms
Development:

Development Location

Individual savings and affordability may vary.

YOUR HOME MAY BE REPOSSESSED IF YOU DO NOT KEEP UP PAYMENTS ON YOUR MORTGAGE.

If you choose to use Tembo for mortgage advice, we may earn a commission from them for the introduction. This does not negatively impact the amount you'll pay for their service.

Tembo Money Limited (12631312) is a company registered in England and Wales with its registered office at 18 Crucifix Lane, London, SE1 3JW. Tembo is authorised and regulated by the Financial Conduct Authority under the registration number 952652.
© 2026 WhatHouse?
Click here to see your activities