LoginSubscribe to Alerts

3 bedroom detached house in Caister on Sea

Do you want to get more information from Persimmon Homes
Call: 01493 800879
Request Details
Arrange Viewing
Video Tour Available 

Mulberry Park by Persimmon Homes

The Sherwood

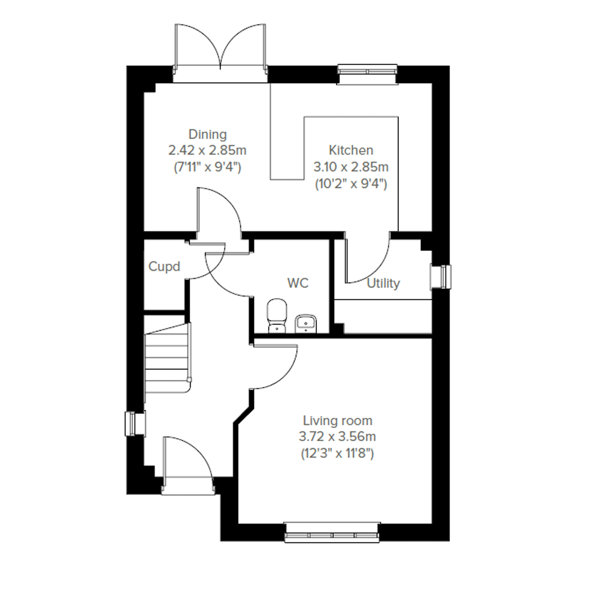
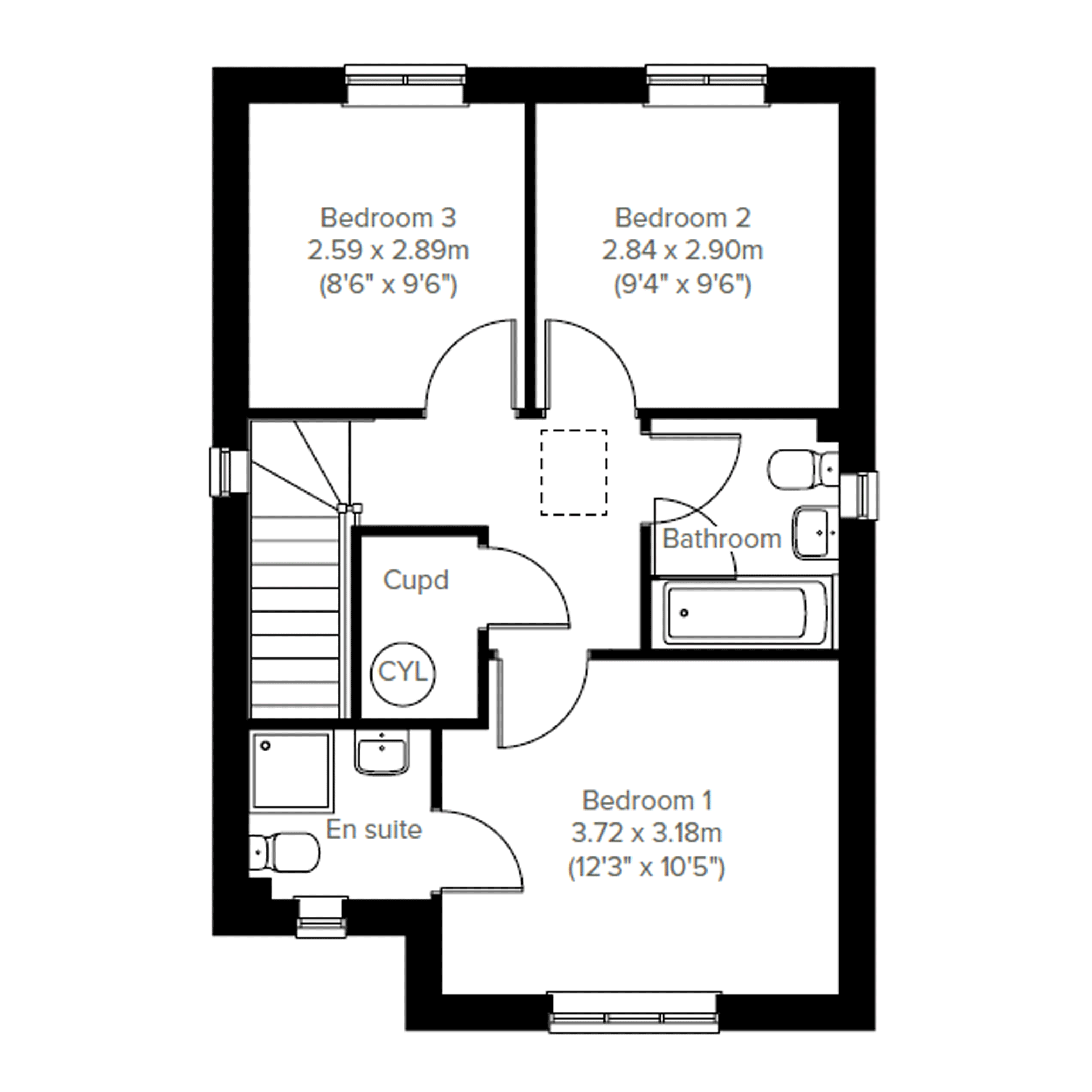
The Sherwood opens its doors to family life, with the balance of an open-plan kitchen/dining room and a separate living room. That means a balance of family time and quiet time for you all to make the most of. Three bedrooms and two bathrooms mean calm mornings getting ready for school and work, and French doors to the garden mean a lovely place to start and end the day.

Additional Information

  • Tenure: Freehold
  • Council tax band: Not made available by local authority until post-occupation

Tenure: Freehold

Property Features

  • Open plan kitchen/dining room with French doors leading onto the garden
  • Generous front-aspect living room
  • En suite to bedroom one
  • Downstairs WC
  • Separate utility
  • Two handy storage cupboards

Quick mortgage affordability calculator

Tembo is an award-winning mortgage broker
Voted the UK’s Best Mortgage Broker by its customers in 2022 and 2023, Tembo is helping buyers discover their true mortgage affordability.

Tembo boosts its average customer’s maximum budget by £82,000. They do this by not only checking your affordability for over 100 lenders and standard products, but also for a range of budget-boosting specialist schemes.

Schemes include:
Ways for family to support using income, property or savings 
Private part buy part rent & government shared ownership 
Professional mortgages and 5.5x borrowing schemes
Sharia compliant home purchase plans
& so much more

Discover what your budget could be using our simple calculator, and afterwards access personalised interest rates through their full fact-find.

Your home may be repossessed if you do not keep up payments on your mortgage.

Property Floorplans

Click to expand floorplan image.

Property Tour



Contact Persimmon Homes

Want to know more about Mulberry Park from Persimmon Homes
Persimmon Homes will use this information to contact you.
ThankYou

Other properties on this development

List Sort: 
122 - The Lambridge
4 bedroom detached house for sale
4 Bedrooms
The Lambridge is a four-bedroom family home with a spacious kitchen/dining area with French doors to the rear garden, a bright living room with a bay window, utility room, and a downstairs WC.
109 - The Lambridge
4 bedroom detached house for sale
4 Bedrooms
The Lambridge is a four-bedroom family home with a spacious kitchen/dining area with French doors to the rear garden, a bright living room with a bay window, utility room, and a downstairs WC.
123 - The Brampton
4 bedroom detached house for sale
Video Tour 
4 Bedrooms
The Brampton has the flexibility of open-plan space as well as separate private space.
129 - The Brampton
4 bedroom detached house for sale
Video Tour 
4 Bedrooms
The Brampton has the flexibility of open-plan space as well as separate private space.
120 - The Barnwood Drive Through
4 bedroom detached house for sale
Video Tour 
4 Bedrooms
The clever design of a drive-through for your car and an ensuite bedroom above it, adds an extra dimension to this family-sized new home.
132 - The Marston
4 bedroom detached house for sale
Video Tour 
4 Bedrooms
The Marston is a detached family house with five bedrooms and thats all just on the first floor.
112 - The Barnwood
3 bedroom detached house for sale
Video Tour 
3 Bedrooms
The Barnwood is a detached home that will catch your eye if you are looking for more space for your growing family. Or maybe you want to downsize, but still have room for friends and family to stay.
111 - The Sherwood
3 bedroom detached house for sale
Video Tour 
3 Bedrooms
Designed with families in mind, the Sherwood is a stunning three-bedroom detached home. Theres also a generous front-aspect living room and an en suite to bedroom one.
110 - The Sherwood
3 bedroom detached house for sale
Video Tour 
3 Bedrooms
Designed with families in mind, the Sherwood is a stunning three-bedroom detached home. Theres also a generous front-aspect living room and an en suite to bedroom one.
131 - The Sherwood
3 bedroom detached house for sale
Video Tour 
3 Bedrooms
Designed with families in mind, the Sherwood is a stunning three-bedroom detached home. Theres also a generous front-aspect living room and an en suite to bedroom one.
128 - The Sherwood
3 bedroom detached house for sale
Video Tour 
3 Bedrooms
Designed with families in mind, the Sherwood is a stunning three-bedroom detached home. Theres also a generous front-aspect living room and an en suite to bedroom one.
93 - The Deepdale
2 bedroom semi detached house for sale
Video Tour 
2 Bedrooms
The Deepdale has a lovely balanced feel, created by a central entrance hall and generous living space to either side. The third, smaller room would make a great home office.
92 - The Danbury
3 bedroom semi detached house for sale
Video Tour 
3 Bedrooms
The three-bedroom Danbury has an open plan kitchen/dining room with garden access and a spacious front-aspect living room thats ideal for entertaining.
96 - The Deepdale
2 bedroom semi detached house for sale
Video Tour 
2 Bedrooms
The Deepdale has a lovely balanced feel, created by a central entrance hall and generous living space to either side. The third, smaller room would make a great home office.
145 - The Galloway
3 bedroom semi detached house for sale
Video Tour 
3 Bedrooms
The Galloway is a home to grow into and a home to grow up in and it will suit you down to the ground.
95 - The Danbury
3 bedroom semi detached house for sale
Video Tour 
3 Bedrooms
The three-bedroom Danbury has an open plan kitchen/dining room with garden access and a spacious front-aspect living room thats ideal for entertaining.
142 - The Stanton
3 bedroom semi detached house for sale
3 Bedrooms
This new home takes a new approach to modern living. The Stanton will appeal to homebuyers who want to enjoy imaginative and flexible space. This is a house that does just that.
71 - The Danbury
3 bedroom end terraced house for sale
Video Tour 
3 Bedrooms
The three-bedroom Danbury has an open plan kitchen/dining room with garden access and a spacious front-aspect living room thats ideal for entertaining.
70 - The Danbury
3 bedroom terraced house for sale
Video Tour 
3 Bedrooms
The three-bedroom Danbury has an open plan kitchen/dining room with garden access and a spacious front-aspect living room thats ideal for entertaining.

Property Information

Price Details:
£340,000
Bedrooms:
3 bedrooms
Development:

Development Location

Individual savings and affordability may vary.

YOUR HOME MAY BE REPOSSESSED IF YOU DO NOT KEEP UP PAYMENTS ON YOUR MORTGAGE.

If you choose to use Tembo for mortgage advice, we may earn a commission from them for the introduction. This does not negatively impact the amount you'll pay for their service.

Tembo Money Limited (12631312) is a company registered in England and Wales with its registered office at 18 Crucifix Lane, London, SE1 3JW. Tembo is authorised and regulated by the Financial Conduct Authority under the registration number 952652.
© 2026 WhatHouse?
Click here to see your activities