LoginSubscribe to Alerts

4 bedroom detached house in Burgh Castle

Do you want to get more information from Persimmon Homes
Call: 01493 801 285

Bluebell Meadow by Persimmon Homes

The Lambridge

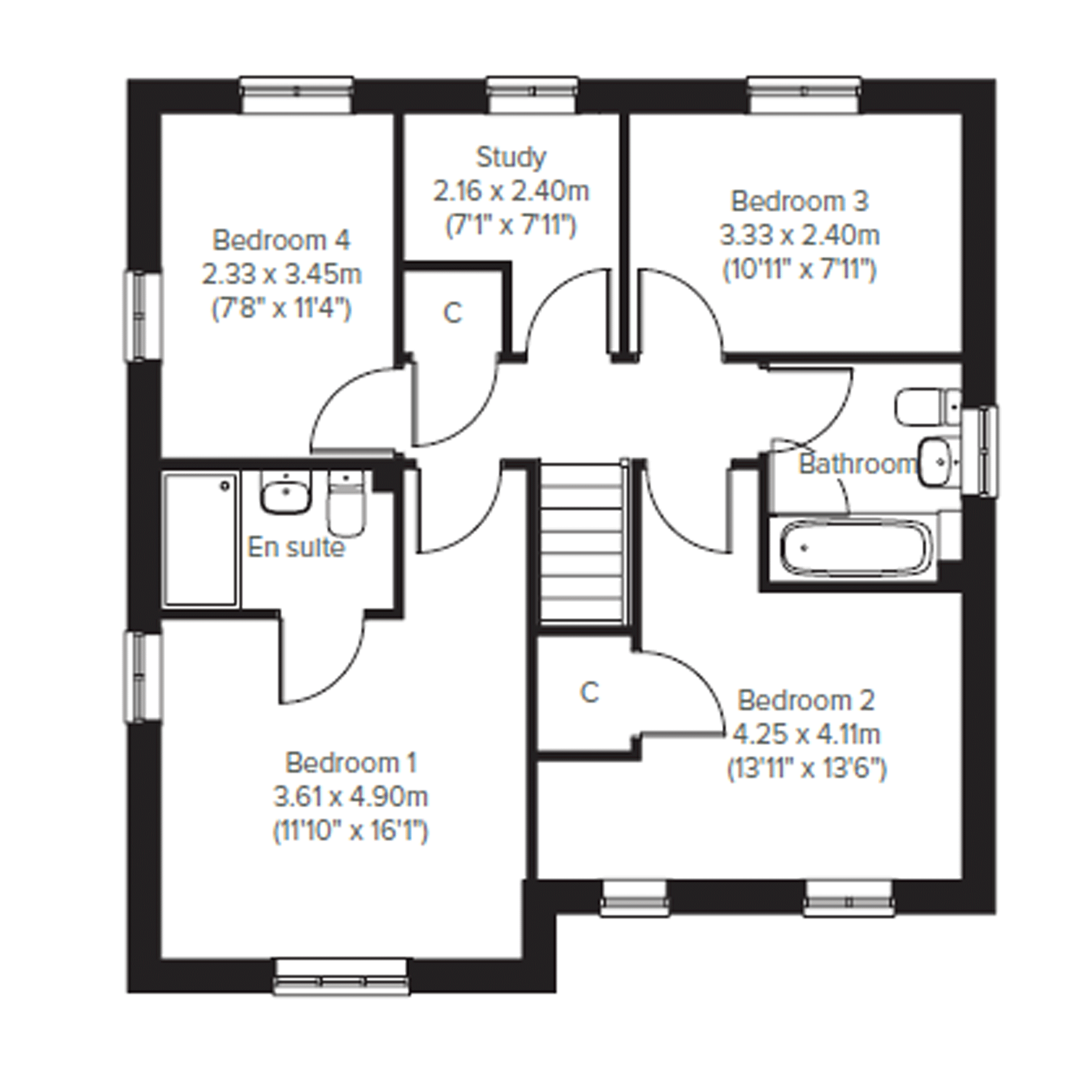
The Lambridge is a four-bedroom family home. The spacious kitchen/family/dining room enjoys an open aspect through French doors to the rear garden. Theres a bright front-aspect living room with a bay window, a downstairs WC and handy utility. Upstairs youll find four bedrooms - bedroom one benefiting from an en suite - plus a convenient study, modern-fitted family bathroom and two storage cupboards.

Additional Information

  • Tenure: Freehold
  • Council tax band: Not made available by local authority until post-occupation

Tenure: Freehold

Property Features

  • Impressive kitchen/family/dining room with French doors to garden
  • En suite to bedroom 1
  • Downstairs WC and utility room with side access
  • Bay window to the living room
  • Plenty of storage throughout
  • Family bathroom with modern fixtures and fittings
  • Study upstairs
  • Energy efficient

Quick mortgage affordability calculator

Tembo is an award-winning mortgage broker
Voted the UK’s Best Mortgage Broker by its customers in 2022 and 2023, Tembo is helping buyers discover their true mortgage affordability.

Tembo boosts its average customer’s maximum budget by £82,000. They do this by not only checking your affordability for over 100 lenders and standard products, but also for a range of budget-boosting specialist schemes.

Schemes include:
Ways for family to support using income, property or savings 
Private part buy part rent & government shared ownership 
Professional mortgages and 5.5x borrowing schemes
Sharia compliant home purchase plans
& so much more

Discover what your budget could be using our simple calculator, and afterwards access personalised interest rates through their full fact-find.

Your home may be repossessed if you do not keep up payments on your mortgage.

Property Floorplans

Click to expand floorplan image.

Contact Persimmon Homes

Want to know more about Bluebell Meadow from Persimmon Homes
Persimmon Homes will use this information to contact you.
ThankYou

Other properties on this development

List Sort: 
779 - The Kielder
4 bedroom detached house for sale
Video Tour 
4 Bedrooms
The Kielder is a four-bedroom detached family home thats perfect for modern living with an open-plan kitchen/family room, a living room, a dining room, a downstairs WC and a utility room with outside ...
806 - The Lambridge
4 bedroom detached house for sale
4 Bedrooms
The Lambridge is a four-bedroom family home with a spacious kitchen/dining area with French doors to the rear garden, a bright living room with a bay window, utility room, and a downstairs WC.
786 - The Lambridge
4 bedroom detached house for sale
4 Bedrooms
The Lambridge is a four-bedroom family home with a spacious kitchen/dining area with French doors to the rear garden, a bright living room with a bay window, utility room, and a downstairs WC.
803 - The Burnham
4 bedroom detached house for sale
Video Tour 
4 Bedrooms
The Burnham is a detached home with an integral garage, and a good-sized living room with a door leading into a bright kitchen/dining room - perfect for family life and entertaining.
789 - The Barndale
3 bedroom detached house for sale
3 Bedrooms
The Barndale has a bright open plan kitchen/dining room leading to a handy utility room. The spacious living room has French doors leading into the garden.
809 - The Barndale
3 bedroom detached house for sale
3 Bedrooms
The Barndale has a bright open plan kitchen/dining room leading to a handy utility room. The spacious living room has French doors leading into the garden.
788 - The Burnham
4 bedroom detached house for sale
Video Tour 
4 Bedrooms
The Burnham is a detached home with an integral garage, and a good-sized living room with a door leading into a bright kitchen/dining room - perfect for family life and entertaining.
782 - The Sherwood
3 bedroom detached house for sale
Video Tour 
3 Bedrooms
Designed with families in mind, the Sherwood is a stunning three-bedroom detached home. Theres also a generous front-aspect living room and an en suite to bedroom one.
785 - The Sherwood
3 bedroom detached house for sale
Video Tour 
3 Bedrooms
Designed with families in mind, the Sherwood is a stunning three-bedroom detached home. Theres also a generous front-aspect living room and an en suite to bedroom one.
792 - The Galloway
3 bedroom end terraced house for sale
Video Tour 
3 Bedrooms
The Galloway is a home to grow into and a home to grow up in and it will suit you down to the ground.
793 - The Galloway
3 bedroom terraced house for sale
Video Tour 
3 Bedrooms
The Galloway is a home to grow into and a home to grow up in and it will suit you down to the ground.
791 - The Deepdale
2 bedroom semi detached house for sale
Video Tour 
2 Bedrooms
The Deepdale has a lovely balanced feel, created by a central entrance hall and generous living space to either side.
801 - The Deepdale
2 bedroom semi detached house for sale
Video Tour 
2 Bedrooms
The Deepdale has a lovely balanced feel, created by a central entrance hall and generous living space to either side.
797 - The Danbury
2 bedroom end terraced house for sale
Video Tour 
2 Bedrooms
The two-bedroom Danbury has an open plan kitchen/dining room with garden access and a spacious front-aspect living room thats ideal for entertaining.
796 - The Danbury
2 bedroom terraced house for sale
Video Tour 
2 Bedrooms
The two-bedroom Danbury has an open plan kitchen/dining room with garden access and a spacious front-aspect living room thats ideal for entertaining.
790 - The Cromer
2 bedroom semi detached house for sale
2 Bedrooms
The two-bedroom Cromer has a modern open plan kitchen/dining room rear-aspect living room with French doors to the garden. A handy downstairs WC and great storage complete the ground floor.
799 - The Cromer
2 bedroom semi detached house for sale
2 Bedrooms
The two-bedroom Cromer has a modern open plan kitchen/dining room rear-aspect living room with French doors to the garden. A handy downstairs WC and great storage complete the ground floor.
798 - The Cromer
2 bedroom semi detached house for sale
2 Bedrooms
The two-bedroom Cromer has a modern open plan kitchen/dining room rear-aspect living room with French doors to the garden. A handy downstairs WC and great storage complete the ground floor.
825 - The Danbury
2 bedroom terraced house for sale
Video Tour 
2 Bedrooms
The two-bedroom Danbury has an open plan kitchen/dining room with garden access and a spacious front-aspect living room thats ideal for entertaining.
812 - The Cromer
2 bedroom semi detached house for sale
2 Bedrooms
The two-bedroom Cromer has a modern open plan kitchen/dining room rear-aspect living room with French doors to the garden. A handy downstairs WC and great storage complete the ground floor.
824 - The Danbury
2 bedroom terraced house for sale
Video Tour 
2 Bedrooms
The two-bedroom Danbury has an open plan kitchen/dining room with garden access and a spacious front-aspect living room thats ideal for entertaining.
811 - The Cromer
2 bedroom semi detached house for sale
2 Bedrooms
The two-bedroom Cromer has a modern open plan kitchen/dining room rear-aspect living room with French doors to the garden. A handy downstairs WC and great storage complete the ground floor.
781 - The Redhill
2 bedroom house for sale
Video Tour 
2 Bedrooms
The Redhill is a super convenient, if you need your car on a daily basis and dont want the hassle of finding parking after a busy day, this is an ideal choice for you.
794 - The Ashridge
1 bedroom house for sale
Video Tour 
1 Bedroom
The Ashridge takes a new look at single-storey living by putting your living space on the first floor.

Property Information

Price Details:
£448,000
Bedrooms:
4 bedrooms
Development:

Development Location

Individual savings and affordability may vary.

YOUR HOME MAY BE REPOSSESSED IF YOU DO NOT KEEP UP PAYMENTS ON YOUR MORTGAGE.

If you choose to use Tembo for mortgage advice, we may earn a commission from them for the introduction. This does not negatively impact the amount you'll pay for their service.

Tembo Money Limited (12631312) is a company registered in England and Wales with its registered office at 18 Crucifix Lane, London, SE1 3JW. Tembo is authorised and regulated by the Financial Conduct Authority under the registration number 952652.
© 2026 WhatHouse?
Click here to see your activities