LoginSubscribe to Alerts

4 bedroom detached house in Tiptree

Do you want to get more information from Persimmon Homes
Call: 01621 733912

Scarlett Mews by Persimmon Homes

The Wilkin

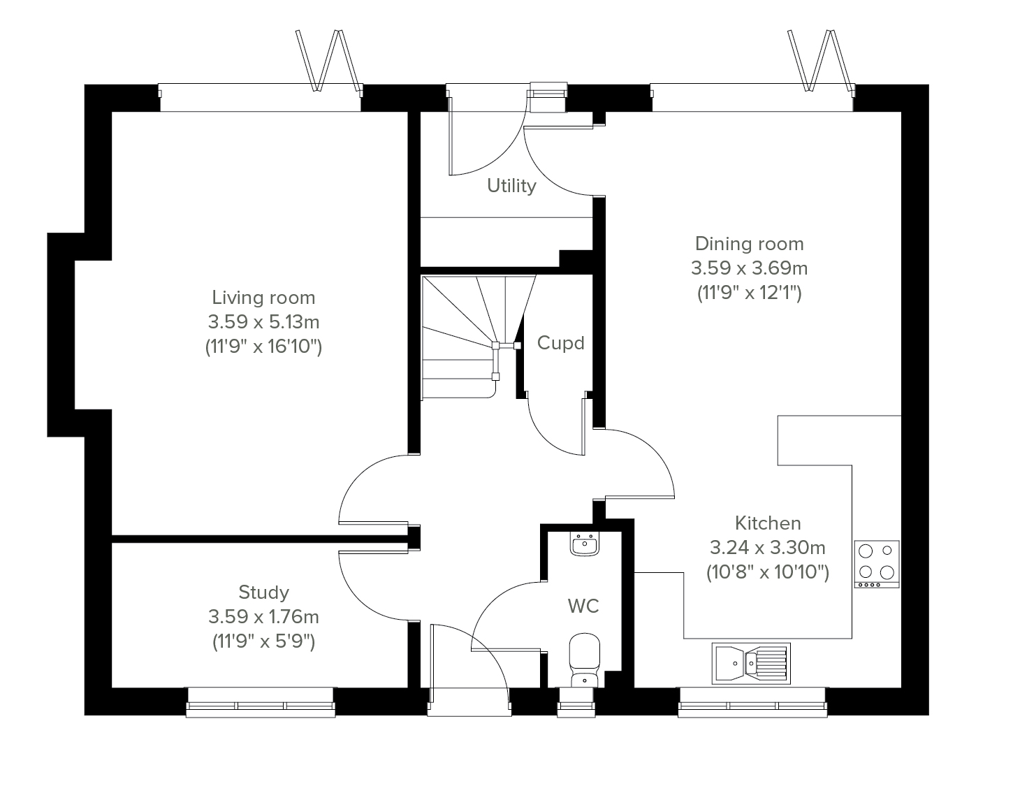
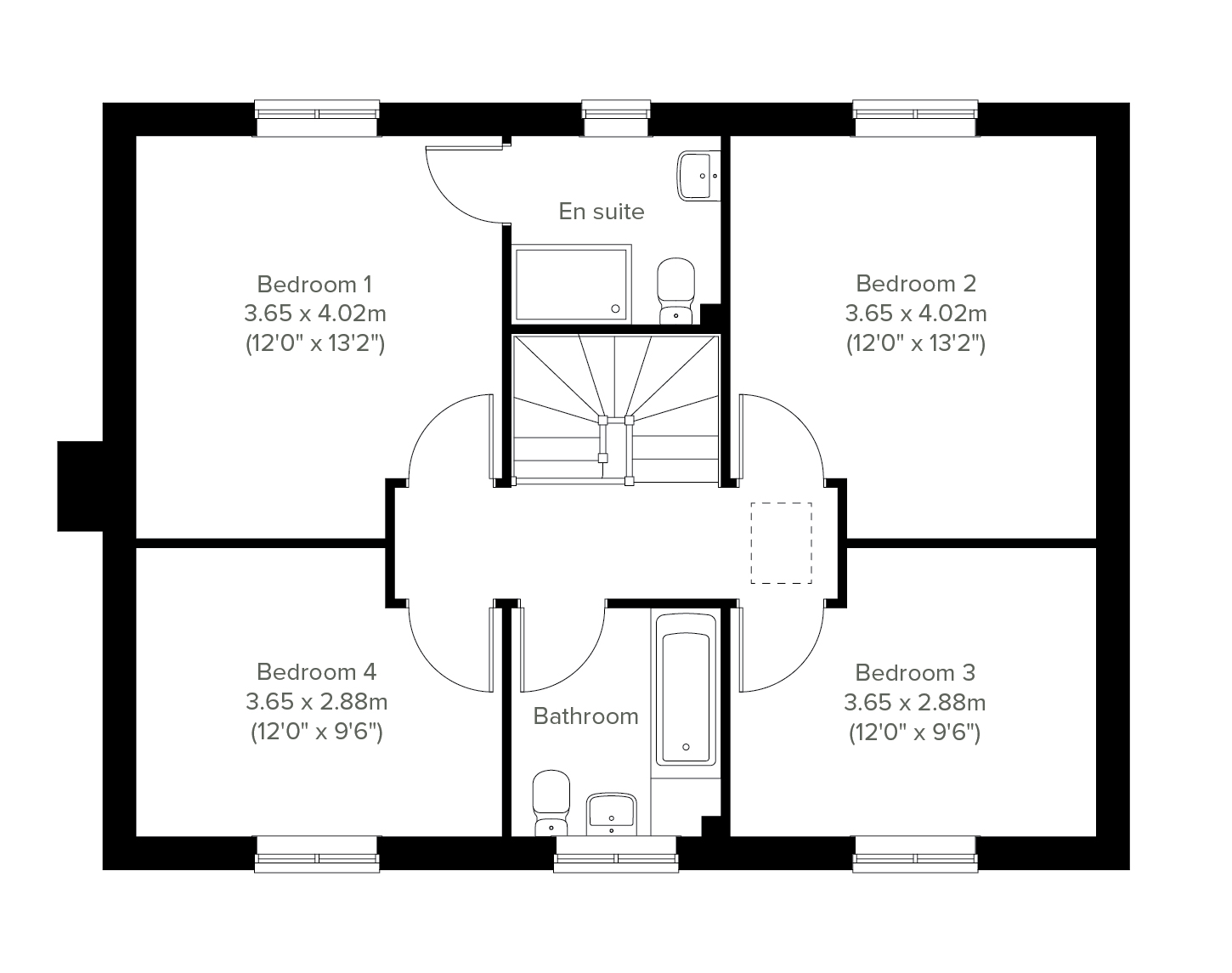
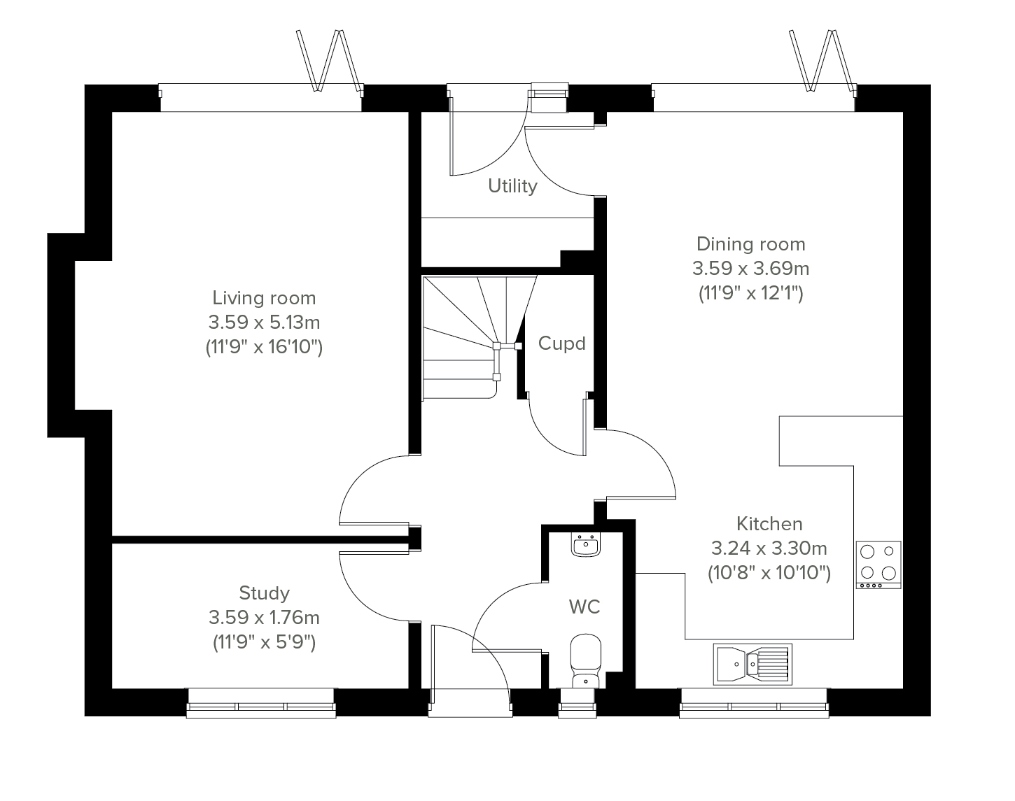
The Wilkin is a beautifully designed four-bedroom home, perfect for modern family living. The ground floor offers a spacious living room and impressive kitchen/dining room with bi-fold doors, creating the ideal space for relaxing and entertaining. A downstairs study, handy WC and utility room add extra convenience. Upstairs, four well-proportioned bedrooms provide plenty of space for the whole family, with bedroom one featuring its own en suite.

Additional Information

  • Tenure: Freehold
  • Council tax band: Not made available by local authority until post-occupation

Tenure: Freehold

Property Features

  • Impressive open plan kitchen/dining room
  • Family bathroom with modern fixtures and fittings
  • Downstairs WC and storage throughout
  • Bi-fold doors to the garden
  • Spacious double bedrooms
  • En suite to bedroom 1

Quick mortgage affordability calculator

Tembo is an award-winning mortgage broker
Voted the UK’s Best Mortgage Broker by its customers in 2022 and 2023, Tembo is helping buyers discover their true mortgage affordability.

Tembo boosts its average customer’s maximum budget by £82,000. They do this by not only checking your affordability for over 100 lenders and standard products, but also for a range of budget-boosting specialist schemes.

Schemes include:
Ways for family to support using income, property or savings 
Private part buy part rent & government shared ownership 
Professional mortgages and 5.5x borrowing schemes
Sharia compliant home purchase plans
& so much more

Discover what your budget could be using our simple calculator, and afterwards access personalised interest rates through their full fact-find.

Your home may be repossessed if you do not keep up payments on your mortgage.

Property Floorplans

Click to expand floorplan image.

Contact Persimmon Homes

Want to know more about Scarlett Mews from Persimmon Homes
Persimmon Homes will use this information to contact you.
ThankYou

Other properties on this development

List Sort: 
53 - The St Clement
4 bedroom detached house for sale
4 Bedrooms
The St Clements bright kitchen/dining room, with bi-fold doors to the garden, is perfect for spending time as a family and for entertaining. Upstairs bedroom one has an en suite.
56 - The Wilkin
4 bedroom detached house for sale
4 Bedrooms
The Wilkin is a four-bedroom home. The ground floor offers a spacious living room and impressive kitchen/dining room with bi-fold doors, creating the ideal space for relaxing and entertaining.
122 - The Victoria
3 bedroom end terraced house for sale
3 Bedrooms
The Victoria is a three-bedroom home over three floors, featuring a bayfronted living room, a kitchen/dining room with French doors and a downstairs WC.
55 - The Damson
4 bedroom semi detached house for sale
4 Bedrooms
The Damson features a generously-sized open plan kitchen/dining/living room that benefits from bi-fold doors to the garden. There are also handy storage cupboards and a convenient downstairs WC.
129 - The Cumberland
3 bedroom terraced house for sale
3 Bedrooms
The Cumberland has a kitchen/dining room, WC, cupboards, and a living room with French doors to the garden.
91 - The Morello
3 bedroom semi detached house for sale
3 Bedrooms
This three-bedroom home features a stylish open-plan kitchen/dining/living room with French doors leading into the garden. Upstairs, there are three spacious bedrooms and a family bathroom.
108 - The Cherrywood
3 bedroom semi detached house for sale
3 Bedrooms
The Cherrywood is a threebedroom home offering a bayfronted living room and a bright kitchen/dining room, both with French doors to the garden.
90 - The Quince
3 bedroom semi detached house for sale
3 Bedrooms
The Quince has a stylish open-plan kitchen/dining/living room with French doors leading into the garden, handy storage cupboards and a WC.
123 - The Cumberland
3 bedroom terraced house for sale
3 Bedrooms
The Cumberland has a kitchen/dining room, WC, cupboards, and a living room with French doors to the garden.
109 - The Cherrywood
3 bedroom semi detached house for sale
3 Bedrooms
The Cherrywood is a threebedroom home offering a bayfronted living room and a bright kitchen/dining room, both with French doors to the garden.
128 - The Medler
3 bedroom terraced house for sale
3 Bedrooms
A beautifully-proportioned three-bedroom home, the Medler has everything you need for modern living. The first floor is home to three bedrooms and a family bathroom.

Property Information

Price Details:
£560,000
Bedrooms:
4 bedrooms
Development:

Development Location

Individual savings and affordability may vary.

YOUR HOME MAY BE REPOSSESSED IF YOU DO NOT KEEP UP PAYMENTS ON YOUR MORTGAGE.

If you choose to use Tembo for mortgage advice, we may earn a commission from them for the introduction. This does not negatively impact the amount you'll pay for their service.

Tembo Money Limited (12631312) is a company registered in England and Wales with its registered office at 18 Crucifix Lane, London, SE1 3JW. Tembo is authorised and regulated by the Financial Conduct Authority under the registration number 952652.
© 2026 WhatHouse?
Click here to see your activities