LoginSubscribe to Alerts

2 bedroom semi detached house in Great Totham

Do you want to get more information from Persimmon Homes
Call: 01621731182

Willow's Reach by Persimmon Homes

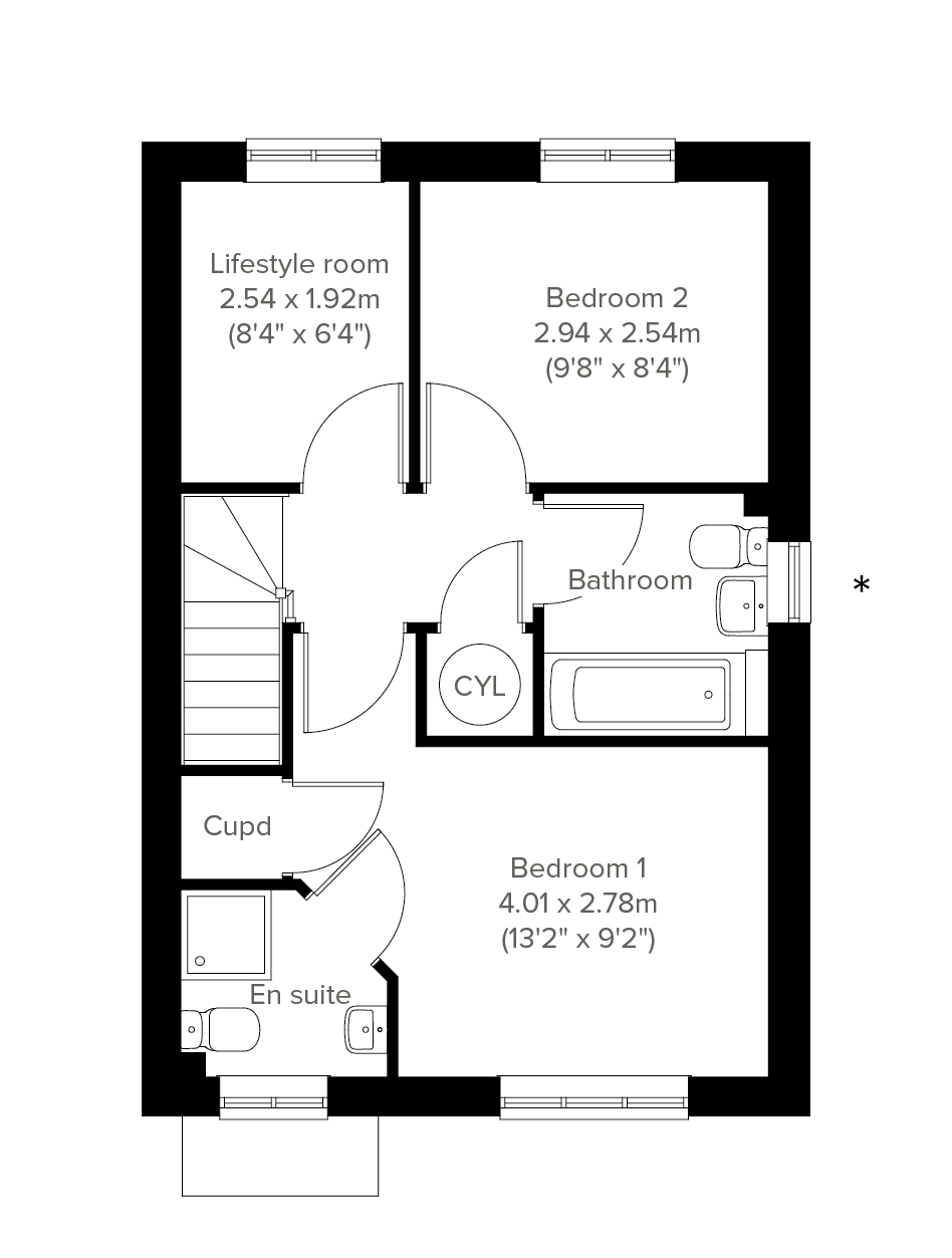
The Heywood

The Heywood opens its doors to family life, with the balance of an open plan kitchen/dining room and a separate living room. That means a balance of family time and quiet time for you all to make the most of. Two bedrooms and two bathrooms mean calm mornings getting ready for school and work, and French doors to the garden mean a lovely place to start and end the day.

Additional Information

  • Tenure: Freehold
  • Council tax band: Not made available by local authority until post-occupation

Tenure: Freehold

Property Features

  • Open plan kitchen/dining living room with French doors
  • En suite to bedroom 1
  • Flexible lifestyle room
  • Storage
  • WC

Quick mortgage affordability calculator

Tembo is an award-winning mortgage broker
Voted the UK’s Best Mortgage Broker by its customers in 2022 and 2023, Tembo is helping buyers discover their true mortgage affordability.

Tembo boosts its average customer’s maximum budget by £82,000. They do this by not only checking your affordability for over 100 lenders and standard products, but also for a range of budget-boosting specialist schemes.

Schemes include:
Ways for family to support using income, property or savings 
Private part buy part rent & government shared ownership 
Professional mortgages and 5.5x borrowing schemes
Sharia compliant home purchase plans
& so much more

Discover what your budget could be using our simple calculator, and afterwards access personalised interest rates through their full fact-find.

Your home may be repossessed if you do not keep up payments on your mortgage.

Property Floorplans

Click to expand floorplan image.

Contact Persimmon Homes

Want to know more about Willow's Reach from Persimmon Homes
Persimmon Homes will use this information to contact you.
ThankYou

Other properties on this development

List Sort: 
214 - The Beaumont Bay
4 bedroom detached house for sale
4 Bedrooms
The Beaumont Bay is a versatile four-bedroom detached home, combining open-plan family space with private areas.
9 - The Limebrook
3 bedroom detached house for sale
3 Bedrooms
The Limebrook is a modern 3-bedroom family home featuring a bright open-plan kitchen/dining area with bay window, spacious living room with French doors to the garden, plus utility, WC, ample storage, ...
8 - The Blackwater
3 bedroom detached house for sale
3 Bedrooms
If your wish list includes three bedrooms, two bathrooms and smart ground-floor space, the Blackwater delivers.
6 - The Wentworth
3 bedroom semi detached house for sale
3 Bedrooms
The Wentworth is a new home that embraces all the comings and goings of family life.
215 - The Cedar
2 bedroom semi detached house for sale
2 Bedrooms
The Cedar is ideal for first-time buyers. Personalise the open-plan living space, enjoy a welcoming home, and benefit from a bedroom with ample storage and a versatile second bedroom or study.
216 - The Cedar
2 bedroom terraced house for sale
2 Bedrooms
The Cedar is ideal for first-time buyers. Personalise the open-plan living space, enjoy a welcoming home, and benefit from a bedroom with ample storage and a versatile second bedroom or study.

Property Information

Price Details:
£390,000
Bedrooms:
2 bedrooms
Development:

Development Location

Individual savings and affordability may vary.

YOUR HOME MAY BE REPOSSESSED IF YOU DO NOT KEEP UP PAYMENTS ON YOUR MORTGAGE.

If you choose to use Tembo for mortgage advice, we may earn a commission from them for the introduction. This does not negatively impact the amount you'll pay for their service.

Tembo Money Limited (12631312) is a company registered in England and Wales with its registered office at 18 Crucifix Lane, London, SE1 3JW. Tembo is authorised and regulated by the Financial Conduct Authority under the registration number 952652.
© 2026 WhatHouse?
Click here to see your activities