LoginSubscribe to Alerts

2 bedroom flat in Elburton

Do you want to get more information from Persimmon Homes
Call: 01752 967 050

Saltram Meadow by Persimmon Homes

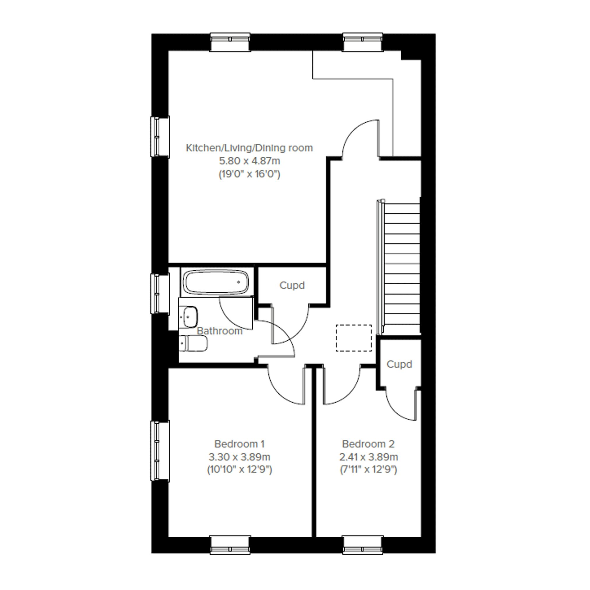
The Stapleford

The Stapleford has a stylish open plan kitchen/living/dining room, two bedrooms, a bathroom, handy storage cupboards and off-road parking. Ideal if you're a first-time buyer looking for a fresh modern home you can make your own.

Additional Information

  • Tenure: Leasehold
  • Council tax band: Not made available by local authority until post-occupation

Tenure: Leasehold

Property Features

  • Open plan kitchen/living/dining room
  • Storage cupboards
  • Good size bathroom

Quick mortgage affordability calculator

Tembo is an award-winning mortgage broker
Voted the UK’s Best Mortgage Broker by its customers in 2022 and 2023, Tembo is helping buyers discover their true mortgage affordability.

Tembo boosts its average customer’s maximum budget by £82,000. They do this by not only checking your affordability for over 100 lenders and standard products, but also for a range of budget-boosting specialist schemes.

Schemes include:
Ways for family to support using income, property or savings 
Private part buy part rent & government shared ownership 
Professional mortgages and 5.5x borrowing schemes
Sharia compliant home purchase plans
& so much more

Discover what your budget could be using our simple calculator, and afterwards access personalised interest rates through their full fact-find.

Your home may be repossessed if you do not keep up payments on your mortgage.

Property Floorplans

Click to expand floorplan image.

Contact Persimmon Homes

Want to know more about Saltram Meadow from Persimmon Homes
Persimmon Homes will use this information to contact you.
ThankYou

Other properties on this development

List Sort: 
110 - The Barndale
3 bedroom detached house for sale
3 Bedrooms
The Barndale has a bright open plan kitchen/dining room leading to a handy utility room. The spacious living room has French doors leading into the garden.
69 - The Alnmouth
2 bedroom terraced house for sale
Video Tour 
2 Bedrooms
Perfectly proportioned, the Alnmouth has a stylish open-plan kitchen/dining/living room. It features flexible first-floor rooms, a good-sized family bathroom, handy storage cupboards and parking.
113 - The Alnmouth
2 bedroom semi detached house for sale
Video Tour 
2 Bedrooms
Perfectly proportioned, the Alnmouth has a stylish open-plan kitchen/dining/living room. It features flexible first-floor rooms, a good-sized family bathroom, handy storage cupboards and parking.
697 - The apartments
2 bedroom flat for sale
Video Tour 
2 Bedrooms
Modern living at its best, the Apartments open plan kitchen/dining/living room is bright and ideal for the way we live today. Perfect for first-time buyers and young professionals.
62 - The Alnmouth
2 bedroom end terraced house for sale
Video Tour 
2 Bedrooms
Perfectly proportioned, the Alnmouth has a stylish open-plan kitchen/dining/living room. It features flexible first-floor rooms, a good-sized family bathroom, handy storage cupboards and parking.
64 - The Alnmouth
2 bedroom terraced house for sale
Video Tour 
2 Bedrooms
Perfectly proportioned, the Alnmouth has a stylish open-plan kitchen/dining/living room. It features flexible first-floor rooms, a good-sized family bathroom, handy storage cupboards and parking.
699 - The apartments B4
2 bedroom flat for sale
2 Bedrooms
Modern living at its best, the Apartments open plan kitchen/dining/living room is bright and ideal for the way we live today. Perfect for first-time buyers and young professionals.
68 - The Redhill
2 bedroom house for sale
Video Tour 
2 Bedrooms
The Redhill is a super convenient, if you need your car on a daily basis and dont want the hassle of finding parking after a busy day, this is an ideal choice for you.
705 - The apartments B4
2 bedroom flat for sale
2 Bedrooms
Modern living at its best, the Apartments open plan kitchen/dining/living room is bright and ideal for the way we live today. Perfect for first-time buyers and young professionals.
700 - The apartments B4
2 bedroom flat for sale
2 Bedrooms
Modern living at its best, the Apartments open plan kitchen/dining/living room is bright and ideal for the way we live today. Perfect for first-time buyers and young professionals.
72 - The Stapleford 
1 bedroom flat for sale
1 Bedroom
The Stapleford has a stylish open plan kitchen/living/dining room, a double bedroom, a good-sized bathroom, handy storage cupboards and off-road parking.

Property Information

Price Details:
£205,000
Bedrooms:
2 bedrooms
Development:

Development Location

Individual savings and affordability may vary.

YOUR HOME MAY BE REPOSSESSED IF YOU DO NOT KEEP UP PAYMENTS ON YOUR MORTGAGE.

If you choose to use Tembo for mortgage advice, we may earn a commission from them for the introduction. This does not negatively impact the amount you'll pay for their service.

Tembo Money Limited (12631312) is a company registered in England and Wales with its registered office at 18 Crucifix Lane, London, SE1 3JW. Tembo is authorised and regulated by the Financial Conduct Authority under the registration number 952652.
© 2026 WhatHouse?
Click here to see your activities