LoginSubscribe to Alerts

3 bedroom end terraced house in Gorseinon

Do you want to get more information from Persimmon Homes
Call: 01792 341 195

Cwrt Y Brenin by Persimmon Homes

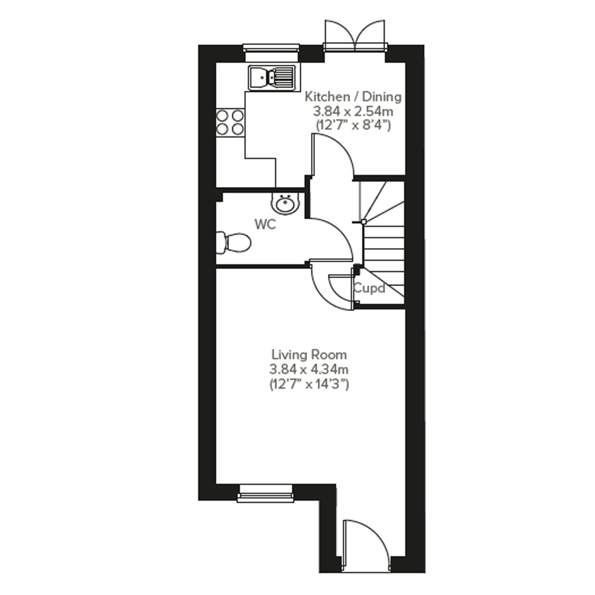
The Saunton

If you like the idea of more space but not the idea of doing your own loft conversion, this new home is a great solution. The Saunton has already thought of that for you, with its accommodation spread over three floors. The top floor is a grown-up retreat, a guest suite, or even a teenage treat. Three ideas in one flexible space.

Additional Information

  • Tenure: Freehold
  • Council tax band: Not made available by local authority until post-occupation

Tenure: Freehold

Property Features

  • Spacious three-story living
  • Bright kitchen/diner with French doors into the garden
  • Front aspect living room
  • Downstairs cloakroom
  • Large first bedroom with en suite
  • Handy storage cupboards on the second floor

Quick mortgage affordability calculator

Tembo is an award-winning mortgage broker
Voted the UK’s Best Mortgage Broker by its customers in 2022 and 2023, Tembo is helping buyers discover their true mortgage affordability.

Tembo boosts its average customer’s maximum budget by £82,000. They do this by not only checking your affordability for over 100 lenders and standard products, but also for a range of budget-boosting specialist schemes.

Schemes include:
Ways for family to support using income, property or savings 
Private part buy part rent & government shared ownership 
Professional mortgages and 5.5x borrowing schemes
Sharia compliant home purchase plans
& so much more

Discover what your budget could be using our simple calculator, and afterwards access personalised interest rates through their full fact-find.

Your home may be repossessed if you do not keep up payments on your mortgage.

Property Floorplans

Click to expand floorplan image.

Contact Persimmon Homes

Want to know more about Cwrt Y Brenin from Persimmon Homes
Persimmon Homes will use this information to contact you.
ThankYou

Other properties on this development

List Sort: 
480 - The Burnham
4 bedroom detached house for sale
4 Bedrooms
The Burnham`s open-plan kitchen/dining room is ideal for spending time with your family and friends. There`s a well-proportioned living room, downstairs WC, handy storage and a large integral garage.
505 - The Sherwood
3 bedroom detached house for sale
3 Bedrooms
This is a popular three-bedroom home. The Sherwood has an open-plan kitchen/dining room and a bright front-aspect living room.
534 - The Saunton
3 bedroom terraced house for sale
3 Bedrooms
The Saunton is an attractive three-storey, three-bedroom home with an open-plan kitchen/dining room, living room and three good-sized bedrooms. Bedroom one on the top floor has a spacious en suite.

Property Information

Price Details:
£295,000
Bedrooms:
3 bedrooms
Development:

Development Location

Individual savings and affordability may vary.

YOUR HOME MAY BE REPOSSESSED IF YOU DO NOT KEEP UP PAYMENTS ON YOUR MORTGAGE.

If you choose to use Tembo for mortgage advice, we may earn a commission from them for the introduction. This does not negatively impact the amount you'll pay for their service.

Tembo Money Limited (12631312) is a company registered in England and Wales with its registered office at 18 Crucifix Lane, London, SE1 3JW. Tembo is authorised and regulated by the Financial Conduct Authority under the registration number 952652.
© 2026 WhatHouse?
Click here to see your activities