LoginSubscribe to Alerts

4 bedroom detached house in Capel Llanilltern

Do you want to get more information from Persimmon Homes
Call: 02920 104 074
Request Details
Arrange Viewing
Video Tour Available 

The Parish @ Llanilltern Village by Persimmon Homes

The Greenwood

Sometimes you dont just need more space, but more private space to call your own. The Greenwood achieves that for you with two lovely ensuite bedrooms - one of them has the whole of the second floor to itself to choose from. This is a great layout for a growing family, with plenty of space for family time on the ground floor.

Additional Information

  • Tenure: Leasehold
  • Council tax band: Not made available by local authority until post-occupation

Tenure: Leasehold

Property Features

  • Open plan kitchen/dining room with French doors leading into the garden
  • Front-aspect living room
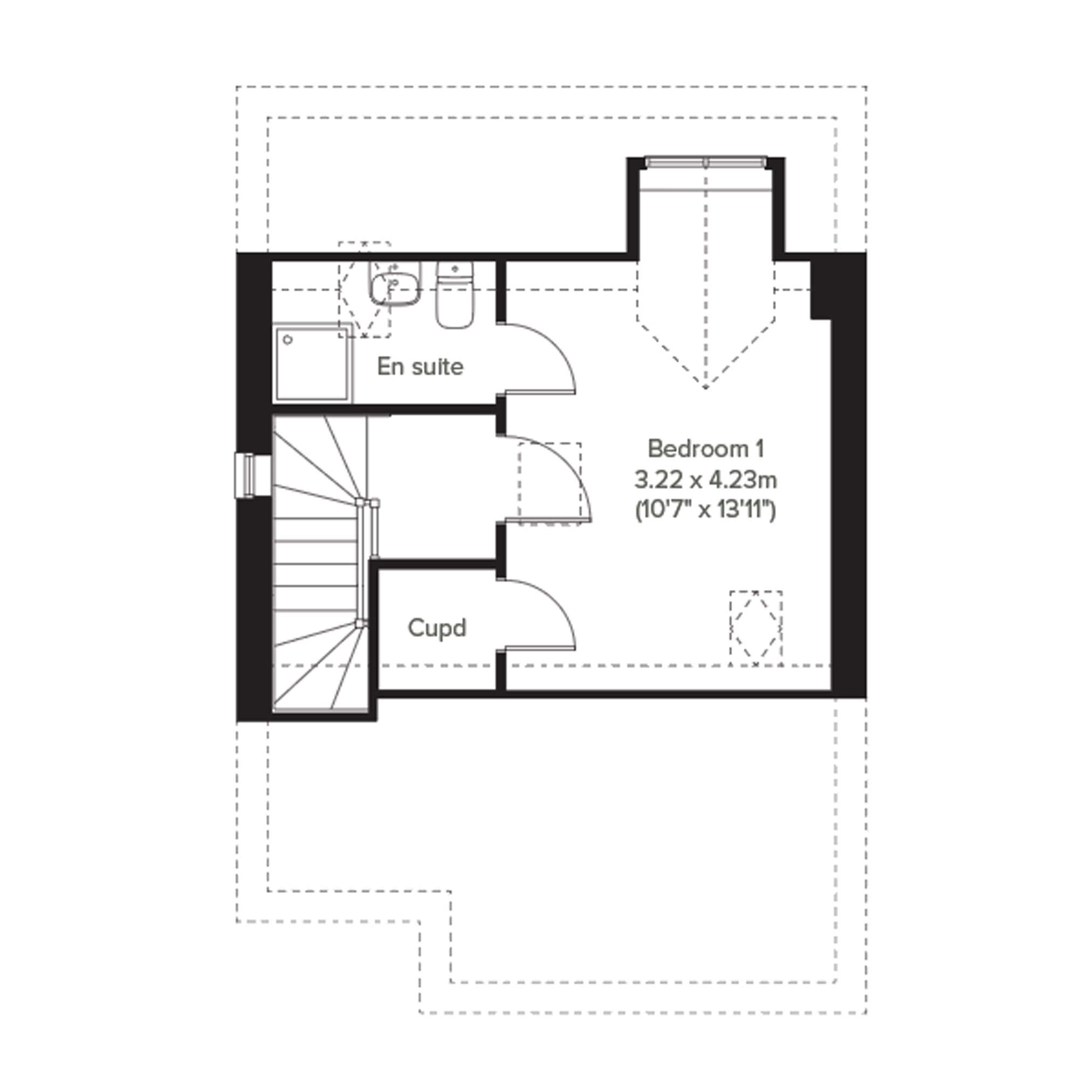
  • Top floor bedroom one with en suite and storage cupboard
  • Bedroom 2 with en suite
  • Downstairs WC
  • Separate utility room
  • Plenty of storage space 
  • Energy efficient

Quick mortgage affordability calculator

Tembo is an award-winning mortgage broker
Voted the UK’s Best Mortgage Broker by its customers in 2022 and 2023, Tembo is helping buyers discover their true mortgage affordability.

Tembo boosts its average customer’s maximum budget by £82,000. They do this by not only checking your affordability for over 100 lenders and standard products, but also for a range of budget-boosting specialist schemes.

Schemes include:
Ways for family to support using income, property or savings 
Private part buy part rent & government shared ownership 
Professional mortgages and 5.5x borrowing schemes
Sharia compliant home purchase plans
& so much more

Discover what your budget could be using our simple calculator, and afterwards access personalised interest rates through their full fact-find.

Your home may be repossessed if you do not keep up payments on your mortgage.

Property Floorplans

Click to expand floorplan image.

Property Tour


Contact Persimmon Homes

Want to know more about The Parish @ Llanilltern Village from Persimmon Homes
Persimmon Homes will use this information to contact you.
ThankYou

Other properties on this development

List Sort: 
597 - The Greenwood
4 bedroom detached house for sale
Video Tour 
4 Bedrooms
Sometimes you dont just need more space, but more private space to call your own. This home is great for a growing family, with plenty of space.
598 - The Greenwood
4 bedroom detached house for sale
Video Tour 
4 Bedrooms
Sometimes you dont just need more space, but more private space to call your own. This home is great for a growing family, with plenty of space.
633 - The Barnwood
3 bedroom detached house for sale
Video Tour 
3 Bedrooms
The Barnwood is a detached home that will catch your eye if you are looking for more space for your growing family. Or maybe you want to downsize, but still have room for friends and family to stay.
603 - The Kennet
4 bedroom end terraced house for sale
Video Tour 
4 Bedrooms
The Kennet is a modern four-bedroom, three-storey home. Featuring an open plan kitchen/dining room with French doors leading into the garden, a handy utility room and front-aspect living room.
601 - The Kennet
4 bedroom end terraced house for sale
Video Tour 
4 Bedrooms
The Kennet is a modern four-bedroom, three-storey home. Featuring an open plan kitchen/dining room with French doors leading into the garden, a handy utility room and front-aspect living room.
606 - The Ashdown Corner
3 bedroom end terraced house for sale
Video Tour 
3 Bedrooms
The Ashdown Corner has all the same features as its close relations, the Ashdown and the Ashdown FG, but its got the bonus of dual-aspect windows on all three floors.
605 - The Ashdown
3 bedroom end terraced house for sale
Video Tour 
3 Bedrooms
The Ashdown is a new home with style. The tall gable enhances the front of the house and the Juliet balcony to the first floor living room is an additional elegant feature.
610 - The Ashdown Corner
3 bedroom end terraced house for sale
Video Tour 
3 Bedrooms
The Ashdown Corner has all the same features as its close relations, the Ashdown and the Ashdown FG, but its got the bonus of dual-aspect windows on all three floors.
608 - The Ashdown
3 bedroom terraced house for sale
Video Tour 
3 Bedrooms
The Ashdown is a new home with style. The tall gable enhances the front of the house and the Juliet balcony to the first floor living room is an additional elegant feature.

Property Information

Price Details:
£429,995
Bedrooms:
4 bedrooms

Development Location

Individual savings and affordability may vary.

YOUR HOME MAY BE REPOSSESSED IF YOU DO NOT KEEP UP PAYMENTS ON YOUR MORTGAGE.

If you choose to use Tembo for mortgage advice, we may earn a commission from them for the introduction. This does not negatively impact the amount you'll pay for their service.

Tembo Money Limited (12631312) is a company registered in England and Wales with its registered office at 18 Crucifix Lane, London, SE1 3JW. Tembo is authorised and regulated by the Financial Conduct Authority under the registration number 952652.
© 2026 WhatHouse?
Click here to see your activities