LoginSubscribe to Alerts

5 bedroom detached house in Soham

Do you want to get more information from Persimmon Homes
Call: 01353 880 594
Request Details
Arrange Viewing
Video Tour Available 

Newman Fields by Persimmon Homes

The Kingsand

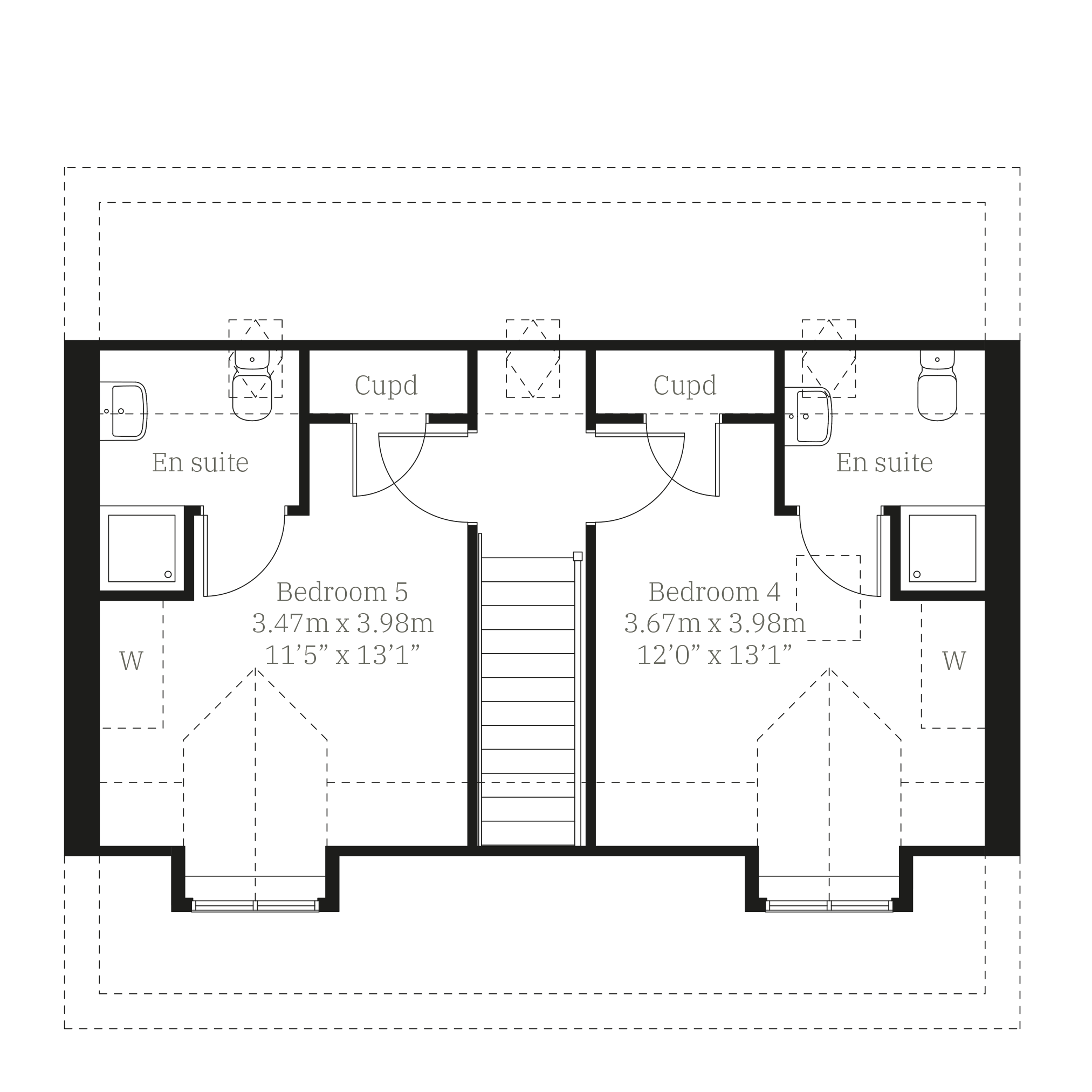
This is a classic double-fronted, three-storey town house. The Kingsand has kerb appeal as well as an excellent and well-planned layout inside. Particularly strong features are the large L-shaped open-plan kitchen/dining/living room, which has bi-fold doors to the garden, and the balance of five bedrooms and four bathrooms. Its especially useful that both the bedrooms on the second floor are en suite, while bedroom one also enjoys a dressing room.

Additional Information

  • Tenure: Freehold
  • Council tax band: Not made available by local authority until post-occupation

Property Features

  • Detached plot
  • Detached Garage
  • Facing open space
  • Flooring throughout
  • Upgraded kitchen including Quartz worksurfaces
  • Upgraded kitchen with integrated appliances
  • Upgraded kitchen
  • Bedrooms 1, 4 and 5 with en suites
  • Dressing room to bedroom one
  • Great local amenities

Quick mortgage affordability calculator

Tembo is an award-winning mortgage broker
Voted the UK’s Best Mortgage Broker by its customers in 2022 and 2023, Tembo is helping buyers discover their true mortgage affordability.

Tembo boosts its average customer’s maximum budget by £82,000. They do this by not only checking your affordability for over 100 lenders and standard products, but also for a range of budget-boosting specialist schemes.

Schemes include:
Ways for family to support using income, property or savings 
Private part buy part rent & government shared ownership 
Professional mortgages and 5.5x borrowing schemes
Sharia compliant home purchase plans
& so much more

Discover what your budget could be using our simple calculator, and afterwards access personalised interest rates through their full fact-find.

Your home may be repossessed if you do not keep up payments on your mortgage.

Property Floorplans

Click to expand floorplan image.

Property Tour

Virtual Tour

Contact Persimmon Homes

Want to know more about Newman Fields from Persimmon Homes
Persimmon Homes will use this information to contact you.
ThankYou

Other properties on this development

List Sort: 
17 - The Kingsand
5 bedroom detached house for sale
5 Bedrooms
Featured Home! 20,000 Discount. Was 580,000 Now 560,000! T&C Apply
56 - The Seacombe
4 bedroom detached house for sale
Video Tour 
4 Bedrooms
Price Reduction Was 565,000 Now 550,000, also 5% deposit paid worth 27,500
52 - The Lancombe
4 bedroom detached house for sale
Video Tour 
4 Bedrooms
Price reduction, Was 565,000 Now 550,000 also with a 5% deposit paid worth 27,000
55 - The Hendon
4 bedroom detached house for sale
Video Tour 
4 Bedrooms
Price reduction, Was 525,000 Now 510,000 , also with a 5% deposit paid ( 25,500)
74 - The Barnwood Drive Through
4 bedroom detached house for sale
Video Tour 
4 Bedrooms
The clever design of a drive-through for your car and an ensuite bedroom above it, adds an extra dimension to this family-sized new home.
61 - The Barnwood Drive Through
4 bedroom detached house for sale
Video Tour 
4 Bedrooms
The clever design of a drive-through for your car and an ensuite bedroom above it, adds an extra dimension to this family-sized new home.
68 - The Greenwood
4 bedroom detached house for sale
Video Tour 
4 Bedrooms
Sometimes you dont just need more space, but more private space to call your own. This home is great for a growing family, with plenty of space.
44 - The Barnwood
3 bedroom detached house for sale
Video Tour 
3 Bedrooms
Price reduction.. Was 365,000 Now 350,000, also with a 5% deposit paid ( 17,500)
40 - The Sherwood
3 bedroom detached house for sale
Video Tour 
3 Bedrooms
Price reduction, Was 345,000 Now 340,000 also with a 5% deposit paid ( 17,000)
63 - The Saunton
3 bedroom semi detached house for sale
Video Tour 
3 Bedrooms
An attractive three-storey home, the Saunton has an open-plan kitchen/dining room, a living room and three bedrooms. The top floor bedroom has an en suite.
62 - The Saunton
3 bedroom semi detached house for sale
Video Tour 
3 Bedrooms
An attractive three-storey home, the Saunton has an open-plan kitchen/dining room, a living room and three bedrooms. The top floor bedroom has an en suite.
102 - The Deepdale
3 bedroom semi detached house for sale
Video Tour 
3 Bedrooms
The Deepdale has a lovely balanced feel, created by a central entrance hall and generous living space to either side. The third, smaller room would make a great home office.
66 - The Danbury
3 bedroom semi detached house for sale
Video Tour 
3 Bedrooms
The three-bedroom Danbury has an open plan kitchen/dining room with garden access and a spacious front-aspect living room thats ideal for entertaining.

Property Information

Price Details:
£580,000
Bedrooms:
5 bedrooms
Development:

Development Location

Individual savings and affordability may vary.

YOUR HOME MAY BE REPOSSESSED IF YOU DO NOT KEEP UP PAYMENTS ON YOUR MORTGAGE.

If you choose to use Tembo for mortgage advice, we may earn a commission from them for the introduction. This does not negatively impact the amount you'll pay for their service.

Tembo Money Limited (12631312) is a company registered in England and Wales with its registered office at 18 Crucifix Lane, London, SE1 3JW. Tembo is authorised and regulated by the Financial Conduct Authority under the registration number 952652.
© 2026 WhatHouse?
Click here to see your activities