LoginSubscribe to Alerts

2 bedroom flat in Newbury

Do you want to get more information from Charles Church
Call: 01635 019272

Woodlark Place by Charles Church

The Apartments

Perfectly designed, our one apartments offer a stylish open plan kitchen, living and dining room, creating a spacious and modern living area. Ideal for first-time buyers, these apartments provide a fresh, contemporary home you can truly make your own.

Additional Information

  • Tenure: Freehold
  • Council tax band: Not made available by local authority until post-occupation

Tenure: Freehold

Quick mortgage affordability calculator

Tembo is an award-winning mortgage broker
Voted the UK’s Best Mortgage Broker by its customers in 2022 and 2023, Tembo is helping buyers discover their true mortgage affordability.

Tembo boosts its average customer’s maximum budget by £82,000. They do this by not only checking your affordability for over 100 lenders and standard products, but also for a range of budget-boosting specialist schemes.

Schemes include:
Ways for family to support using income, property or savings 
Private part buy part rent & government shared ownership 
Professional mortgages and 5.5x borrowing schemes
Sharia compliant home purchase plans
& so much more

Discover what your budget could be using our simple calculator, and afterwards access personalised interest rates through their full fact-find.

Your home may be repossessed if you do not keep up payments on your mortgage.

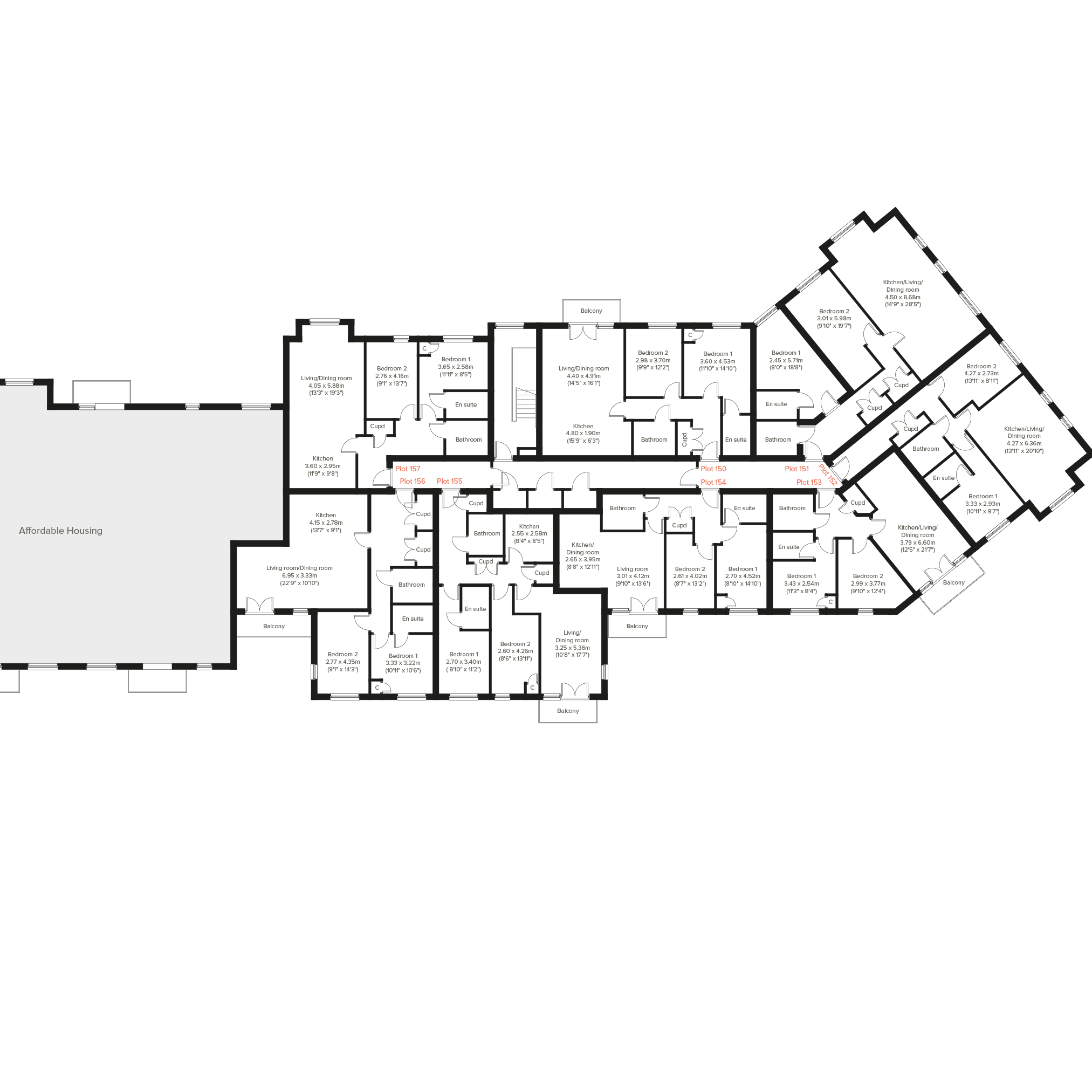
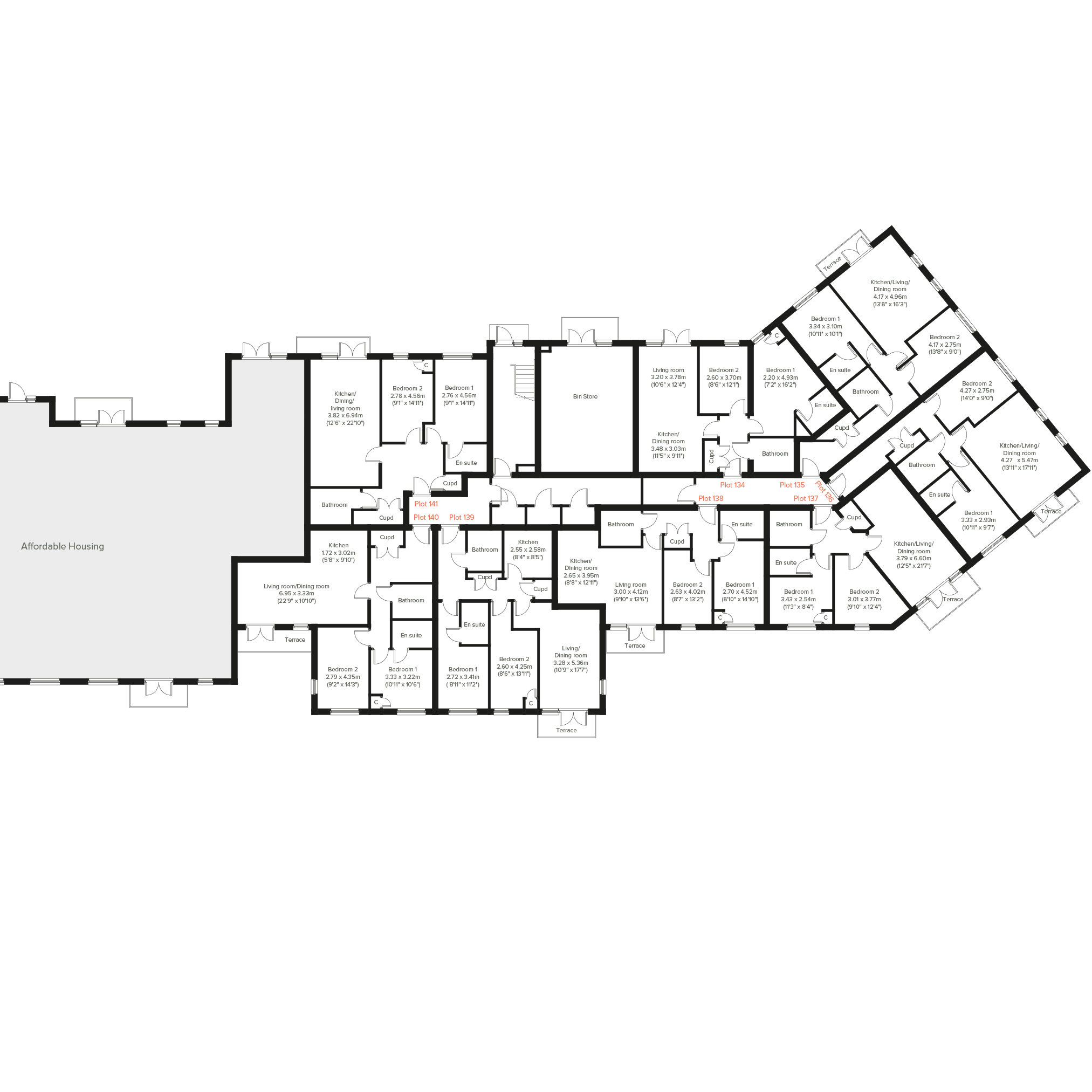
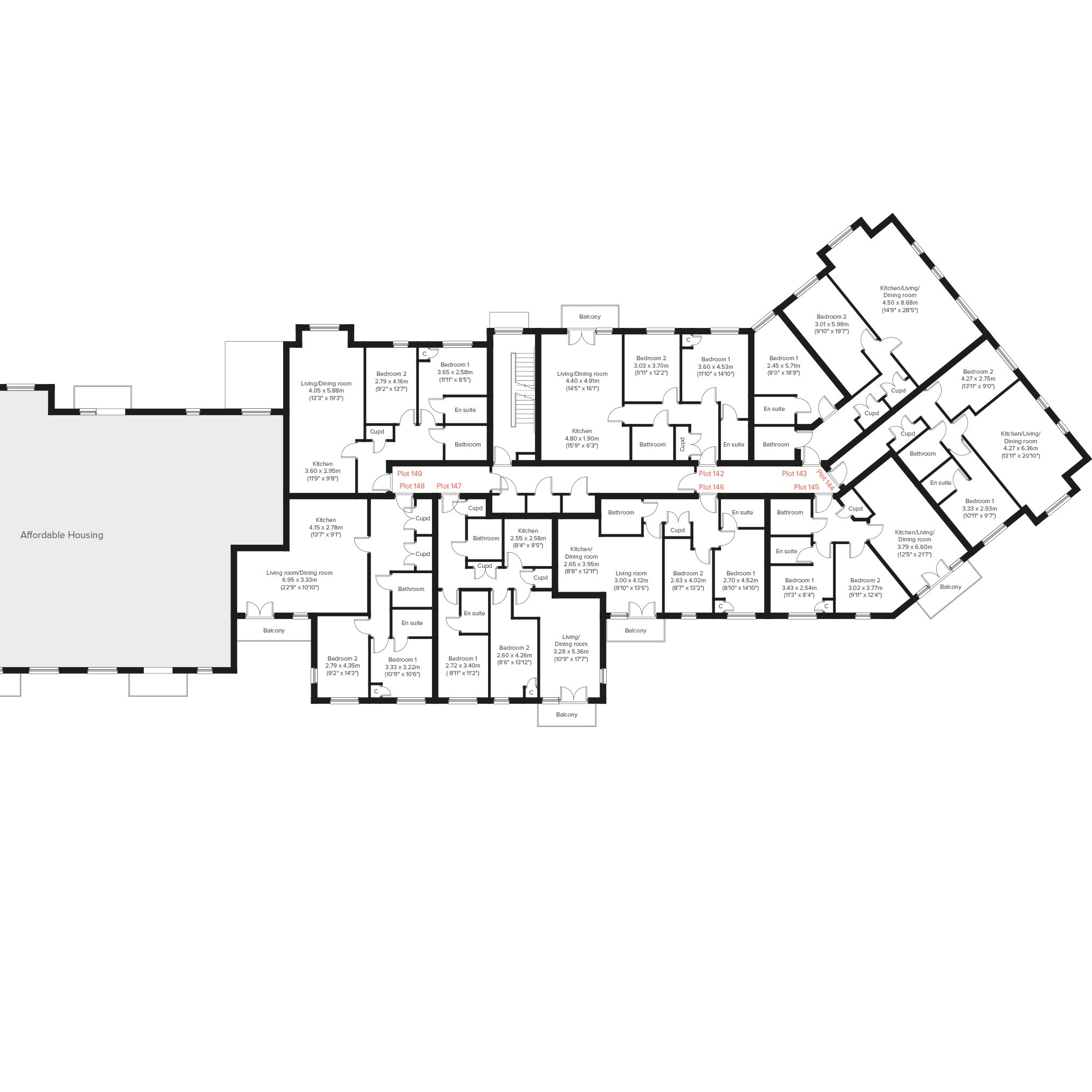
Property Floorplans

Click to expand floorplan image.

Property Tour


Contact Charles Church

Want to know more about Woodlark Place from Charles Church
Charles Church will use this information to contact you.
ThankYou

Other properties on this development

List Sort: 
Plot 143 - The Apartments
2 bedroom flat for sale
Video Tour 
2 Bedrooms
Perfectly designed, our one apartments offer a stylish open plan kitchen, living and dining room, creating a spacious and modern living area.
Plot 149 - The Apartments
2 bedroom flat for sale
Video Tour 
2 Bedrooms
Perfectly designed, our one apartments offer a stylish open plan kitchen, living and dining room, creating a spacious and modern living area.
Plot 137 - The Apartments
2 bedroom flat for sale
Video Tour 
2 Bedrooms
Perfectly designed, our one apartments offer a stylish open plan kitchen, living and dining room, creating a spacious and modern living area.

Property Information

Price Details:
£250,000
Bedrooms:
2 bedrooms
Development:

Development Location

Individual savings and affordability may vary.

YOUR HOME MAY BE REPOSSESSED IF YOU DO NOT KEEP UP PAYMENTS ON YOUR MORTGAGE.

If you choose to use Tembo for mortgage advice, we may earn a commission from them for the introduction. This does not negatively impact the amount you'll pay for their service.

Tembo Money Limited (12631312) is a company registered in England and Wales with its registered office at 18 Crucifix Lane, London, SE1 3JW. Tembo is authorised and regulated by the Financial Conduct Authority under the registration number 952652.
© 2026 WhatHouse?
Click here to see your activities