LoginSubscribe to Alerts

4 bedroom detached house in Salisbury

Do you want to get more information from Charles Church
Call: 01722 448 768
Request Details
Arrange Viewing
Video Tour Available 

St Peters Place by Charles Church

The Kingsand

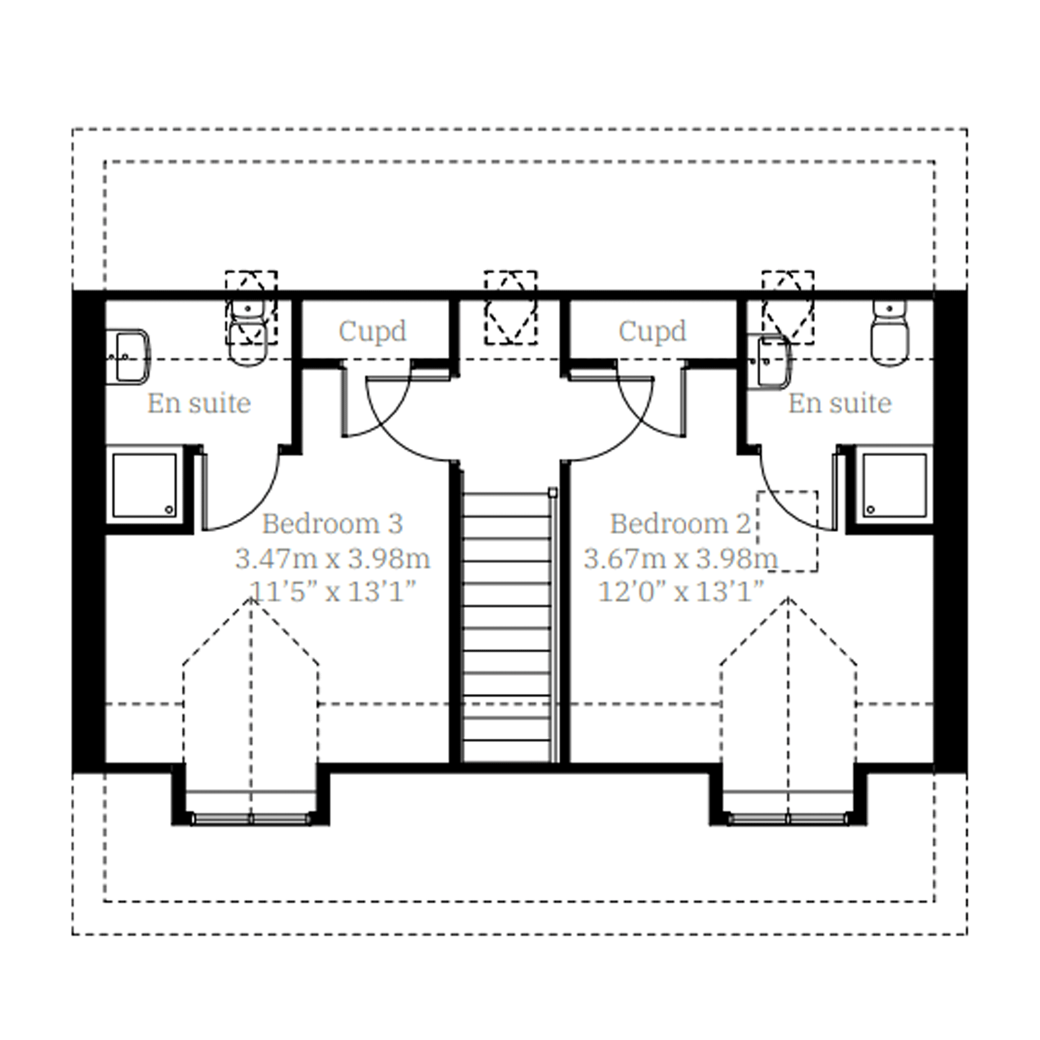
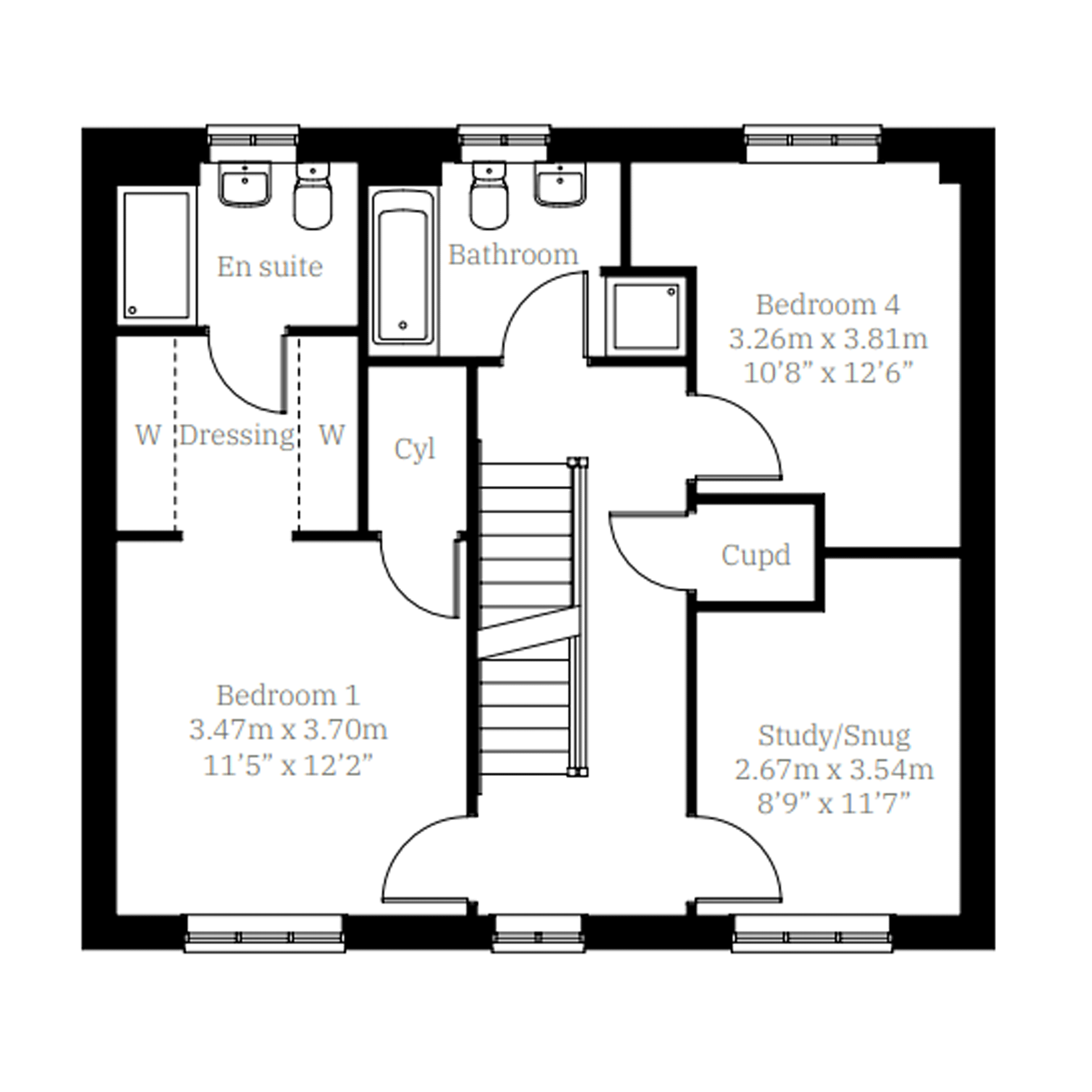
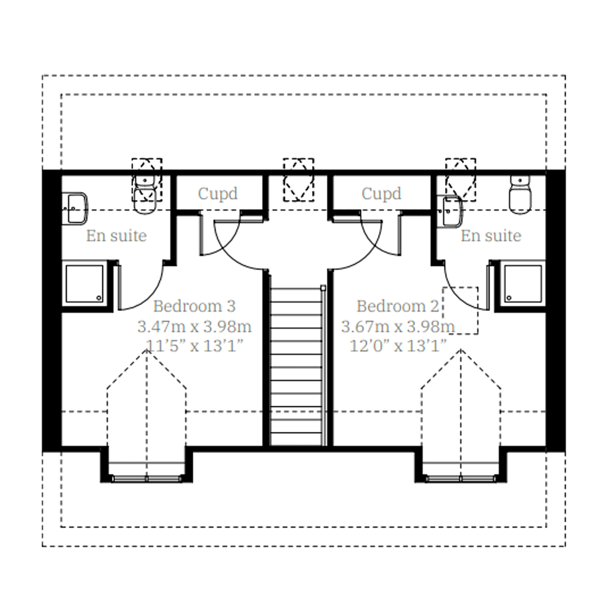
This is a classic double-fronted, three-storey town house. The Kingsand has kerb appeal as well as an excellent and well-planned layout inside. Particularly strong features are the large L-shaped open-plan kitchen/dining/living room, which has bi-fold doors to the garden, and the balance of five bedrooms and four bathrooms. Its especially useful that both the bedrooms on the second floor are en suite, while bedroom one also enjoys a dressing room.

Additional Information

  • Tenure: Freehold
  • Council tax band: Not made available by local authority until post-occupation

Tenure: Freehold

Property Features

  • Large bedroom 1 with en suite
  • Dressing room to bedroom one
  • Separate study
  • Utility room with outside access
  • Downstairs WC
  • Good sized bedrooms
  • Double garage
  • Two parking spaces

Quick mortgage affordability calculator

Tembo is an award-winning mortgage broker
Voted the UK’s Best Mortgage Broker by its customers in 2022 and 2023, Tembo is helping buyers discover their true mortgage affordability.

Tembo boosts its average customer’s maximum budget by £82,000. They do this by not only checking your affordability for over 100 lenders and standard products, but also for a range of budget-boosting specialist schemes.

Schemes include:
Ways for family to support using income, property or savings 
Private part buy part rent & government shared ownership 
Professional mortgages and 5.5x borrowing schemes
Sharia compliant home purchase plans
& so much more

Discover what your budget could be using our simple calculator, and afterwards access personalised interest rates through their full fact-find.

Your home may be repossessed if you do not keep up payments on your mortgage.

Property Floorplans

Click to expand floorplan image.

Property Tour


Contact Charles Church

Want to know more about St Peters Place from Charles Church
Charles Church will use this information to contact you.
ThankYou

Other properties on this development

List Sort: 
Plot 1192 - The Kingsand
4 bedroom detached house for sale
Video Tour 
4 Bedrooms
The Kingsand features a large L-shaped open-plan kitchen/dining/living room, which has bi-fold doors to the garden, and there are five bedrooms and four bathrooms.
Plot 1220 - The Seacombe
4 bedroom detached house for sale
Video Tour 
4 Bedrooms
A huge open-plan kitchen/dining room that incorporates a snug, an island, and bi-fold doors to the garden. This is a wonderful new home with enhanced specifications.
Plot 1190 - The Cullen
4 bedroom detached house for sale
Video Tour 
4 Bedrooms
Four bedrooms, two bathrooms and a study are a good start for a new family home.
Plot 1097 - The Woodford Corner
3 bedroom end terraced house for sale
3 Bedrooms
Providing accommodation over three levels, the Woodford Corner ground floor includes a welcoming dining room with French doorsand a separate kitchen.
Plot 1099 - The Woodford
3 bedroom end terraced house for sale
3 Bedrooms
The Woodford combines thoughtful design with long-term flexibility. The ground floor includes a welcoming kitchen/dining room with French doors and a separate study giving you space to work.
Plot 1101 - The Woodford
3 bedroom terraced house for sale
3 Bedrooms
The Woodford combines thoughtful design with long-term flexibility. The ground floor includes a welcoming kitchen/dining room with French doors and a separate study giving you space to work.

Property Information

Price Details:
£620,000
Bedrooms:
4 bedrooms
Development:

Development Location

Individual savings and affordability may vary.

YOUR HOME MAY BE REPOSSESSED IF YOU DO NOT KEEP UP PAYMENTS ON YOUR MORTGAGE.

If you choose to use Tembo for mortgage advice, we may earn a commission from them for the introduction. This does not negatively impact the amount you'll pay for their service.

Tembo Money Limited (12631312) is a company registered in England and Wales with its registered office at 18 Crucifix Lane, London, SE1 3JW. Tembo is authorised and regulated by the Financial Conduct Authority under the registration number 952652.
© 2026 WhatHouse?
Click here to see your activities