LoginSubscribe to Alerts

3 bedroom apartment in West Hendon

Do you want to get more information from Barratt London
Call: 03333054785

Hendon Waterside by Barratt London

Orchid Apartments
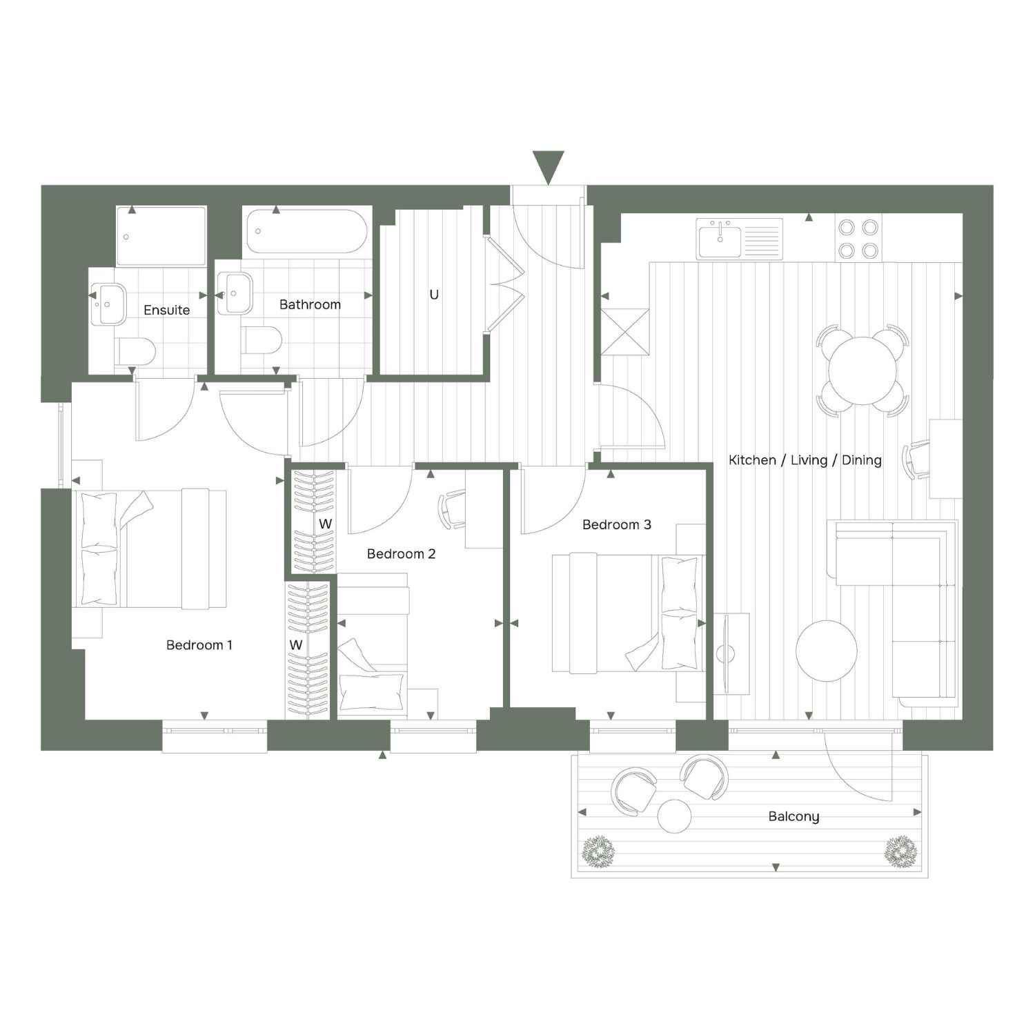
DISCOVER THIS THREE-BEDROOM HOME ON THE SECOND FLOOR OF ORCHID APARTMENTS. The fully fitted kitchen includes integrated appliances, while the open-plan living area opens onto a south-west-facing balcony providing further space to relax. Two of the bedrooms are doubles, with fitted wardrobes and an en suite to the dual-aspect main bedroom. There is also a third bedroom, bathroom, and storage.

Property Features

  • Reserve now with a £28,750 deposit using Deposit Boost
  • Spacious family home
  • Situated on second floor
  • South-west facing balcony
  • Dual-aspect views to main bedroom
  • One bathroom, one en suite
  • Total area: 822 sq ft (76 sq m)

Quick mortgage affordability calculator

Tembo is an award-winning mortgage broker
Voted the UK’s Best Mortgage Broker by its customers in 2022 and 2023, Tembo is helping buyers discover their true mortgage affordability.

Tembo boosts its average customer’s maximum budget by £82,000. They do this by not only checking your affordability for over 100 lenders and standard products, but also for a range of budget-boosting specialist schemes.

Schemes include:
Ways for family to support using income, property or savings 
Private part buy part rent & government shared ownership 
Professional mortgages and 5.5x borrowing schemes
Sharia compliant home purchase plans
& so much more

Discover what your budget could be using our simple calculator, and afterwards access personalised interest rates through their full fact-find.

Your home may be repossessed if you do not keep up payments on your mortgage.

Property Floorplans

Click to expand floorplan image.

Property Tour



Contact Barratt London

Want to know more about Hendon Waterside from Barratt London
Barratt London will use this information to contact you.
ThankYou

Other properties on this development

List Sort: 
H4420608 - The Primrose
4 bedroom semi detached house for sale
Video Tour 
4 Bedrooms
SHOW HOME NOW AVAILABLE TO VIEW | The Primrose is a 1,848 sq ft mid-terrace, new build home - part of The Townhouse Collection at Hendon Waterside.
H4420610 - The Bluebell
4 bedroom semi detached house for sale
Video Tour 
4 Bedrooms
EXCLUSIVE COLLECTION OF 5 NEW BUILD HOUSES | The Bluebell is an 1,848 sq ft 3 storey home with premium features such as an island to the kitchen, study, bi-fold doors to the south-facing garden, & EV ...
H4422140 - Orchid Apartments
3 bedroom apartment for sale
Video Tour 
3 Bedrooms
DUAL-ASPECT HOME WITH PARKING | Situated on the 7th floor, this large new build apartment offers 822 sq ft of open-plan living space.
H4422117 - Orchid Apartments
2 bedroom apartment for sale
Video Tour 
2 Bedrooms
SOUTH-WEST FACING PRIVATE BALCONY | Spacious home on the 4th floor of Orchid Apartments at Hendon Waterside.
H442294 - Orchid Apartments
2 bedroom apartment for sale
Video Tour 
2 Bedrooms
INCENTIVES TO HELP YOU BUY | Spacious 784 sq ft home on the 1st floor of Orchid Apartments at Hendon Waterside, just 16 minutes from St Pancras.
H4422130 - Orchid Apartments
1 bedroom apartment for sale
Video Tour 
1 Bedroom
INCENTIVES TO HELP YOU BUY | Spacious new build home offering 545 sq ft on the fifth floor with an open-plan layout, fitted indigo kitchen with integrated appliances, private balcony & light-filled ...

Property Information

Price Details:
£590,000
Bedrooms:
3 bedrooms
Development:
Amenities:
Balcony
Parking
Concierge
Brochure:

Development Location

Individual savings and affordability may vary.

YOUR HOME MAY BE REPOSSESSED IF YOU DO NOT KEEP UP PAYMENTS ON YOUR MORTGAGE.

If you choose to use Tembo for mortgage advice, we may earn a commission from them for the introduction. This does not negatively impact the amount you'll pay for their service.

Tembo Money Limited (12631312) is a company registered in England and Wales with its registered office at 18 Crucifix Lane, London, SE1 3JW. Tembo is authorised and regulated by the Financial Conduct Authority under the registration number 952652.
© 2026 WhatHouse?
Click here to see your activities