LoginSubscribe to Alerts

4 bedroom detached house in Sutton in ashfield

Do you want to get more information from Barratt Homes
Call: 03333558472

The Hawthorns by Barratt Homes

Kennford
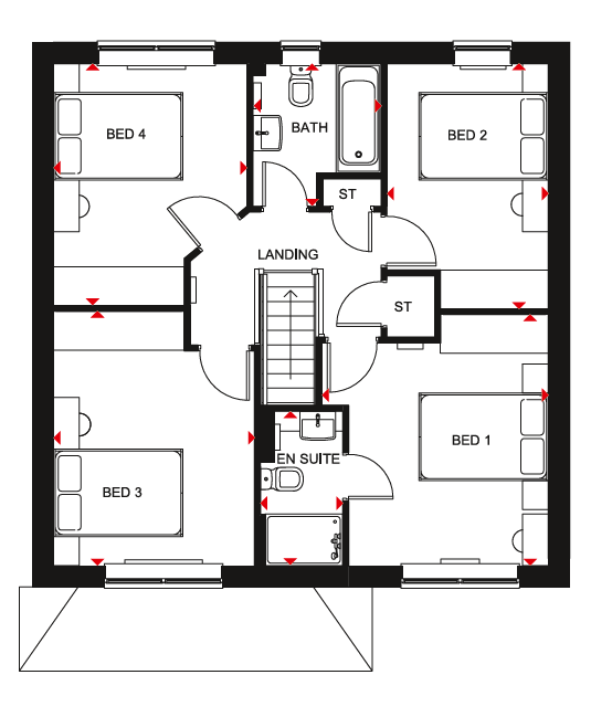
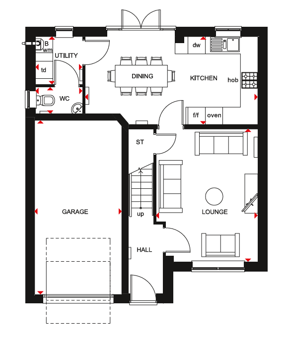
16,600 worth of savings including 7,500 moving cost contribution, an upgraded kitchen package and flooring throughout. South-east facing garden | The 4 bedroom Kennford is a spacious and practical family home designed for modern living. It features an open-plan kitchen with dining area and French doors leading to the rear garden, a separate utility room and a spacious lounge. Upstairs, there are 4 double bedrooms, the main bedroom with an en suite, plus a family bathroom. Integral garage & 2 parking spaces. Plot 99 | Kennford | The Hawthorns Set in a PRIME location on the outskirts of Mansfield and Sutton-in-Ashfield. You will have everything you need on your doorstep with excellent amenities, `Good` schools for all ages and effortless commuter links in the A38, A617 and M1.

Property Features

  • £7,500 moving cost contribution
  • Upgraded kitchen package worth £1,978
  • Flooring included throughout £7,125
  • South-east facing garden
  • Open-plan kitchen with dining area
  • Spacious lounge
  • Main bedroom with en suite
  • 3 further double bedrooms
  • Integral garage & 2 parking spaces

Quick mortgage affordability calculator

Tembo is an award-winning mortgage broker
Voted the UK’s Best Mortgage Broker by its customers in 2022 and 2023, Tembo is helping buyers discover their true mortgage affordability.

Tembo boosts its average customer’s maximum budget by £82,000. They do this by not only checking your affordability for over 100 lenders and standard products, but also for a range of budget-boosting specialist schemes.

Schemes include:
Ways for family to support using income, property or savings 
Private part buy part rent & government shared ownership 
Professional mortgages and 5.5x borrowing schemes
Sharia compliant home purchase plans
& so much more

Discover what your budget could be using our simple calculator, and afterwards access personalised interest rates through their full fact-find.

Your home may be repossessed if you do not keep up payments on your mortgage.

Property Floorplans

Click to expand floorplan image.

Property Tour


Contact Barratt Homes

Want to know more about The Hawthorns from Barratt Homes
Barratt Homes will use this information to contact you.
ThankYou

Other properties on this development

List Sort: 
H842697 - Kennford
4 bedroom detached house for sale
Video Tour 
4 Bedrooms
South-east facing garden | The 4 bedroom Kennford is a spacious and practical family home designed for modern living. Integral garage & 2 parking spaces.
H8426120 - Denby
3 bedroom detached house for sale
Video Tour 
3 Bedrooms
Upgraded kitchen package included Integral garage included on this impressive family home. Stunning open-plan living space, ideal for entertaining.
H8426119 - Denby
3 bedroom detached house for sale
Video Tour 
3 Bedrooms
SAVE OVER 12,000 including 10,000 moving cost contribution + an upgraded kitchen package | Integral garage included on this impressive family home.
H8426118 - Lutterworth
3 bedroom detached house for sale
Video Tour 
3 Bedrooms
Deal worth 23,900, including 5% towards your deposit worth 14,644 and an upgraded kitchen package & flooring included throughout Great family home ideal for entertaining family and friends.
H842696 - Ellerton
3 bedroom end terraced house for sale
Video Tour 
3 Bedrooms
Upgrades worth 7,700, including an upgraded kitchen package & flooring throughout South-east facing garden | This home is ideal for modern family living. 2 parking spaces.

Property Information

Price Details:
£343,395
Bedrooms:
4 bedrooms
Development:
Brochure:

Development Location

Individual savings and affordability may vary.

YOUR HOME MAY BE REPOSSESSED IF YOU DO NOT KEEP UP PAYMENTS ON YOUR MORTGAGE.

If you choose to use Tembo for mortgage advice, we may earn a commission from them for the introduction. This does not negatively impact the amount you'll pay for their service.

Tembo Money Limited (12631312) is a company registered in England and Wales with its registered office at 18 Crucifix Lane, London, SE1 3JW. Tembo is authorised and regulated by the Financial Conduct Authority under the registration number 952652.
© 2026 WhatHouse?
Click here to see your activities