LoginSubscribe to Alerts

4 bedroom detached house in Corby

Do you want to get more information from David Wilson Homes
Call: 03333558482

David Wilson Homes At Priors Hall Park by David Wilson Homes

Bayswater
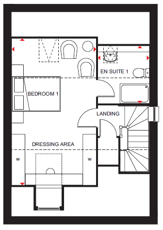
PLOT 218 THE BAYSWATER AT PRIORS HALL PARK -? The Bayswater is a 3-storey home with flexible living spaces for families. The open-plan kitchen-diner has French doors to the garden, and a large bay-fronted lounge. The first floor features three double bedrooms and a family bathroom, while the second floor has a luxurious main bedroom with en suite. This home includes a range of energy-efficient features including solar PV panels and more.

Property Features

  • No estate agent fees
  • OR choose £12,149 CASH
  • Upgrades included worth '?12,583
  • South-east facing garden
  • Moments away from 25 acres of open space
  • Garage & driveway parking for two

Quick mortgage affordability calculator

Tembo is an award-winning mortgage broker
Voted the UK’s Best Mortgage Broker by its customers in 2022 and 2023, Tembo is helping buyers discover their true mortgage affordability.

Tembo boosts its average customer’s maximum budget by £82,000. They do this by not only checking your affordability for over 100 lenders and standard products, but also for a range of budget-boosting specialist schemes.

Schemes include:
Ways for family to support using income, property or savings 
Private part buy part rent & government shared ownership 
Professional mortgages and 5.5x borrowing schemes
Sharia compliant home purchase plans
& so much more

Discover what your budget could be using our simple calculator, and afterwards access personalised interest rates through their full fact-find.

Your home may be repossessed if you do not keep up payments on your mortgage.

Property Floorplans

Click to expand floorplan image.

Property Tour


Contact David Wilson Homes

Want to know more about David Wilson Homes at Priors Hall Park from David Wilson Homes
David Wilson Homes will use this information to contact you.
ThankYou

Other properties on this development

List Sort: 
H8704210 - Holden
4 bedroom detached house for sale
Video Tour 
4 Bedrooms
PLOT 210 THE HOLDEN AT PRIORS HALL PARK - UPGRADES INCLUDED WORTH THOUSANDS A four double bedroom home with a spacious bay-fronted lounge and front study.
H8704220 - Avondale
4 bedroom detached house for sale
Video Tour 
4 Bedrooms
23,250 CASH OR PART EXCHANGE! CORNER LOCATION. PARTIALLY WALLED GARDEN. *PLOT 220 - THE AVONDALE AT PRIORS HALL PARK*.
H8704219 - Bradgate
4 bedroom detached house for sale
Video Tour 
4 Bedrooms
CLOSE TO POND AND OPEN SPACE. *PLOT 219 - THE BRADGATE AT PRIORS HALL PARK*. The Bradgate is an impressive family home, featuring an open-plan dining kitchen with French doors leading to the garden.
H8704207 - Bradgate
4 bedroom detached house for sale
Video Tour 
4 Bedrooms
22,000 TOWARDS YOUR MOVE* + UPGRADES WORTH 15,320. CLOSE TO POND AND OPEN SPACE. Upstairs are four double bedrooms, the main with en suite shower room and a family bathroom.
H8704216 - Hertford
4 bedroom detached house for sale
Video Tour 
4 Bedrooms
PLOT 216 AT PRIORS HALL PARK THE HERTFORD - This 3-storey home is ideal for families. The kitchen-diner is full of light, with French doors to your garden and an adjoining utility.
H8704241 - Bayswater
4 bedroom detached house for sale
Video Tour 
4 Bedrooms
19,999 CASH TO SPEND YOUR WAY! SOUTH-WEST FACING GARDEN + SINGLE GARAGE + 4 DOUBLE BEDROOMS. *PLOT 288 - THE BAYSWATER AT PRIORS HALL PARK*.
H8704203 - Ingleby
4 bedroom detached house for sale
Video Tour 
4 Bedrooms
PLOT 203 THE INGLEBY AT PRIORS HALL PARK - MOMENTS AWAY FROM OPEN SPACE AND POND - FLOORING INCLUDED THROUGHOUT The Ingleby is a modern, four-bedroom home designed with family living in mind.
News stories about David Wilson Homes

Property Information

Price Details:
£404,995
Bedrooms:
4 bedrooms
Brochure:

Development Location

Individual savings and affordability may vary.

YOUR HOME MAY BE REPOSSESSED IF YOU DO NOT KEEP UP PAYMENTS ON YOUR MORTGAGE.

If you choose to use Tembo for mortgage advice, we may earn a commission from them for the introduction. This does not negatively impact the amount you'll pay for their service.

Tembo Money Limited (12631312) is a company registered in England and Wales with its registered office at 18 Crucifix Lane, London, SE1 3JW. Tembo is authorised and regulated by the Financial Conduct Authority under the registration number 952652.
© 2026 WhatHouse?
Click here to see your activities