LoginSubscribe to Alerts

5 bedroom detached house in Down Ampney

Do you want to get more information from Beech Grove Homes
Call: 07920 113 020

Ampney Meadows by Beech Grove Homes

Plot 36   The Broadway

Love our show home? Plot 36 is the same house type; The Broadway and is ready to move into NOW with £14k* worth of upgraded specifications including flooring throughout. Don't miss out!

The layout of The Broadway is well-thought out - spacious and attractive for larger families and those looking for more space to enjoy. The ground floor consists of a large open plan kitchen & dining room, with access to the rear garden via bi-fold doors, as well as a utility room. There is also a separate dining room too with a bay window, and a spacious living room to the rear of the property. There is a study to the front of the property and a downstairs WC, plus ample storage.

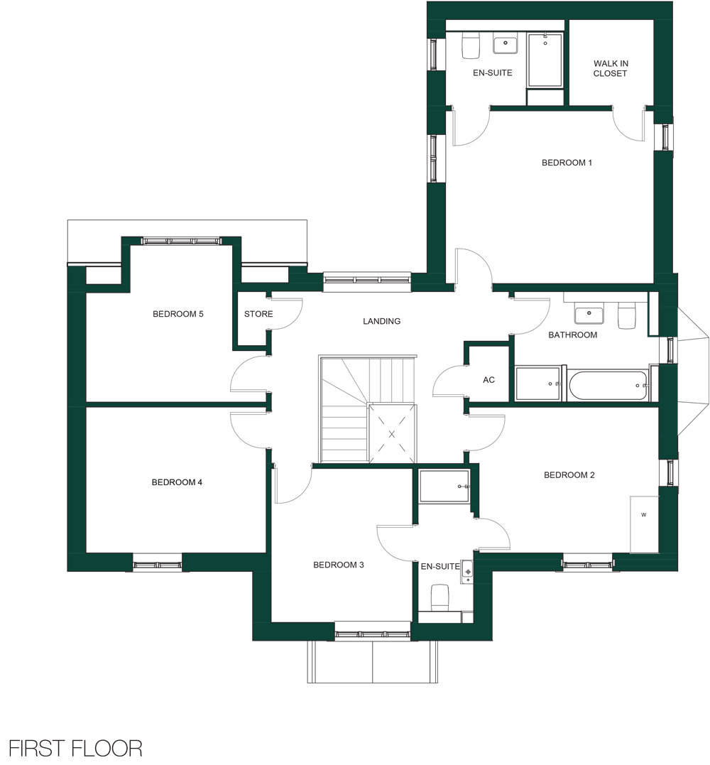
The first floor has five spacious bedrooms, two of which have their own ensuite bathrooms, with a walk-in closet in the master bedroom. There is also a family bathroom and built-in landing storage space.

*Approximate value – please speak to a sales executive for a more detailed breakdown.

Quick mortgage affordability calculator

Tembo is an award-winning mortgage broker
Voted the UK’s Best Mortgage Broker by its customers in 2022 and 2023, Tembo is helping buyers discover their true mortgage affordability.

Tembo boosts its average customer’s maximum budget by £82,000. They do this by not only checking your affordability for over 100 lenders and standard products, but also for a range of budget-boosting specialist schemes.

Schemes include:
Ways for family to support using income, property or savings 
Private part buy part rent & government shared ownership 
Professional mortgages and 5.5x borrowing schemes
Sharia compliant home purchase plans
& so much more

Discover what your budget could be using our simple calculator, and afterwards access personalised interest rates through their full fact-find.

Your home may be repossessed if you do not keep up payments on your mortgage.

Property Floorplans

Click to expand floorplan image.

Property Tour


Contact Beech Grove Homes

Want to know more about Ampney Meadows from Beech Grove Homes
Beech Grove Homes will use this information to contact you.
ThankYou

Other properties on this development

List Sort: 
Plot 33   The Moreton
5 bedroom detached house for sale
Video Tour 
5 Bedrooms
The Moreton is an impressive 5-bedroom detached home which is attractive for larger families, or those who desire ample space to enjoy.
Plot 32   The Eaton
4 bedroom detached house for sale
Video Tour 
4 Bedrooms
The Eaton is a spacious four-bedroom home, designed for family living. On the ground floor there is ample storage, plus a WC. This property also benefits from a utility room, adjoining the kitchen.
Plot 23   The Bourton
4 bedroom detached house for sale
Video Tour 
4 Bedrooms
This property comes with over £10k* worth of upgraded specifications including flooring throughout! The Bourton is the perfect home for growing families.

Property Information

Price Details:
£939,750
Bedrooms:
5 bedrooms
Development:
Brochure:

Development Location

Individual savings and affordability may vary.

YOUR HOME MAY BE REPOSSESSED IF YOU DO NOT KEEP UP PAYMENTS ON YOUR MORTGAGE.

If you choose to use Tembo for mortgage advice, we may earn a commission from them for the introduction. This does not negatively impact the amount you'll pay for their service.

Tembo Money Limited (12631312) is a company registered in England and Wales with its registered office at 18 Crucifix Lane, London, SE1 3JW. Tembo is authorised and regulated by the Financial Conduct Authority under the registration number 952652.
© 2026 WhatHouse?
Click here to see your activities