LoginSubscribe to Alerts

4 bedroom semi detached house in Old Town

Do you want to get more information from Barratt Homes
Call: 03333558490
Development Brochure
Request Details
Video Tour Available 

Wichel Fields @ Wichelstowe by Barratt Homes

The Holly
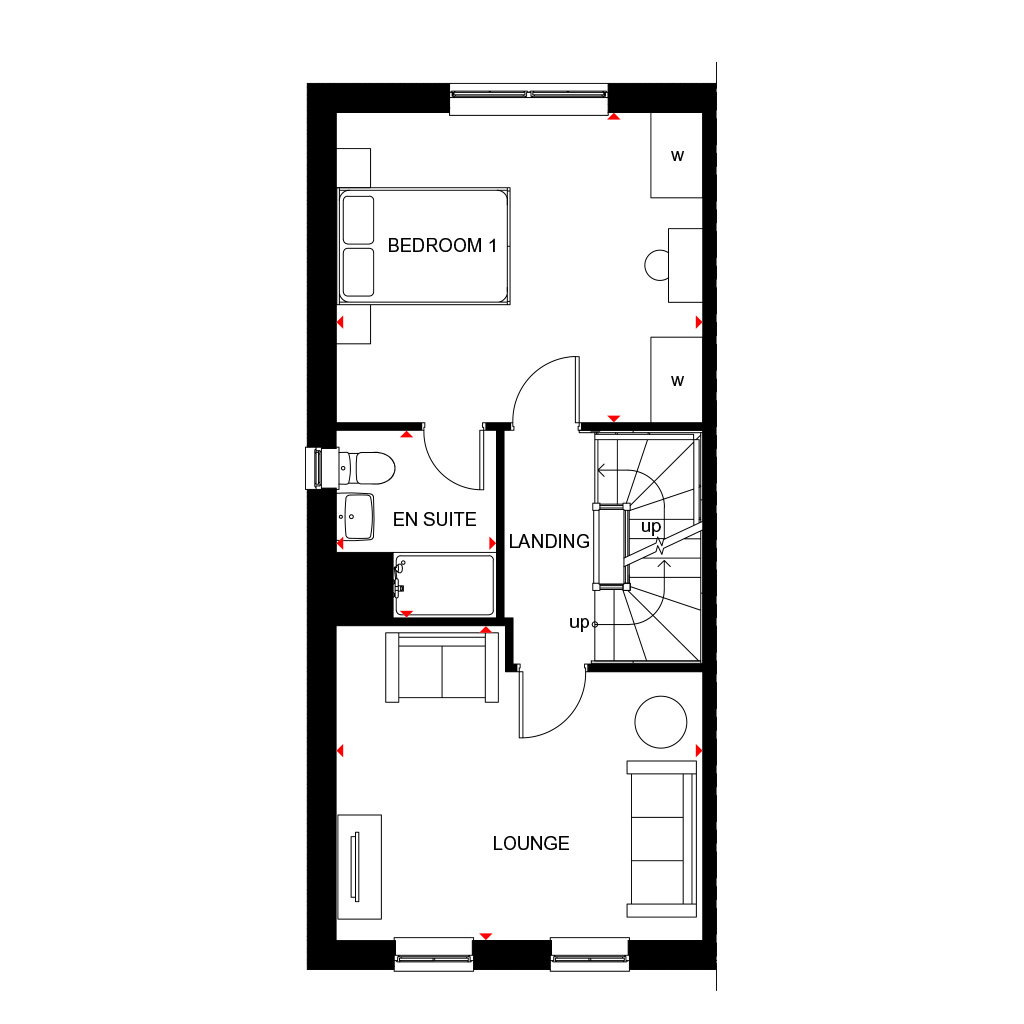
20,849 DEPOSIT CONTRIBUTION. A brand new home with photovoltaic SOLAR PANELS and EV CHARGER. Plot 46 | The Holly | Wichel Fields @ Wichelstowe, Swindon | Barratt Homes. This home has an open plan upgraded kitchen with French doors to the garden. The ground floor is completed by a fourth bedroom or office. On the first floor you`ll find an en suite main bedroom and lounge. A further two double bedrooms and a family bathroom can be found on the top floor. Comes with an EV charger, a garage and two parking spaces. PEACE OF MIND WHEN BUYING NEW: ENERGY SAVING technologies included, meaning you could enjoy lower bills. COMPREHENSIVE WARRANTY as standard for added reassurance. Need help with your mortgage? We can put you in touch with a New Build MORTGAGE BROKER.

Property Features

  • £20,849 deposit contribution
  • Upgraded kitchen and flooring worth £14,580
  • Ready to move into this spring
  • En suite main bedroom
  • Photovoltaic solar panels and EV charger
  • Garage and parking

Quick mortgage affordability calculator

Tembo is an award-winning mortgage broker
Voted the UK’s Best Mortgage Broker by its customers in 2022 and 2023, Tembo is helping buyers discover their true mortgage affordability.

Tembo boosts its average customer’s maximum budget by £82,000. They do this by not only checking your affordability for over 100 lenders and standard products, but also for a range of budget-boosting specialist schemes.

Schemes include:
Ways for family to support using income, property or savings 
Private part buy part rent & government shared ownership 
Professional mortgages and 5.5x borrowing schemes
Sharia compliant home purchase plans
& so much more

Discover what your budget could be using our simple calculator, and afterwards access personalised interest rates through their full fact-find.

Your home may be repossessed if you do not keep up payments on your mortgage.

Property Floorplans

Click to expand floorplan image.

Property Tour


Contact Barratt Homes

Want to know more about Wichel Fields @ Wichelstowe from Barratt Homes
Barratt Homes will use this information to contact you.
ThankYou

Other properties on this development

List Sort: 
H8745118 - The Oak
4 bedroom detached house for sale
4 Bedrooms
Key worker? We`ll contribute 24,499 towards your deposit. Brand new home with photovoltaic SOLAR PANELS and EV CHARGER. Plot 118 | The Oak | Wichel Fields @ Wichelstowe, Swindon | Barratt Homes.
H874579 - The Cypress
3 bedroom detached house for sale
3 Bedrooms
Key worker? We`ll contribute 21,249 TOWARDS YOUR DEPOSIT. Come and visit us to find out more.
H874580 - The Holly
4 bedroom semi detached house for sale
Video Tour 
4 Bedrooms
Key worker? We`ll contribute 20,999 TOWARDS YOUR DEPOSIT. Come and visit us to find out more.

Property Information

Price Details:
£416,995
Bedrooms:
4 bedrooms
Brochure:

Development Location

Individual savings and affordability may vary.

YOUR HOME MAY BE REPOSSESSED IF YOU DO NOT KEEP UP PAYMENTS ON YOUR MORTGAGE.

If you choose to use Tembo for mortgage advice, we may earn a commission from them for the introduction. This does not negatively impact the amount you'll pay for their service.

Tembo Money Limited (12631312) is a company registered in England and Wales with its registered office at 18 Crucifix Lane, London, SE1 3JW. Tembo is authorised and regulated by the Financial Conduct Authority under the registration number 952652.
© 2026 WhatHouse?
Click here to see your activities