LoginSubscribe to Alerts

3 bedroom terraced house in Towcester

Do you want to get more information from Barratt Homes
Call: 03333558481

Barratt Homes At Towcester Grange by Barratt Homes

Oakley
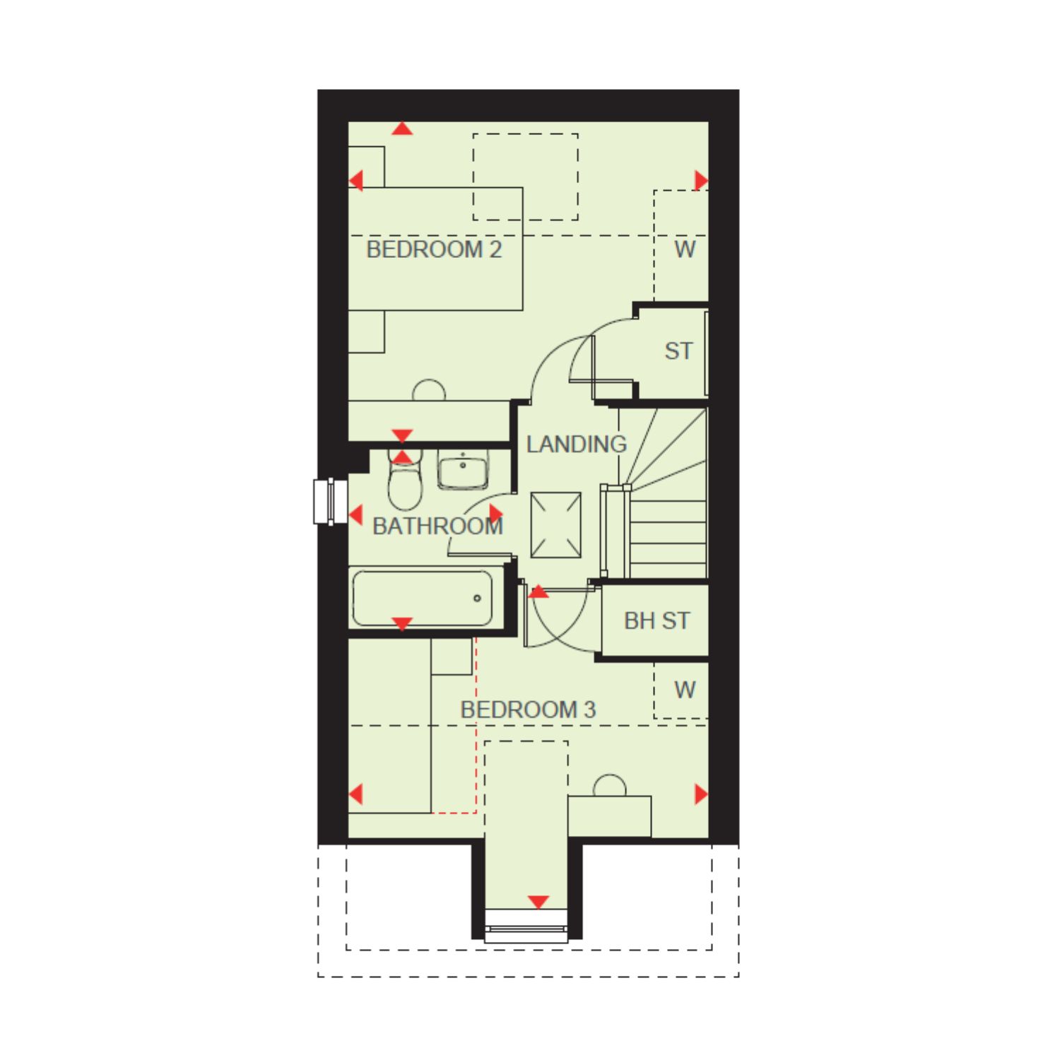
KEY WORKER DEPOSIT CONTRIBUTION * - PLOT 250 THE OAKLEY AT TOWCESTER GRANGE - On the ground floor of the Oakley home you will find the large open-plan kitchen/diner with family area and French doors that lead to the garden. You will also find two storage cupboards, a W.C and study or optional 4th bedroom.The first floor features the large main bedroom with en suite and your private, cosy lounge.The second floor is comprised of two bedrooms, both with a storage cupboard and the family bathroom. This home includes a range of energy-efficient features including solar PV panels and more.

Property Features

  • Mid-terrace three bedroom home
  • Key Worker Deposit Contribution^
  • Two parking spaces
  • Ground floor study
  • First-floor lounge
  • Main bedroom with en suite

Quick mortgage affordability calculator

Tembo is an award-winning mortgage broker
Voted the UK’s Best Mortgage Broker by its customers in 2022 and 2023, Tembo is helping buyers discover their true mortgage affordability.

Tembo boosts its average customer’s maximum budget by £82,000. They do this by not only checking your affordability for over 100 lenders and standard products, but also for a range of budget-boosting specialist schemes.

Schemes include:
Ways for family to support using income, property or savings 
Private part buy part rent & government shared ownership 
Professional mortgages and 5.5x borrowing schemes
Sharia compliant home purchase plans
& so much more

Discover what your budget could be using our simple calculator, and afterwards access personalised interest rates through their full fact-find.

Your home may be repossessed if you do not keep up payments on your mortgage.

Property Floorplans

Click to expand floorplan image.

Property Tour


Contact Barratt Homes

Want to know more about Barratt Homes at Towcester Grange from Barratt Homes
Barratt Homes will use this information to contact you.
ThankYou

Other properties on this development

List Sort: 
H9387266 - Radleigh
4 bedroom detached house for sale
Video Tour 
4 Bedrooms
PLOT 266 THE RADLEIGH AT TOWCESTER GRANGE | At the front of this home you will find a spacious lounge and a separate study. There is also an adjoining utility room.
H9387252 - Radleigh
4 bedroom detached house for sale
Video Tour 
4 Bedrooms
SOUTH-WEST FACING GARDEN. *PLOT 252 - RADLEIGH AT TOWCESTER GRANGE* At the front of this home you will find a spacious lounge and a separate study. There is also an adjoining utility room.
H9387245 - Hesketh
4 bedroom detached house for sale
Video Tour 
4 Bedrooms
23,699 TOWARDS YOUR MOVE*. PLOT 245 THE HESKETH AT TOWCESTER GRANGE IDEAL CORNER PLOT- This three-storey, detached four-bedroom home includes an open plan kitchen with French doors onto the garden.
H9387234 - Hesketh
4 bedroom detached house for sale
Video Tour 
4 Bedrooms
IDEAL CORNER LOCATION. *PLOT 234 - HESKETH AT TOWCESTER GRANGE*. Featuring a large open-plan kitchen with dining area features French doors onto your rear garden.
H9387254 - Plumstead
3 bedroom end terraced house for sale
Video Tour 
3 Bedrooms
PLOT 254 THE PLUMSTEAD AT TOWCESTER GRANGE - The Plumstead features ample storage space on every floor. Completing this floor is French doors leading to the garden.
H9387262 - Moresby
3 bedroom detached house for sale
Video Tour 
3 Bedrooms
PLOT 262 THE MORESBY AT TOWCESTER GRANGE - A spacious 3 bedroom home with ample storage options.
H9387255 - Plumstead
3 bedroom terraced house for sale
Video Tour 
3 Bedrooms
PLOT 255 THE PLUMSTEAD AT TOWCESTER GRANGE - SOUTH-WEST FACING GARDEN - The Plumstead features ample storage space on every floor. Completing this floor is French doors leading to the garden.
H9387259 - Ellerton
3 bedroom semi detached house for sale
Video Tour 
3 Bedrooms
PLOT 259 THE ELLERTON AT TOWCESTER GRANGE - This bright and practical home is ideal for modern family living. The home also features a spacious lounge for all of the family to relax in.
H9387227 - Ellerton
3 bedroom semi detached house for sale
Video Tour 
3 Bedrooms
18,699 TOWARDS YOUR MOVE* + UPGRADES WORTH 8,841. PLOT 227 - THE ELLERTON AT TOWCESTER GRANGE. There`s also a bright and airy lounge, a cloakroom and some understairs storage.
H9387236 - Maidstone
3 bedroom semi detached house for sale
Video Tour 
3 Bedrooms
READY TO MOVE INTO! 18,599 TOWARDS YOUR MOVE* + KITCHEN AND FLOORING. *PLOT 236 - MAIDSTONE AT TOWCESTER GRANGE*. The Maidstone is an energy-efficient 3 bedroom home.
H9387247 - Richmond
2 bedroom end terraced house for sale
Video Tour 
2 Bedrooms
PLOT 247 THE RICHMOND AT TOWCESTER GRANGE - This 2-bedroom home is perfect for first time buyers. The ground floor has a modern kitchen and a spacious lounge with room for a dining table.
H9387244 - Richmond
2 bedroom end terraced house for sale
Video Tour 
2 Bedrooms
16,225 TOWARDS YOUR MOVE*. UPGRADES PACKAGE WORTH 9,000. *PLOT 244 - RICHMOND AT TOWCESTER GRANGE*. This end-terraced home is perfect for first time buyers.

Property Information

Price Details:
£394,995
Bedrooms:
3 bedrooms
Brochure:

Development Location

Individual savings and affordability may vary.

YOUR HOME MAY BE REPOSSESSED IF YOU DO NOT KEEP UP PAYMENTS ON YOUR MORTGAGE.

If you choose to use Tembo for mortgage advice, we may earn a commission from them for the introduction. This does not negatively impact the amount you'll pay for their service.

Tembo Money Limited (12631312) is a company registered in England and Wales with its registered office at 18 Crucifix Lane, London, SE1 3JW. Tembo is authorised and regulated by the Financial Conduct Authority under the registration number 952652.
© 2026 WhatHouse?
Click here to see your activities