LoginSubscribe to Alerts

5 bedroom detached house in Leicester Forest East

Do you want to get more information from Barratt Homes
Call: 03333558472
Development Brochure
Request Details
Video Tour Available 

New Lubbesthorpe by Barratt Homes

Marlowe
Stamp Duty paid worth 20,799 | 10,000 moving cost contribution | Flooring included throughout & upgraded kitchen package Located on a private drive | Impressive family home | The open-plan kitchen is the hub of the home, with French doors to the garden. Completing the ground floor is a spacious lounge with a further set of French doors, dining room and cloakroom. Upstairs, there`s room for all the family, with 3 double bedrooms; 2 of which offer an en suite, 2 further single bedrooms. This home also features a double garage & parking for 4 cars. Plot 387 | Marlowe | New Lubbesthorpe Discover the perfect balance of stunning rural scenery and urban living at this thriving development. Nestled in 250 acres of green space and located just 15 minutes from bustling Leicester city centre is a range of uniquely designed homes boasting excellent energy-efficiency. From established schools, to easy commutes either by road or train and exciting days out - find it all at New Lubbesthorpe.

Property Features

  • Stamp Duty paid worth £20,799
  • £10,000 moving cost contribution
  • Flooring included throughout £9,352
  • Upgraded kitchen worth £3,829
  • Located on a private drive
  • Open plan kitchen/dining area
  • Separate bay-fronted dining room
  • En suite to bed 1 & 2
  • Double detached garage
  • Parking for 4 cars

Quick mortgage affordability calculator

Tembo is an award-winning mortgage broker
Voted the UK’s Best Mortgage Broker by its customers in 2022 and 2023, Tembo is helping buyers discover their true mortgage affordability.

Tembo boosts its average customer’s maximum budget by £82,000. They do this by not only checking your affordability for over 100 lenders and standard products, but also for a range of budget-boosting specialist schemes.

Schemes include:
Ways for family to support using income, property or savings 
Private part buy part rent & government shared ownership 
Professional mortgages and 5.5x borrowing schemes
Sharia compliant home purchase plans
& so much more

Discover what your budget could be using our simple calculator, and afterwards access personalised interest rates through their full fact-find.

Your home may be repossessed if you do not keep up payments on your mortgage.

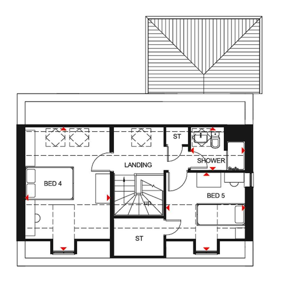
Property Floorplans

Click to expand floorplan image.

Property Tour


Contact Barratt Homes

Want to know more about New Lubbesthorpe from Barratt Homes
Barratt Homes will use this information to contact you.
ThankYou

Other properties on this development

List Sort: 
H9344386 - Marlowe
5 bedroom detached house for sale
Video Tour 
5 Bedrooms
10,000 moving cost contribution | Stamp Duty paid worth 20,799 | Upgraded kitchen package & flooring included throughout Located on a private drive | Impressive family home | The open-plan is of ...
H9344382 - Fallow
5 bedroom detached house for sale
5 Bedrooms
Located on a private drive | Ideal for large families - 5 bedroom home | The Fallow features a large open-plan kitchen with a dining/family area with French doors leading onto the garden.
H9344385 - Fallow
5 bedroom detached house for sale
5 Bedrooms
5% towards your deposit worth 28,299 | OR House to sell? Ask about Part Exchange | Flooring included throughout & an upgraded kitchen package Ideal for large families - 5 bedroom home | The Fallow ...
H9344390 - Alfreton
4 bedroom detached house for sale
Video Tour 
4 Bedrooms
10,000 moving cost contribution | Stamp Duty paid worth 16,259 | Flooring included throughout & Upgraded kitchen package Cul-de-sac location | The Alfreton is an impressive 4 bedroom detached an ...
H9344384 - Radleigh
4 bedroom detached house for sale
Video Tour 
4 Bedrooms
Upgraded kitchen package worth 3,829 This four bedroom detached home has a spacious open-plan kitchen with French doors onto the garden.
H9344379 - Radleigh
4 bedroom detached house for sale
Video Tour 
4 Bedrooms
10,000 moving cost contribution | Stamp Duty paid worth 15,749 | Flooring included throughout & upgraded kitchen package | OR KeyWorker? Ask about deposit contribution scheme Overlooking open | ...
H9344375 - Kingsville
3 bedroom semi detached house for sale
Video Tour 
3 Bedrooms
Flexible living | South facing garden | On the ground floor, you`ll find an open plan kitchen with a dining and family area and French doors to the garden. Single garage & Driveway parking for 2 cars.
H9344388 - Lutterworth
3 bedroom detached house for sale
Video Tour 
3 Bedrooms
5% towards your deposit worth 18,684 | Flooring included throughout & an upgraded kitchen package The Lutterworth is a 3 bedroom detached family home | | With an open plan kitchen/dining area and ...
H9344376 - Kingsville
3 bedroom semi detached house for sale
Video Tour 
3 Bedrooms
5% towards your deposit worth 17,999 | Flooring included throughout & upgraded kitchen package South-facing garden | On the ground floor, you`ll find an open plan kitchen with a dining and family ...
H9344374 - Kingsville
3 bedroom semi detached house for sale
Video Tour 
3 Bedrooms
South-west facing | On the ground floor, you`ll find an open plan kitchen with a dining and family area and French doors to the garden. You`ll also find a home office, cloakroom and storage cupboard.
H9344427 - Leiston
2 bedroom apartment for sale
2 Bedrooms
This firstfloor two bedroom apartment features a bright openplan kitchen, dining and lounge space. It offers two generous double bedrooms and a stylish family bathroom.
H9344429 - Haxby
2 bedroom apartment for sale
2 Bedrooms
South-facing garden | Ground floor apartment | This modern two bedroom apartment offers a bright openplan kitchen, dining and lounge space, a generous double bedroom, a single bedroom/home office and ...

Property Information

Price Details:
£615,995
Bedrooms:
5 bedrooms
Development:
Brochure:

Development Location

Individual savings and affordability may vary.

YOUR HOME MAY BE REPOSSESSED IF YOU DO NOT KEEP UP PAYMENTS ON YOUR MORTGAGE.

If you choose to use Tembo for mortgage advice, we may earn a commission from them for the introduction. This does not negatively impact the amount you'll pay for their service.

Tembo Money Limited (12631312) is a company registered in England and Wales with its registered office at 18 Crucifix Lane, London, SE1 3JW. Tembo is authorised and regulated by the Financial Conduct Authority under the registration number 952652.
© 2026 WhatHouse?
Click here to see your activities