LoginSubscribe to Alerts

4 bedroom semi detached house in Hemel Hempstead

Do you want to get more information from Barratt Homes
Call: 03333558500

Chaulden Meadows by Barratt Homes

Hesketh
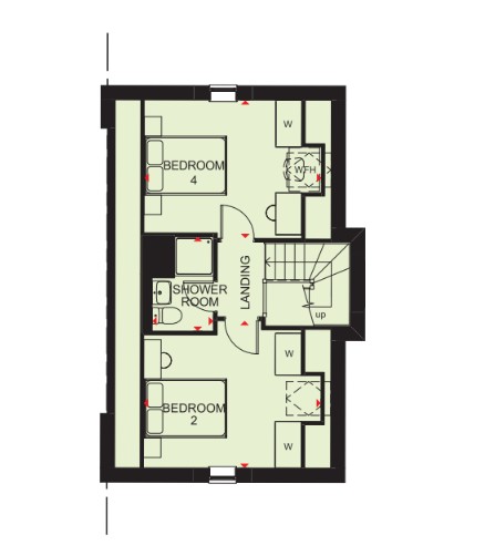
HOME TO SELL? ASK US ABOUT PART EXCHANGE | IMPRESSIVE 4 DOUBLE BEDROOM HOME | ALLOCATED PARKING | PERSONALISE YOUR NEW HOME A spacious 4 double bedroom home designed over 3-floors. The open-plan kitchen with dining area benefits from French doors onto the garden, whilst the spacious lounge is ideal for relaxing in the evening. Upstairs you will find the main bedroom with an en suite shower room, a further double bedroom and a family bathroom. On the top floor are 2 double bedrooms and a dual-access shower room.

Property Features

  • Home to sell up to £475,000?
  • Part Exchange with us
  • Buy new and personalise your new home
  • 2 allocated parking spaces
  • Electric car charging point
  • Photovoltaic panels installed
  • 4 double bedrooms
  • Partially walled garden
  • En suite to main bedroom

Quick mortgage affordability calculator

Tembo is an award-winning mortgage broker
Voted the UK’s Best Mortgage Broker by its customers in 2022 and 2023, Tembo is helping buyers discover their true mortgage affordability.

Tembo boosts its average customer’s maximum budget by £82,000. They do this by not only checking your affordability for over 100 lenders and standard products, but also for a range of budget-boosting specialist schemes.

Schemes include:
Ways for family to support using income, property or savings 
Private part buy part rent & government shared ownership 
Professional mortgages and 5.5x borrowing schemes
Sharia compliant home purchase plans
& so much more

Discover what your budget could be using our simple calculator, and afterwards access personalised interest rates through their full fact-find.

Your home may be repossessed if you do not keep up payments on your mortgage.

Property Floorplans

Click to expand floorplan image.

Property Tour



Contact Barratt Homes

Want to know more about Chaulden Meadows from Barratt Homes
Barratt Homes will use this information to contact you.
ThankYou

Other properties on this development

List Sort: 
H934082 - HESKETH
4 bedroom detached house for sale
4 Bedrooms
No estate agent fee`s with Movemaker | Show Home open | Impressive 4 double bedrooms | Partially walled garden | Garage
H934019 - Lutterworth
3 bedroom end terraced house for sale
3 Bedrooms
Two parking spaces | Electric car charging point installed | Modern fitted kitchen The Lutterworth is a modern and spacious 3-bedroom family home.
H934021 - Lutterworth
3 bedroom end terraced house for sale
3 Bedrooms
Allocated parking | Spacious living areas | Two sets of French doors to the garden The Lutterworth is a modern and spacious 3-bedroom family home.
H934023 - Denby
3 bedroom detached house for sale
3 Bedrooms
Home to sell? We could be your guaranteed buyer with Part Exchange The lounge flows seamlessly into the kitchen and the dining area. Upstairs, you`ll find 3 double bedrooms.
H934032 - Kenley
2 bedroom semi detached house for sale
Video Tour 
2 Bedrooms
20,000 Deposit Boost Explore the Kenley home and you`ll find a spacious lounge, perfect for relaxing with the family. Up a flight of stairs you`ll wake up in one of two spacious double bedrooms.
H934020 - Alverton
2 bedroom terraced house for sale
2 Bedrooms
20,000 Deposit Boost | Freehold property | Garage | Allocated parking | Electric car charging point The Alverton is a modern first floor coach house apartment, this home will appeal to first time or ...

Property Information

Price Details:
£615,000
Bedrooms:
4 bedrooms
Development:
Brochure:

Development Location

Individual savings and affordability may vary.

YOUR HOME MAY BE REPOSSESSED IF YOU DO NOT KEEP UP PAYMENTS ON YOUR MORTGAGE.

If you choose to use Tembo for mortgage advice, we may earn a commission from them for the introduction. This does not negatively impact the amount you'll pay for their service.

Tembo Money Limited (12631312) is a company registered in England and Wales with its registered office at 18 Crucifix Lane, London, SE1 3JW. Tembo is authorised and regulated by the Financial Conduct Authority under the registration number 952652.
© 2026 WhatHouse?
Click here to see your activities