LoginSubscribe to Alerts

4 bedroom detached house in Kilmarnock

Do you want to get more information from Barratt Homes
Call: 03333558462

Barratt @ Lairds Gait by Barratt Homes

Campbell
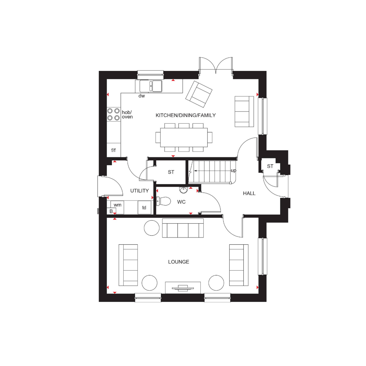
Combining style and space, this 4 bedroom detached home features an open-plan kitchen/dining/family area with French doors to the garden, creating a light-filled hub for everyday living. A separate lounge with dual-aspect windows offers a relaxing retreat. Upstairs, four double bedrooms include a main bedroom with en suite. A utility room, WC, and detached garage complete this home.

Property Features

  • Detached home
  • Single detached garage
  • Open-plan kitchen/dining/family
  • French doors to garden
  • 4 double bedrooms
  • Downstairs WC
  • Utility room
  • En suite to main bedroom
  • Family bathroom
  • Good storage space

Quick mortgage affordability calculator

Tembo is an award-winning mortgage broker
Voted the UK’s Best Mortgage Broker by its customers in 2022 and 2023, Tembo is helping buyers discover their true mortgage affordability.

Tembo boosts its average customer’s maximum budget by £82,000. They do this by not only checking your affordability for over 100 lenders and standard products, but also for a range of budget-boosting specialist schemes.

Schemes include:
Ways for family to support using income, property or savings 
Private part buy part rent & government shared ownership 
Professional mortgages and 5.5x borrowing schemes
Sharia compliant home purchase plans
& so much more

Discover what your budget could be using our simple calculator, and afterwards access personalised interest rates through their full fact-find.

Your home may be repossessed if you do not keep up payments on your mortgage.

Property Floorplans

Click to expand floorplan image.

Property Tour



Contact Barratt Homes

Want to know more about Barratt @ Lairds Gait from Barratt Homes
Barratt Homes will use this information to contact you.
ThankYou

Other properties on this development

List Sort: 
H8459101 - Stobo
4 bedroom detached house for sale
Video Tour 
4 Bedrooms
Designed with families in mind, The Stobo offers spacious, flexible living throughout. The generous kitchen/diner opens directly to the garden and is perfect for hosting your friends and family.
H845966 - Kinloch
4 bedroom detached house for sale
Video Tour 
4 Bedrooms
This 4 bedroom home is designed with space and comfort in mind. A handy utility room and a bright, spacious lounge complete this level.
H8459240 - Fenton
4 bedroom detached house for sale
Video Tour 
4 Bedrooms
Looking for space? This stylish 4 bedroom detached home is designed for modern living. A handy utility room and WC add convenience. An integral garage completes this home.
H8459109 - Cupar
3 bedroom end terraced house for sale
Video Tour 
3 Bedrooms
This 3 bedroom offers an open-plan kitchen/dining area with garden access and a cosy lounge. Upstairs, 3 bedrooms include 2 double bedrooms with a main bedroom en suite and a flexible single bedroom.
H8459111 - Coull
3 bedroom terraced house for sale
Video Tour 
3 Bedrooms
This 3 bedroom home offers a bright front-facing lounge and an open-plan kitchen/dining area with access to the garden. A WC and utility space add practicality.

Property Information

Price Details:
£344,995
Bedrooms:
4 bedrooms
Brochure:

Development Location

Individual savings and affordability may vary.

YOUR HOME MAY BE REPOSSESSED IF YOU DO NOT KEEP UP PAYMENTS ON YOUR MORTGAGE.

If you choose to use Tembo for mortgage advice, we may earn a commission from them for the introduction. This does not negatively impact the amount you'll pay for their service.

Tembo Money Limited (12631312) is a company registered in England and Wales with its registered office at 18 Crucifix Lane, London, SE1 3JW. Tembo is authorised and regulated by the Financial Conduct Authority under the registration number 952652.
© 2026 WhatHouse?
Click here to see your activities