LoginSubscribe to Alerts

3 bedroom semi detached house in Wimborne

Do you want to get more information from Barratt Homes
Call: 03333558493

Quarter Jack Park by Barratt Homes

Buchanan
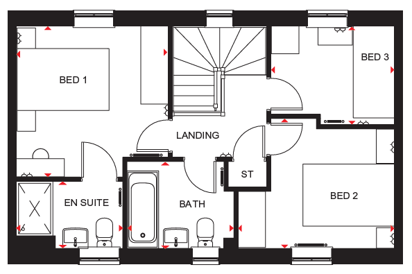
Brand new three bedroom home in a CUL-DE-SAC location with a SOUTH FACING GARDEN. Benefit from 20,600 TOWARDS YOUR DEPOSIT. Plot 78 | The Buchanan | Quarter Jack Park, Wimborne | Barratt Homes. This home has an open plan kitchen and dining area with French doors to the south facing garden. There is a comfortable lounge, also with French doors to the garden, and a downstairs storage space. Upstairs you`ll find an en suite main bedroom, a further double bedroom, a single and the family bathroom. Comes with EV charger and two parking spaces. PEACE OF MIND WHEN BUYING NEW: ? ENERGY SAVING technologies included, meaning you could enjoy lower bills. COMPREHENSIVE WARRANTY as standard for added reassurance. Need help with your mortgage? We can put you in touch with a New Build MORTGAGE BROKER.

Property Features

  • £20,600 deposit contribution
  • South facing garden
  • Cul-de-sac location
  • Open plan kitchen
  • En suite main bedroom
  • Photovoltaic solar panels and EV charger

Quick mortgage affordability calculator

Tembo is an award-winning mortgage broker
Voted the UK’s Best Mortgage Broker by its customers in 2022 and 2023, Tembo is helping buyers discover their true mortgage affordability.

Tembo boosts its average customer’s maximum budget by £82,000. They do this by not only checking your affordability for over 100 lenders and standard products, but also for a range of budget-boosting specialist schemes.

Schemes include:
Ways for family to support using income, property or savings 
Private part buy part rent & government shared ownership 
Professional mortgages and 5.5x borrowing schemes
Sharia compliant home purchase plans
& so much more

Discover what your budget could be using our simple calculator, and afterwards access personalised interest rates through their full fact-find.

Your home may be repossessed if you do not keep up payments on your mortgage.

Property Floorplans

Click to expand floorplan image.

Property Tour


Contact Barratt Homes

Want to know more about Quarter Jack Park from Barratt Homes
Barratt Homes will use this information to contact you.
ThankYou

Other properties on this development

List Sort: 
H8456112 - ALDERNEY
4 bedroom detached house for sale
Video Tour 
4 Bedrooms
Brand new detached home OVERLOOKING OPEN SPACE with its own GARAGE and DRIVEWAY. Property to sell? Why not PART EXCHANGE?.
H84569 - ALDERNEY
4 bedroom detached house for sale
Video Tour 
4 Bedrooms
Brand new four bedroom detached home with photovoltaic SOLAR PANELS and an EV CHARGER. We could be your guaranteed buyer with our PART EXCHANGE SCHEME.
H8456113 - Chester
4 bedroom detached house for sale
Video Tour 
4 Bedrooms
Brand new detached home OVERLOOKING OPEN SPACE with its own GARAGE AND DRIVEWAY. Plot 113 | The Chester | Quarter Jack Park, Wimborne | Barratt Homes.
H84568 - Chester
4 bedroom detached house for sale
Video Tour 
4 Bedrooms
Brand new detached four bedroom home with GARAGE and DRIVEWAY. Got a property to sell? Why not PART EXCHANGE?. Plot 8 | The Chester | Quarter Jack Park, Wimborne | Barratt Homes.
H845611 - Woodcote
4 bedroom semi detached house for sale
Video Tour 
4 Bedrooms
Benefit from 24,500 TOWARDS YOUR DEPOSIT. Plus over 7,800 worth of UPGRADES Plot 11 | The Woodcote | Quarter Jack Park, Wimborne | Barratt Homes.
H845687 - Moresby
3 bedroom detached house for sale
Video Tour 
3 Bedrooms
Brand new detached three bedroom home with an UPGRADED KITCHEN, photovoltaic SOLAR PANELS and an EV CHARGER. Plus benefit from 21,750 TOWARDS YOUR DEPOSIT.
H845691 - Kingsville
4 bedroom semi detached house for sale
Video Tour 
4 Bedrooms
Brand new home in a CUL-DE-SAC LOCATION with a SOUTH FACING GARDEN. Receive up to 21,500 TOWARDS YOUR DEPOSIT.
H845668 - Moresby
3 bedroom semi detached house for sale
Video Tour 
3 Bedrooms
Brand new home READY TO MOVE INTO with photovoltaic SOLAR PANELS and an EV CHARGER. Plus benefit from a 21,250 DEPOSIT CONTRIBUTION.
H845671 - Moresby
3 bedroom end terraced house for sale
Video Tour 
3 Bedrooms
Brand new home READY TO MOVE INTO NOW with 21,000 DEPOSIT CONTRIBUTION, UPGRADES WORTH $5,400 and a driveway with an EV CHARGER.
H845689 - Kingsville
4 bedroom terraced house for sale
Video Tour 
4 Bedrooms
Brand new mid terrace home in a CUL-DE-SAC LOCATION with 21,000 TOWARDS YOUR DEPOSIT and an UPGRADED KITCHEN INCLUDED. Plot 89 | The Kingsville | Quarter Jack Park, Wimborne | Barratt Homes.
H8456111 - Ellerton
3 bedroom semi detached house for sale
Video Tour 
3 Bedrooms
Brand new home with SOUTH FACING GARDEN and OWN DRIVEWAY. Plot 111 | The Ellerton | Quarter Jack Park, Wimborne | Barratt Homes.
H8456110 - Ellerton
3 bedroom semi detached house for sale
Video Tour 
3 Bedrooms
Brand new home with a SOUTH FACING GARDEN, EV CHARGER and TWO PARKING SPACES.
H84561 - RICHMOND
2 bedroom semi detached house for sale
Video Tour 
2 Bedrooms
Brand new semi detached home OVERLOOKING OPEN SPACE with TWO PARKING SPACES. KEYWORKER? Receive up to 17,375 TOWARDS YOUR DEPOSIT. There`s also a modern kitchen, cloakroom and some storage space.
H8456108 - Denford
2 bedroom end terraced house for sale
Video Tour 
2 Bedrooms
This two bedroom home is ideal for first time buyers. We`ll take the hassle out of your move with our MOVEMAKER SCHEME. Plot 108 | The Denford | Quarter Jack Park, Wimborne | Barratt Homes.
H8456107 - Denford
2 bedroom terraced house for sale
Video Tour 
2 Bedrooms
Brand new two bedroom home available to PERSONALISE. KEYWORKER? You could receive up to 16,250 TOWARDS YOUR DEPOSIT. Plot 107 | The Denford | Quarter Jack Park, Wimborne | Barratt Homes.
H845699 - Alverton
2 bedroom end terraced house for sale
Video Tour 
2 Bedrooms
New two bedroom coach house with its own GARAGE and EV CHARGER. Plus benefit from 14,500 TOWARDS YOUR DEPOSIT and UPGRADES INCLUDED worth 4,800.

Property Information

Price Details:
£412,000
Bedrooms:
3 bedrooms
Development:
Brochure:

Development Location

Individual savings and affordability may vary.

YOUR HOME MAY BE REPOSSESSED IF YOU DO NOT KEEP UP PAYMENTS ON YOUR MORTGAGE.

If you choose to use Tembo for mortgage advice, we may earn a commission from them for the introduction. This does not negatively impact the amount you'll pay for their service.

Tembo Money Limited (12631312) is a company registered in England and Wales with its registered office at 18 Crucifix Lane, London, SE1 3JW. Tembo is authorised and regulated by the Financial Conduct Authority under the registration number 952652.
© 2026 WhatHouse?
Click here to see your activities