LoginSubscribe to Alerts

3 bedroom semi detached house in Ellington

Do you want to get more information from Barratt Homes
Call: 03333558510

Barratt Homes @ Alconbury Weald by Barratt Homes

Woodcote
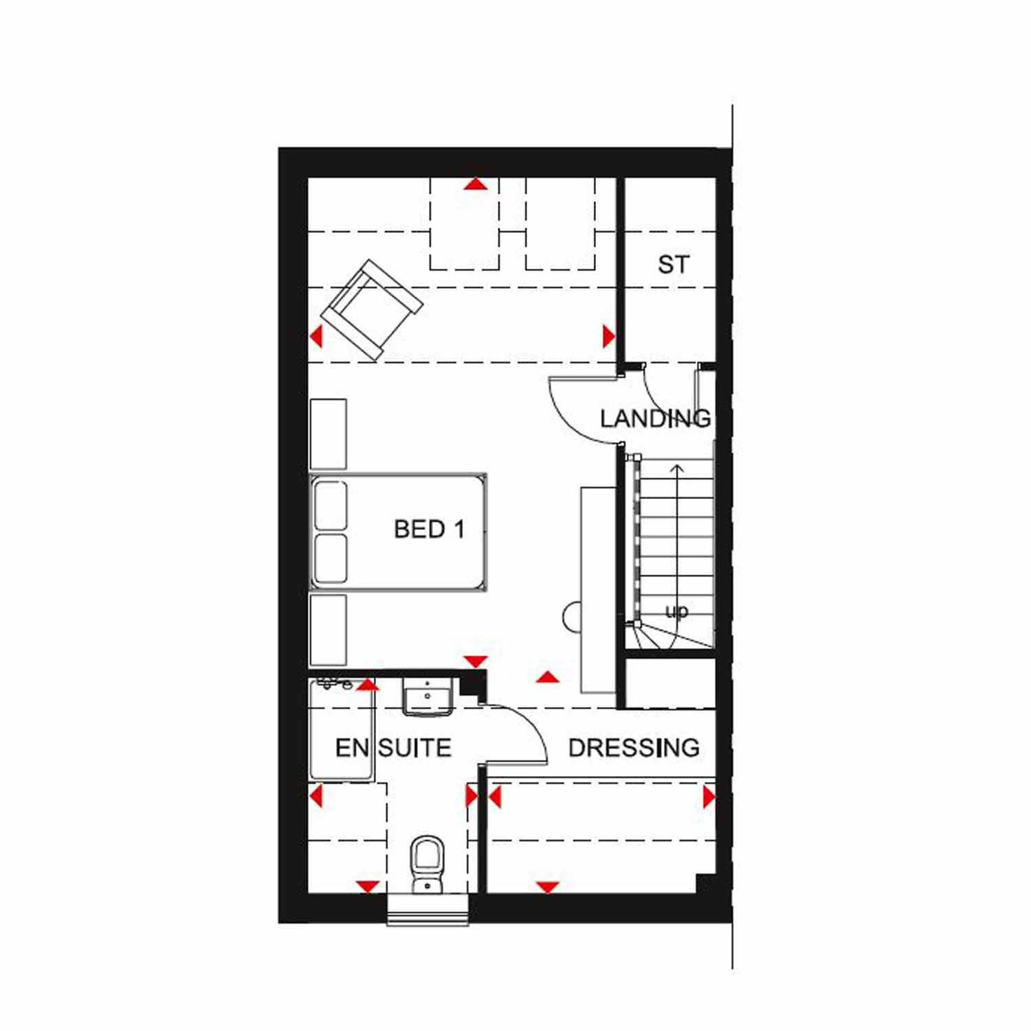
20,050 DEPOSIT CONTRIBUTION* - UPGRADED KITCHEN WITH INTEGRATED APPLIANCES - FLOORING PACKAGE INCLUDED - SOLAR PANELS & EV CHARGING POD - THE WOODCOTE - Featuring a modern kitchen at the front of the home, to the rear is your spacious lounge/dining area with a box-bay window and French doors onto the garden. Upstairs are two double bedrooms, a single bedroom that could be your home office and a bathroom. The top floor is dedicated to your main bedroom with dressing area and en-suite.

Property Features

  • £20,050 Deposit Contribution
  • Upgraded kitchen + integrated appliances
  • Flooring package included
  • Semi-detached 3 bedroom home
  • Overlooking linear park
  • Solar panels & EV charging pod
  • Garage + carport & 2 car driveway
  • Dedicated top floor main bedroom
  • Top floor en-suite & dressing area

Quick mortgage affordability calculator

Tembo is an award-winning mortgage broker
Voted the UK’s Best Mortgage Broker by its customers in 2022 and 2023, Tembo is helping buyers discover their true mortgage affordability.

Tembo boosts its average customer’s maximum budget by £82,000. They do this by not only checking your affordability for over 100 lenders and standard products, but also for a range of budget-boosting specialist schemes.

Schemes include:
Ways for family to support using income, property or savings 
Private part buy part rent & government shared ownership 
Professional mortgages and 5.5x borrowing schemes
Sharia compliant home purchase plans
& so much more

Discover what your budget could be using our simple calculator, and afterwards access personalised interest rates through their full fact-find.

Your home may be repossessed if you do not keep up payments on your mortgage.

Property Floorplans

Click to expand floorplan image.

Property Tour


Contact Barratt Homes

Want to know more about Barratt Homes @ Alconbury Weald from Barratt Homes
Barratt Homes will use this information to contact you.
ThankYou

Other properties on this development

List Sort: 
H898695 - Hesketh
4 bedroom detached house for sale
Video Tour 
4 Bedrooms
PLOT 95 THE HESKETH AT ALCONBURY WEALD -?The Hesketh features an open-plan kitchen diner with French doors onto the garden. While the lounge offers a retreat to relax into in the evenings.
H898687 - Hesketh
4 bedroom detached house for sale
Video Tour 
4 Bedrooms
**Garage** & ** carport** - come and view - The Hesketh features an open-plan kitchen diner with French doors onto the garden. While the lounge offers a retreat to relax into in the evenings.
H898649 - Chester
4 bedroom detached house for sale
Video Tour 
4 Bedrooms
20,150 DEPOSIT BOOST* - UPGRADED KITCHEN + INTEGRATED APPLIANCES - FLOORING PACKAGE - SHOW HOME ON THE DEVELOPMENT - SOLAR PANELS INCLUDED - EV CHARGING POD INCLUDED - In the Chester is the large bar ...
H898651 - Chester
4 bedroom detached house for sale
Video Tour 
4 Bedrooms
**Ready to move into** - LINK-DETACHED - Show Home available to view - 19,999 DEPOSIT CONTRIBUTION* - FLOORING INCLUDED - UPGRADED KITCHEN | In the Chester is the large open-plan kitchen/dining area, ...
H898685 - Maidstone
3 bedroom semi detached house for sale
3 Bedrooms
**2 sparking spaces** - two **double** bedrooms - The Maidstone is a three bedroom family home.
H898686 - Maidstone
3 bedroom semi detached house for sale
Video Tour 
3 Bedrooms
PLOT 86 THE MAIDSTONE AT ALCONBURY WEALD - The Maidstone is a three bedroom family home.

Property Information

Price Details:
£400,995
Bedrooms:
3 bedrooms
Brochure:

Development Location

Individual savings and affordability may vary.

YOUR HOME MAY BE REPOSSESSED IF YOU DO NOT KEEP UP PAYMENTS ON YOUR MORTGAGE.

If you choose to use Tembo for mortgage advice, we may earn a commission from them for the introduction. This does not negatively impact the amount you'll pay for their service.

Tembo Money Limited (12631312) is a company registered in England and Wales with its registered office at 18 Crucifix Lane, London, SE1 3JW. Tembo is authorised and regulated by the Financial Conduct Authority under the registration number 952652.
© 2026 WhatHouse?
Click here to see your activities