LoginSubscribe to Alerts

4 bedroom detached house in Cambridge

Do you want to get more information from Barratt Homes
Call: 03333558510

Darwin Green by Barratt Homes

Girton
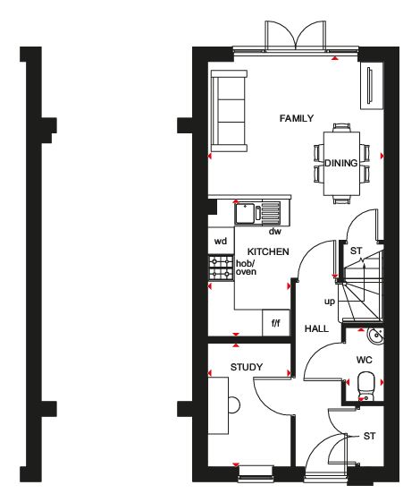
31,500 DEPOSIT CONTRIBUTION* - SOLAR PANELS & EV CHARGING POD INCLUDED - THE GIRTON - Enter this 4 bed home & you will find an open-plan kitchen family/dining area with French doors onto the garden. At the front of the home is a study, the ideal place to work from home. On the first floor are bedrooms 1 & 2, both with en-suites. There is also another living area to relax in the evenings. On the top floor is a 3rd double bedroom and a single bedroom.

Property Features

  • £31,500 Deposit Contribution
  • Link-detached 4 bedroom home
  • Solar panels & EV charging pod
  • Carport & driveway for 2 cars
  • Upgraded kitchen & integrated appliances
  • Flooring included
  • Bedroom 1 & 2 with en-suites
  • 1,383 sqft

Quick mortgage affordability calculator

Tembo is an award-winning mortgage broker
Voted the UK’s Best Mortgage Broker by its customers in 2022 and 2023, Tembo is helping buyers discover their true mortgage affordability.

Tembo boosts its average customer’s maximum budget by £82,000. They do this by not only checking your affordability for over 100 lenders and standard products, but also for a range of budget-boosting specialist schemes.

Schemes include:
Ways for family to support using income, property or savings 
Private part buy part rent & government shared ownership 
Professional mortgages and 5.5x borrowing schemes
Sharia compliant home purchase plans
& so much more

Discover what your budget could be using our simple calculator, and afterwards access personalised interest rates through their full fact-find.

Your home may be repossessed if you do not keep up payments on your mortgage.

Property Floorplans

Click to expand floorplan image.

Contact Barratt Homes

Want to know more about Darwin Green from Barratt Homes
Barratt Homes will use this information to contact you.
ThankYou

Other properties on this development

List Sort: 
H7770141 - Williamsburg
4 bedroom detached house for sale
4 Bedrooms
DEPOSIT BOOST WORTH 33,250* - BLINDS PACKAGE INCLUDED - WILLIAMSBURG - Featuring an open-plan kitchen with breakfast bar at the front of the home and living/dining area at the rear with French doors ...
H7768103 - Oakington
3 bedroom semi detached house for sale
3 Bedrooms
The Oakington is designed over three floors creating a home for flexible modern living. Completing your ground floor is a WC and spacious understair store cupboard.
H7768113 - Oakington
3 bedroom semi detached house for sale
3 Bedrooms
10,000 DEPOSIT CONTRIBUTION - UPGRADED KITCHEN & FLOORING INCLUDED - SOLAR PANELS - EV CHARGING POD - PLOT 113 THE OAKINGTON AT DARWIN GREEN is designed over three floors creating a home for flexible ...
H7768112 - Stambourne Special
3 bedroom semi detached house for sale
Video Tour 
3 Bedrooms
BRAND NEW HOME. 10,000 Deposit Contribution* - Plot 112 at Darwin Green. The Stambourne Special is designed over three floors.
H7768212 - Haversham
3 bedroom detached house for sale
Video Tour 
3 Bedrooms
30,000 DEPOSIT CONTRIBUTION* - The Haversham - This four bedroom home townhouse has a spacious open-plan kitchen with French doors onto your garden.
H7768293 - Stambourne Special
3 bedroom end terraced house for sale
Video Tour 
3 Bedrooms
29,900 DEPOSIT CONTRIBUTION* - THE STAMBOURNE SPECIAL is designed over three floors. Two double bedrooms and the family bathroom are located on the first floor.
H7768154 - Haversham
3 bedroom detached house for sale
Video Tour 
3 Bedrooms
29,750 DEPOSIT CONTRIBUTION* - THE HAVERSHAM AT DARWIN GREEN - This three bedroom home townhouse has a spacious open-plan kitchen with French doors onto your garden.
H7768292 - Stambourne Special
3 bedroom terraced house for sale
Video Tour 
3 Bedrooms
28,750 DEPOSIT CONTRIBUTION* - THE STAMBOURNE SPECIAL is designed over three floors. Two double bedrooms and the family bathroom are located on the first floor.
H7768240 - Kimbolton
3 bedroom detached house for sale
3 Bedrooms
READY NOW! HUGE SAVINGS WITH OUR INCENTIVES - 27,500 DEPOSIT CONTRIBUTION* - FLOORING & UPGRADED KITCHEN INCLUDED - PLOT 240 -The 3 bedroom Kimbolton features an large open-plan kitchen with dining ...
H7768259 - Kimbolton
3 bedroom detached house for sale
3 Bedrooms
READY NOW! HUGE SAVINGS WITH OUR INCENTIVES. On your ground floor you`ll also find a spacious lounge, WC and a storage cupboard.
H77705 - Avenue Apartments
3 bedroom apartment for sale
3 Bedrooms
25,150 DEPOSIT BOOST* - BLINDS PACKAGE - PARKSIDE SETTING - FIRST FLOOR APARTMENT - AVENUE APARTMENTS PLOT 5 - Discover this first floor 3 double bedroom apartment.
H7767219 - The Courtyard
3 bedroom apartment for sale
Video Tour 
3 Bedrooms
20,000 DEPOSIT BOOST - UPGRADED KITCHEN - FLOORING INCLUDED - PRIVATE OUTDOOR TERRACES TOTALLING 760 SQ.6 MILES FROM CENTRAL CAMBRIDGE.
H77701 - Avenue Apartments
3 bedroom apartment for sale
3 Bedrooms
5% DEPOSIT BOOST WORTH 24,500* - Private terrace - Parkside setting - Avenue Apartments Plot 1 - Discover this ground floor 3 double bedroom apartment.
H77707 - Avenue Apartments
3 bedroom apartment for sale
3 Bedrooms
BRAND NEW APARTMENT - 22,850 DEPOSIT CONTRIBUTION* - FIRST FLOOR - 3 DOUBLE BEDROOMS - 999 YEAR LEASE - ACCESSIBLE LIFT - AVENUE APARTMENT 7 - Featuring an open-plan kitchen diner & lounge area that ...
H77703 - Avenue Apartments
3 bedroom apartment for sale
3 Bedrooms
BRAND NEW APARTMENT - 22,500 Deposit Boost* - Blinds package - Ground floor - 3 double bedrooms - 999 year lease - Parkside setting - Avenue Apartment 3 - Featuring an open-plan kitchen diner & area ...
H777016 - Avenue Apartments
2 bedroom apartment for sale
2 Bedrooms
19,250 DEPOSIT BOOST* - PARKSIDE SETTING - 999 YEAR LEASE - AVENUE APARTMENTS PLOT 16 - Discover this second floor 2 double bedroom apartment. The main bedroom has an en-suite and juliet balcony.
H77706 - Avenue Apartments
2 bedroom apartment for sale
2 Bedrooms
BRAND NEW APARTMENT. There are two double bedrooms, the main with en-suite. While a separate bathroom completes the home.
H77702 - Avenue Apartments
2 bedroom apartment for sale
2 Bedrooms
BRAND NEW APARTMENT - 18,000 DEPOSIT CONTRIBUTION* - 999 YEAR LEASE - GROUND FLOOR - OPEN-PLAN KITCHEN/DINER/LOUNGE WITH TERRACE - AVENUE APARTMENT 2 - Featuring an open-plan kitchen diner & lounge a ...

Property Information

Price Details:
£629,995
Bedrooms:
4 bedrooms
Development:
Brochure:

Development Location

Individual savings and affordability may vary.

YOUR HOME MAY BE REPOSSESSED IF YOU DO NOT KEEP UP PAYMENTS ON YOUR MORTGAGE.

If you choose to use Tembo for mortgage advice, we may earn a commission from them for the introduction. This does not negatively impact the amount you'll pay for their service.

Tembo Money Limited (12631312) is a company registered in England and Wales with its registered office at 18 Crucifix Lane, London, SE1 3JW. Tembo is authorised and regulated by the Financial Conduct Authority under the registration number 952652.
© 2026 WhatHouse?
Click here to see your activities