LoginSubscribe to Alerts

3 bedroom end terraced house in Houghton Regis

Do you want to get more information from Barratt Homes
Call: 03333558500

Barratt Homes At Linmere by Barratt Homes

Moresby
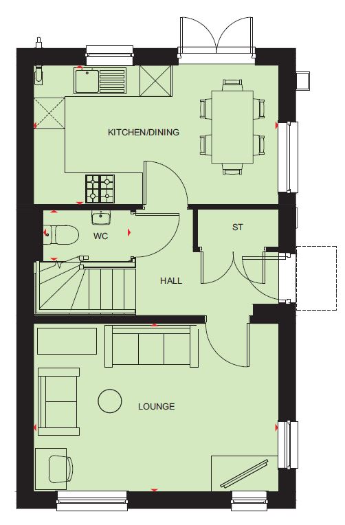
21,125 DEPOSIT BOOST | SOUTH FACING GARDEN | FLOORING INCLUDED THROUGHOUT The Moresby is a spacious 3-bedroom home with ample storage. Enjoy entertaining in your open-plan kitchen and dining room with French doors to the garden. Relax in your separate lounge after a long day. Upstairs you`ll find 2-double bedrooms, including an en suite to the main bedroom, a single bedroom that could be used as a study, and a main bathroom.

Property Features

  • £21,125 Deposit Boost
  • Flooring included throughout
  • Upgraded modern fitted kitchen
  • Includes dishwasher appliance
  • South facing garden
  • Dual-aspect lounge
  • Social kitchen & dining room
  • En suite to your main bedroom
  • Photovoltaic panels installed
  • Electric car charging point

Quick mortgage affordability calculator

Tembo is an award-winning mortgage broker
Voted the UK’s Best Mortgage Broker by its customers in 2022 and 2023, Tembo is helping buyers discover their true mortgage affordability.

Tembo boosts its average customer’s maximum budget by £82,000. They do this by not only checking your affordability for over 100 lenders and standard products, but also for a range of budget-boosting specialist schemes.

Schemes include:
Ways for family to support using income, property or savings 
Private part buy part rent & government shared ownership 
Professional mortgages and 5.5x borrowing schemes
Sharia compliant home purchase plans
& so much more

Discover what your budget could be using our simple calculator, and afterwards access personalised interest rates through their full fact-find.

Your home may be repossessed if you do not keep up payments on your mortgage.

Property Floorplans

Click to expand floorplan image.

Property Tour



Contact Barratt Homes

Want to know more about Barratt Homes at Linmere from Barratt Homes
Barratt Homes will use this information to contact you.
ThankYou

Other properties on this development

List Sort: 
H8711170 - Haversham
4 bedroom end terraced house for sale
Video Tour 
4 Bedrooms
Show Home open to view | Flexible 3-storey home | Two parking spaces The Haversham is a flexible 4-bedroom home set across 3 floors. The bedroom 4 could be used as an office or playroom.
H8711168 - Haversham
4 bedroom end terraced house for sale
Video Tour 
4 Bedrooms
HOME TO SELL? ASK US ABOUT PART EXCHANGE | ELECTRIC CAR CHARGING POINT | MODERN AND FLEXIBLE LIVING The Haversham is a flexible 4-bedroom home set across 3 floors.
H8711166 - Moresby
3 bedroom detached house for sale
Video Tour 
3 Bedrooms
UPGRADED MODERN KITCHEN INCLUDED LOCATED ALONG TREE-LINED HEDGES | DRIVEWAY | PV SOLAR PANELS The Moresby is a spacious 3-bedroom home with ample storage.
H8711177 - Norbury
3 bedroom terraced house for sale
Video Tour 
3 Bedrooms
Upgraded kitchen with dishwasher included A generously laid out 3-storey, 3-bedroom home, with an expansive main bedroom which covers the entire top floor with a dressing area and ensuite.
H8711169 - Norbury
3 bedroom semi detached house for sale
Video Tour 
3 Bedrooms
ELECTRIC CAR CHARGING POINT | PV SOLAR PANELS INSTALLED | IMPRESSIVE MAIN BEDROOM A generously laid out 3-storey, 3-bedroom home, with an expansive main bedroom which covers the entire top floor ...
H871181 - Alverton
2 bedroom semi detached house for sale
2 Bedrooms
Electric car charging point | Carport | Modern fitted kitchen A first floor coach house style apartment will appeal to first time buyers and those looking for a low-maintenance home.

Property Information

Price Details:
£422,500
Bedrooms:
3 bedrooms
Brochure:

Development Location

Individual savings and affordability may vary.

YOUR HOME MAY BE REPOSSESSED IF YOU DO NOT KEEP UP PAYMENTS ON YOUR MORTGAGE.

If you choose to use Tembo for mortgage advice, we may earn a commission from them for the introduction. This does not negatively impact the amount you'll pay for their service.

Tembo Money Limited (12631312) is a company registered in England and Wales with its registered office at 18 Crucifix Lane, London, SE1 3JW. Tembo is authorised and regulated by the Financial Conduct Authority under the registration number 952652.
© 2026 WhatHouse?
Click here to see your activities