LoginSubscribe to Alerts

4 bedroom detached house in

Do you want to get more information from Barratt Homes
Call: 03333558460
Development Brochure
Request Details
Video Tour Available 

Barratt @ Bangour Village by Barratt Homes

Fenton
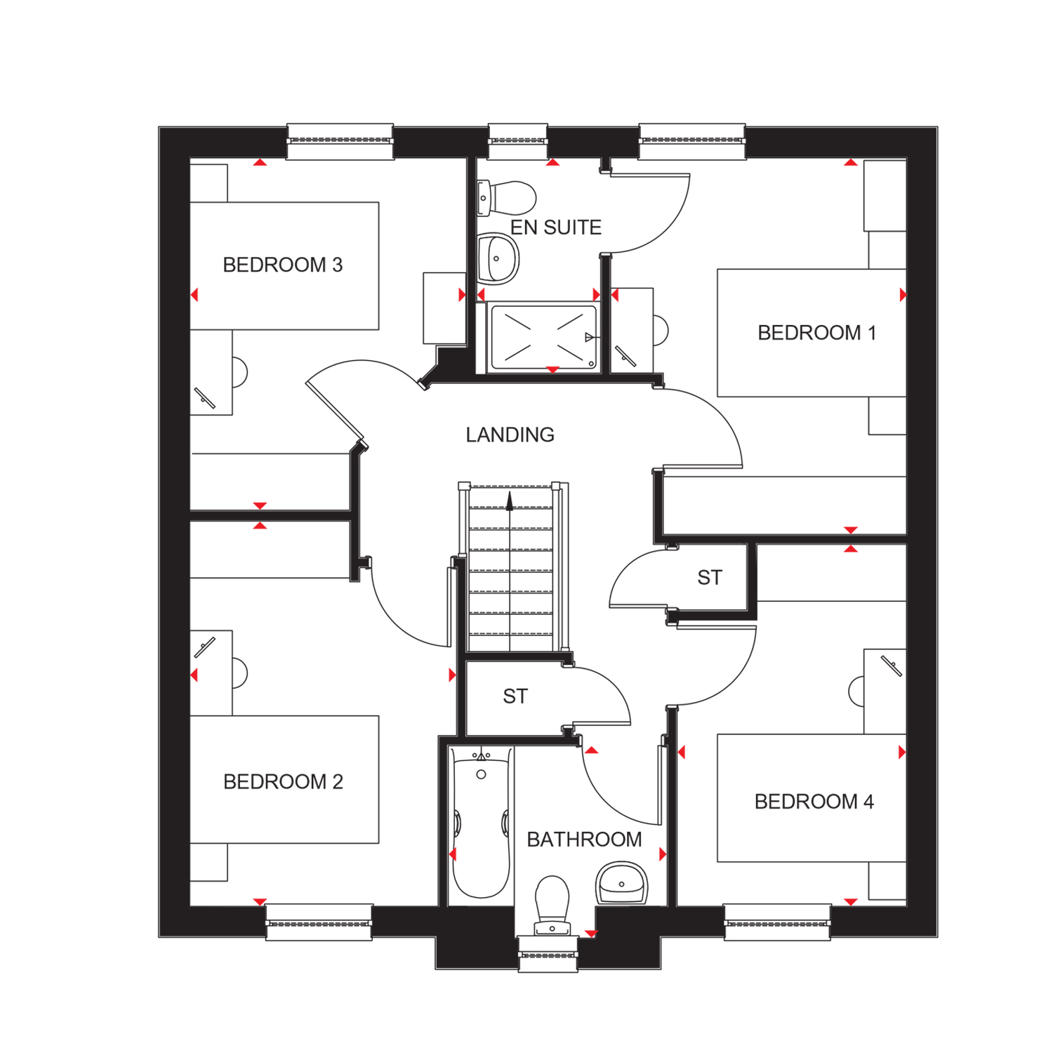
The kitchen in the Fenton is the perfect space for entertaining with its open-plan design, including a dining area and patio door out to the back garden. The ground floor also offers a separate lounge, utility room and WC. Upstairs, you will find all four double bedrooms, with the main bedroom offering an en suite, and a family bathroom. This home is complete with a single integral garage. Bangour Village is located just outside of Livingston. Local amenities and travel connections are close by as well as plenty of outdoor space surrounding the development. On completion of the wider development, cycle paths and walkways will complete this new neighbourhood.

Property Features

  • Patio doors to south facing garden
  • 4 double bedrooms
  • Downstairs WC
  • Utility room
  • En suite to main bedroom
  • Family bathroom
  • Detached home
  • Single integral garage
  • Open-plan kitchen/dining

Quick mortgage affordability calculator

Tembo is an award-winning mortgage broker
Voted the UK’s Best Mortgage Broker by its customers in 2022 and 2023, Tembo is helping buyers discover their true mortgage affordability.

Tembo boosts its average customer’s maximum budget by £82,000. They do this by not only checking your affordability for over 100 lenders and standard products, but also for a range of budget-boosting specialist schemes.

Schemes include:
Ways for family to support using income, property or savings 
Private part buy part rent & government shared ownership 
Professional mortgages and 5.5x borrowing schemes
Sharia compliant home purchase plans
& so much more

Discover what your budget could be using our simple calculator, and afterwards access personalised interest rates through their full fact-find.

Your home may be repossessed if you do not keep up payments on your mortgage.

Property Floorplans

Click to expand floorplan image.

Property Tour



Contact Barratt Homes

Want to know more about Barratt @ Bangour Village from Barratt Homes
Barratt Homes will use this information to contact you.
ThankYou

Other properties on this development

List Sort: 
H932686 - Balloch
4 bedroom detached house for sale
Video Tour 
4 Bedrooms
The Balloch is a flexible four bedroom home offering open-plan kitchen/dining/family area featuring French doors to the back garden. This home is complete with a detached single garage.
H9326138 - Campbell
4 bedroom detached house for sale
Video Tour 
4 Bedrooms
Downstairs, you will be welcomed through a hallway featuring a WC and storage cupboard. Four double bedrooms are upstairs, along with an en suite in the main bedroom and a family bathroom.
H9326135 - Stenton
4 bedroom detached house for sale
Video Tour 
4 Bedrooms
The Stenton is a detached home with a driveway. An open-plan kitchen is the perfect space for entertaining as its design includes a dining area and French doors to the back garden.
H932663 - Stobo
4 bedroom detached house for sale
Video Tour 
4 Bedrooms
Downstairs in The Stobo, you will find an open-plan kitchen/dining/family area with French doors to the garden and adjoining utility room. A single integral garage completes this home.
H9326133 - Craigend
3 bedroom semi detached house for sale
Video Tour 
3 Bedrooms
As you enter the Craigend, you will find a bright and airy lounge at the front of the home and an open-plan kitchen/dining/family area at the back with a patio door to the garden.
H9326218 - Craigend
3 bedroom semi detached house for sale
Video Tour 
3 Bedrooms
As you enter the Craigend, you will find a bright and airy lounge at the front of the home and an open-plan kitchen/dining/family area at the back with a patio door to the garden.
H9326212 - Abergeldie
3 bedroom semi detached house for sale
Video Tour 
3 Bedrooms
You will find a kitchen/dining area with access to the garden, a spacious lounge, WC and two useful storage cupboards in the hallway on the ground floor of the Abergeldie.
H9326217 - Cupar
3 bedroom semi detached house for sale
Video Tour 
3 Bedrooms
The Cupar is an ideal home for first-time buyers. The front-facing lounge is the perfect space for those cosy evenings on the sofa. Bangour Village is located just outside of Livingston.
H9326215 - Cupar
3 bedroom semi detached house for sale
Video Tour 
3 Bedrooms
The Cupar is an ideal home for first-time buyers. The front-facing lounge is the perfect space for those cosy evenings on the sofa. Bangour Village is located just outside of Livingston.

Property Information

Price Details:
£364,995
Bedrooms:
4 bedrooms
Brochure:

Development Location

Individual savings and affordability may vary.

YOUR HOME MAY BE REPOSSESSED IF YOU DO NOT KEEP UP PAYMENTS ON YOUR MORTGAGE.

If you choose to use Tembo for mortgage advice, we may earn a commission from them for the introduction. This does not negatively impact the amount you'll pay for their service.

Tembo Money Limited (12631312) is a company registered in England and Wales with its registered office at 18 Crucifix Lane, London, SE1 3JW. Tembo is authorised and regulated by the Financial Conduct Authority under the registration number 952652.
© 2026 WhatHouse?
Click here to see your activities