LoginSubscribe to Alerts

3 bedroom home in Crowthorne

Do you want to get more information from Hill

Elmstead by Hill

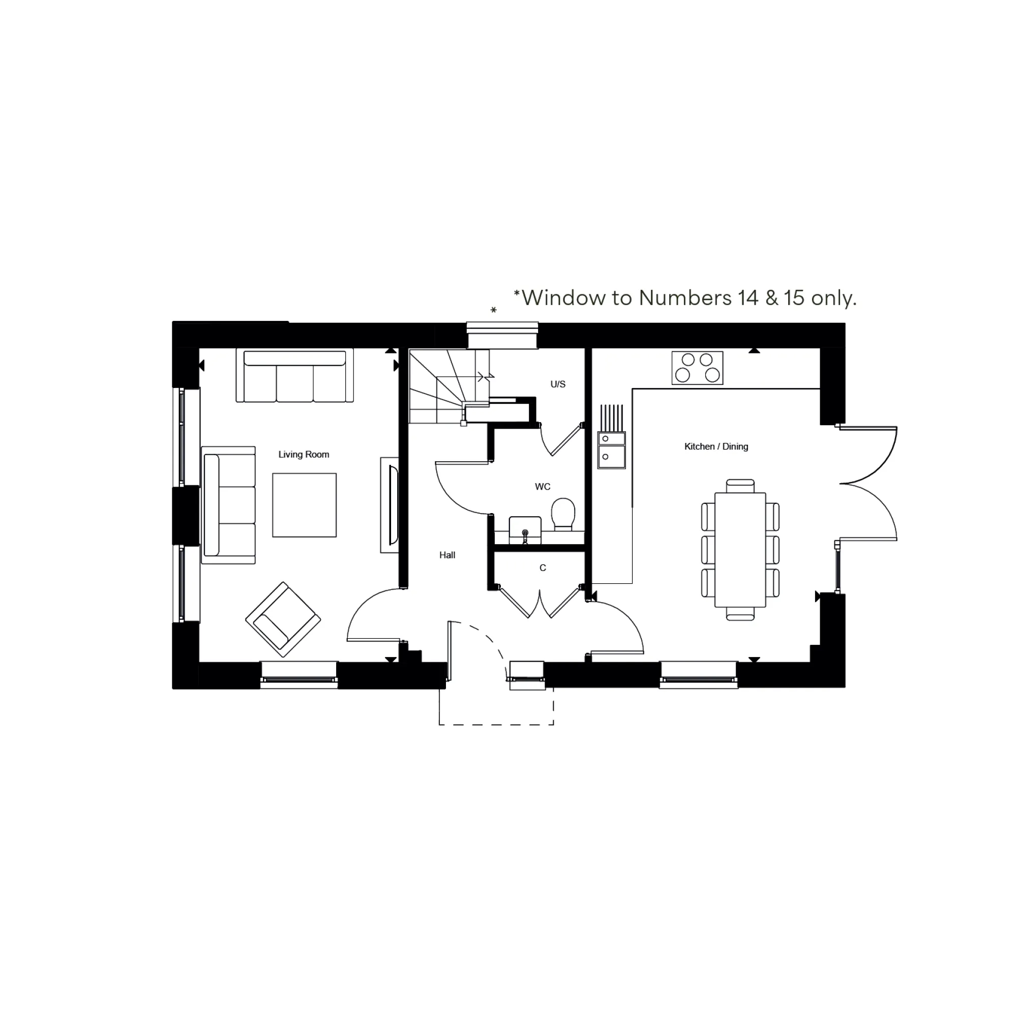
Elmstead The Kingsley, Number 13

The Kingsley, Number 13 is a spacious three-bedroom detached home spread across three floors, offering versatile living with a dual-aspect living room, open-plan kitchen/dining area, and a second-floor study. Featuring a West-facing garden, en-suite principal bedroom, integrated appliances, and driveway parking with EV charging, it perfectly combines modern comfort, style, and practicality in a brand new Wokingham development.

Property Highlights:

  • This home is thoughtfully spread across three floors, providing generous living space, clearly defined zones for relaxing, entertaining, and a sense of privacy and separation throughout the property.
  • Open-plan kitchen / dining / living area with underfloor heating and patio doors opening to the West-Facing garden for seamless indoor and outdoor living and the perfect entertaining space.
  • Enjoy a fully fitted kitchen with integrated appliances, thoughtfully designed for cooking, entertaining, and effortless day-to-day convenience.
  • The principal bedroom features a stylish en-suite and fitted wardrobe, offering a tranquil and private space to unwind at the end of the day.
  • Effortless connectivity with TV, BT, and data points in selected rooms, alongside Openreach and Hyperoptic fibre available to every home, allowing you to select your preferred high-speed broadband for work, streaming, and everyday living.

A Lifestyle at Elmstead

Nestled within a peaceful forest setting along Nine Mile Ride in Wokingham, Elmstead is a place where village charm meets modern convenience. Here, contemporary homes are surrounded by scenic countryside and woodland, creating a welcoming community that balances tranquil living with everyday practicality. With local shops, cafes and green spaces nearby, Elmstead offers a lifestyle where everything you need is within easy reach.

  • Wokingham Town Centre, a 10 minute drive away, offering boutique shopping, vibrant restaurants and the charm of a historic market town.
  • Local pubs and eateries nearby, perfect for relaxed dining, weekend lunches and catching up with friends.
  • Community halls and local venues host clubs, fitness classes and seasonal markets, bringing neighbours together throughout the year.
  • Surrounding woodland and green spaces provide peaceful walks, fresh air and a natural escape just moments from home.

Seamless Travel and Connections

Living at Elmstead keeps you effortlessly connected, whether commuting to work, exploring Berkshire, or heading into London for business or leisure.

  • Wokingham station offers regular rail services, with journeys to London Paddington taking around 40 minutes, alongside convenient connections to Reading, Guildford and other key destinations across the South East.
  • For those travelling by car, nearby routes including the A321 and A329(M) provide straightforward access to Reading, Bracknell and surrounding towns, while the M4 and M3 motorways connect you easily to London, the West Country and beyond.
  • Frequent flyers will appreciate the proximity to several major airports. London Heathrow Airport is around a 30-minute drive away, with London Gatwick reachable in just under an hour and London Stansted in about 1 hour30 minutes.
  • With excellent road, rail and air connections all within easy reach, Elmstead offers a well-connected location designed to make every journey simple and convenient.

Visit Your Future Home

Schedule a visit with our sales team and step inside your dream home at the brand new development Elmstead.

<

Quick mortgage affordability calculator

Tembo is an award-winning mortgage broker
Voted the UK’s Best Mortgage Broker by its customers in 2022 and 2023, Tembo is helping buyers discover their true mortgage affordability.

Tembo boosts its average customer’s maximum budget by £82,000. They do this by not only checking your affordability for over 100 lenders and standard products, but also for a range of budget-boosting specialist schemes.

Schemes include:
Ways for family to support using income, property or savings 
Private part buy part rent & government shared ownership 
Professional mortgages and 5.5x borrowing schemes
Sharia compliant home purchase plans
& so much more

Discover what your budget could be using our simple calculator, and afterwards access personalised interest rates through their full fact-find.

Your home may be repossessed if you do not keep up payments on your mortgage.

Property Floorplans

Click to expand floorplan image.

Other properties on this development

List Sort: 
Elmstead The Langstone, Number 26
4 bedroom home for sale
4 Bedrooms
The Langstone, Number 26 Elmstead, Wokingham
Elmstead The Kingsley, Number 11
3 bedroom home for sale
3 Bedrooms
The Kingsley, Number 11 Elmstead, Wokingham
Elmstead The Haddington, Number 103
3 bedroom home for sale
3 Bedrooms
The Haddington, Number 103 Elmstead, Wokingham
Elmstead The Bookham, Number 4
3 bedroom home for sale
3 Bedrooms
The Bookham, Number 4 Elmstead, Wokingham
Elmstead The Bookham, Number 31
3 bedroom home for sale
3 Bedrooms
The Bookham, Number 31 Elmstead, Wokingham
Elmstead The Purbeck, Number 33
2 bedroom home for sale
2 Bedrooms
The Purbeck, Number 33 Elmstead, Wokingham

Property Information

Price Details:
£695,000
Bedrooms:
3 bedrooms
Development:

Development Location

Individual savings and affordability may vary.

YOUR HOME MAY BE REPOSSESSED IF YOU DO NOT KEEP UP PAYMENTS ON YOUR MORTGAGE.

If you choose to use Tembo for mortgage advice, we may earn a commission from them for the introduction. This does not negatively impact the amount you'll pay for their service.

Tembo Money Limited (12631312) is a company registered in England and Wales with its registered office at 18 Crucifix Lane, London, SE1 3JW. Tembo is authorised and regulated by the Financial Conduct Authority under the registration number 952652.
© 2026 WhatHouse?
Click here to see your activities