LoginSubscribe to Alerts

3 bedroom home in Crowthorne

Do you want to get more information from Hill

Elmstead by Hill

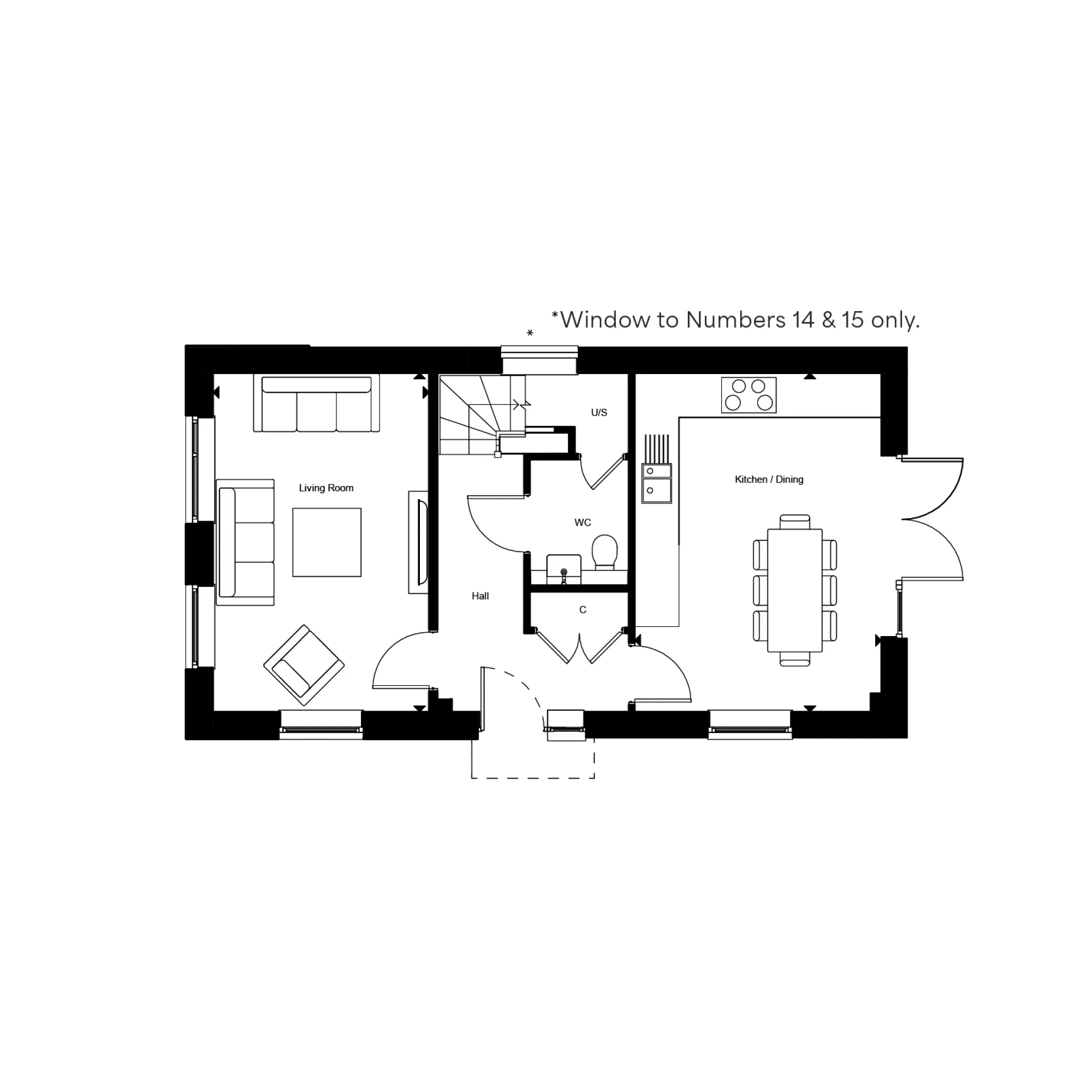
Elmstead The Kingsley, Number 11

The Kingsley, Number 11 is a spacious three-bedroom, three-storey semi-detached home at Elmstead, featuring an open-plan kitchen and dining area with West-facing garden access, a dual-aspect living room, and a second-floor study. With energy-efficient features, integrated appliances, and driveway parking with EV charging, it offers a modern, connected lifestyle in a peaceful Wokingham setting.

Property Highlights:

  • This home spans three floors, offering spacious living with well-defined areas for relaxing, entertaining, and private, separate zones throughout.
  • Open-plan kitchen / dining / living area with underfloor heating and patio doors opening to the West-Facing garden for seamlessly indoor and outdoor living and the perfect entertaining space.
  • Three spacious double bedrooms, the principal bedroom features a stylish en-suite and dressing area, offering a tranquil and private space to unwind at the end of the day.
  • Enjoy an energy-efficient lifestyle with an air source heat pump and hot water storage tank, combining sustainable living with modern comfort and convenience.

A Lifestyle at Elmstead

Nestled within a peaceful forest setting along Nine Mile Ride in Wokingham, Elmstead is a place where village charm meets modern convenience. Here, contemporary homes are surrounded by scenic countryside and woodland, creating a welcoming community that balances tranquil living with everyday practicality. With local shops, cafes and green spaces nearby, Elmstead offers a lifestyle where everything you need is within easy reach.

  • Wokingham Town Centre, a 10 minute drive away, offering boutique shopping, vibrant restaurants and the charm of a historic market town.
  • Local pubs and eateries nearby, perfect for relaxed dining, weekend lunches and catching up with friends.
  • Community halls and local venues host clubs, fitness classes and seasonal markets, bringing neighbours together throughout the year.
  • Surrounding woodland and green spaces provide peaceful walks, fresh air and a natural escape just moments from home.

Seamless Travel and Connections

Living at Elmstead keeps you effortlessly connected, whether commuting to work, exploring Berkshire, or heading into London for business or leisure.

  • Wokingham station offers regular rail services, with journeys to London Paddington taking around 40 minutes, alongside convenient connections to Reading, Guildford and other key destinations across the South East.
  • For those travelling by car, nearby routes including the A321 and A329(M) provide straightforward access to Reading, Bracknell and surrounding towns, while the M4 and M3 motorways connect you easily to London, the West Country and beyond.
  • Frequent flyers will appreciate the proximity to several major airports. London Heathrow Airport is around a 30-minute drive away, with London Gatwick reachable in just under an hour and London Stansted in about 1 hour30 minutes.
  • With excellent road, rail and air connections all within easy reach, Elmstead offers a well-connected location designed to make every journey simple and convenient.

Visit Your Future Home

Schedule a visit with our sales team and step inside your dream home at the brand new development Elmstead.

Sales Suite: 1 Bream Way, Wokingham, RG45 6WP
Opening Times: Open daily 10:00 - 17:30

Read More

Quick mortgage affordability calculator

Tembo is an award-winning mortgage broker
Voted the UK’s Best Mortgage Broker by its customers in 2022 and 2023, Tembo is helping buyers discover their true mortgage affordability.

Tembo boosts its average customer’s maximum budget by £82,000. They do this by not only checking your affordability for over 100 lenders and standard products, but also for a range of budget-boosting specialist schemes.

Schemes include:
Ways for family to support using income, property or savings 
Private part buy part rent & government shared ownership 
Professional mortgages and 5.5x borrowing schemes
Sharia compliant home purchase plans
& so much more

Discover what your budget could be using our simple calculator, and afterwards access personalised interest rates through their full fact-find.

Your home may be repossessed if you do not keep up payments on your mortgage.

Property Floorplans

Click to expand floorplan image.

Other properties on this development

List Sort: 
Elmstead The Langstone, Number 26
4 bedroom home for sale
4 Bedrooms
The Langstone, Number 26 Elmstead, Wokingham
Elmstead The Kingsley, Number 13
3 bedroom home for sale
3 Bedrooms
The Kingsley, Number 13 Elmstead, Wokingham
Elmstead The Hartwell, Number 23
3 bedroom home for sale
3 Bedrooms
The Hartwell, Number 23 Elmstead, Wokingham
Elmstead The Haddington, Number 103
3 bedroom home for sale
3 Bedrooms
The Haddington, Number 103 Elmstead, Wokingham
Elmstead The Bookham, Number 4
3 bedroom home for sale
3 Bedrooms
The Bookham, Number 4 Elmstead, Wokingham
Elmstead The Bookham, Number 31
3 bedroom home for sale
3 Bedrooms
The Bookham, Number 31 Elmstead, Wokingham
Elmstead The Purbeck, Number 33
2 bedroom home for sale
2 Bedrooms
The Purbeck, Number 33 Elmstead, Wokingham

Property Information

Price Details:
£680,000
Bedrooms:
3 bedrooms
Development:

Development Location

Individual savings and affordability may vary.

YOUR HOME MAY BE REPOSSESSED IF YOU DO NOT KEEP UP PAYMENTS ON YOUR MORTGAGE.

If you choose to use Tembo for mortgage advice, we may earn a commission from them for the introduction. This does not negatively impact the amount you'll pay for their service.

Tembo Money Limited (12631312) is a company registered in England and Wales with its registered office at 18 Crucifix Lane, London, SE1 3JW. Tembo is authorised and regulated by the Financial Conduct Authority under the registration number 952652.
© 2026 WhatHouse?
Click here to see your activities