LoginSubscribe to Alerts

4 bedroom home in Huddersfield

Do you want to get more information from Harron Homes

Victoria Heights by Harron Homes

Victoria Heights   Plot 126   Harron Homes

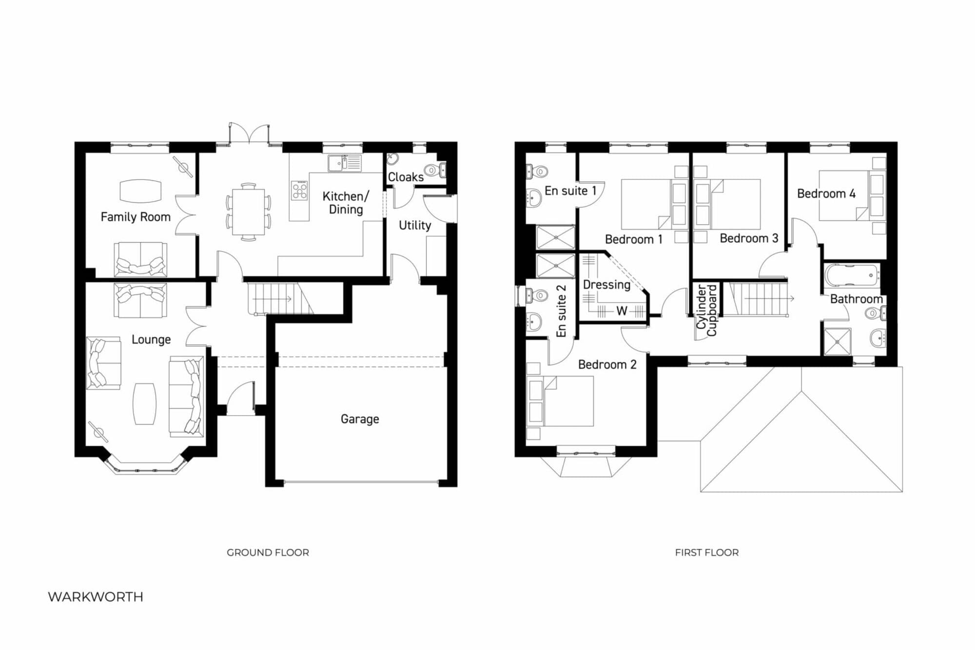
The beautiful Warkworth is a spacious four-bedroom, detached family home with an integral double garage, ideal for families that are looking for clever design and luxury features.

  • On entering this substantial property, you will find classic double doors that lead into a luxurious lounge with a stunning feature bay window. The hub of the home is the high specification kitchen with a dining area, a true focal point that benefits from stylish French doors opening out onto the pretty garden, perfect for entertaining on warm summer evenings. Catering for busy family life, there is a utility room with access to the garden and a spacious double garage. Double doors from the dining area take you into a homely family room which is an ideal place for children to play or can be used as a snug for the whole family to enjoy.

    The first floor offers an abundance of space and versatility with four stunning double bedrooms. The magnificent master bedroom has a stylish en-suite and a separate dressing area, a touch of glamour for the modern busy lifestyle. The second bedroom also features an en-suite shower room, offering guests a luxurious stay. The modern family bathroom is situated near bedrooms three and four and has a bath and a separate shower.

    Read Less

Property Features

  • Master suite boasting impressive dressing area with Hammonds wardrobe and private ensuite
  • Bedroom 2 ideal for teenagers or guests with additional ensuite
  • Contemporary family bathroom with separate bath and shower plus your choice of tiling
  • Separate utility with access to WC, rear garden and integral garage
  • Double integral garage set on a block paved driveway
  • The Harron specification includes leading brands with the latest Bosch kitchen appliances, contemporary Symphony kitchens, Franke kitchen sinks, Hansgrohe taps, Ideal Standard sanitaryware and luxurious Hammonds wardrobes. Plus the option to upgrade to state-of-the-art Neff hob and integrated ovens
  • Elegant four-bedroom family home with space for everyone
  • Large and light open plan kitchen/dining area with French doors to the garden a perfect place for cooking and family meals
  • Spacious lounge with bay window and enough space for the family
  • Family room off dining area is ideal as a lounge for older children or entertaining guests

Quick mortgage affordability calculator

Tembo is an award-winning mortgage broker
Voted the UK’s Best Mortgage Broker by its customers in 2022 and 2023, Tembo is helping buyers discover their true mortgage affordability.

Tembo boosts its average customer’s maximum budget by £82,000. They do this by not only checking your affordability for over 100 lenders and standard products, but also for a range of budget-boosting specialist schemes.

Schemes include:
Ways for family to support using income, property or savings 
Private part buy part rent & government shared ownership 
Professional mortgages and 5.5x borrowing schemes
Sharia compliant home purchase plans
& so much more

Discover what your budget could be using our simple calculator, and afterwards access personalised interest rates through their full fact-find.

Your home may be repossessed if you do not keep up payments on your mortgage.

Property Floorplans

Click to expand floorplan image.

Other properties on this development

List Sort: 
Victoria Heights   Plot 133   Harron Homes
5 bedroom home for sale
5 Bedrooms
NEW RELEASE
Victoria Heights   Plot 136   Harron Homes
5 bedroom home for sale
5 Bedrooms
SAVE 5,000 and PART EXCHANGE AVAILABLE!
Victoria Heights   Plot 123   Harron Homes
5 bedroom home for sale
5 Bedrooms
The striking appearance of the Hedingham makes it a truly distinguished and desirable home
Victoria Heights   Plot 122   Harron Homes
4 bedroom home for sale
4 Bedrooms
PART EXCHANGE AVAILABLE
Victoria Heights   Plot 141   Harron Homes
4 bedroom home for sale
4 Bedrooms
5% DEPOSIT CONTRIBUTION WORTH 25,750
Victoria Heights   Plot 125   Harron Homes
4 bedroom home for sale
4 Bedrooms
SAVE 7,500

Property Information

Price Details:
£555,000
Bedrooms:
4 bedrooms
Development:

Development Location

Individual savings and affordability may vary.

YOUR HOME MAY BE REPOSSESSED IF YOU DO NOT KEEP UP PAYMENTS ON YOUR MORTGAGE.

If you choose to use Tembo for mortgage advice, we may earn a commission from them for the introduction. This does not negatively impact the amount you'll pay for their service.

Tembo Money Limited (12631312) is a company registered in England and Wales with its registered office at 18 Crucifix Lane, London, SE1 3JW. Tembo is authorised and regulated by the Financial Conduct Authority under the registration number 952652.
© 2026 WhatHouse?
Click here to see your activities