LoginSubscribe to Alerts

5 bedroom home in Huddersfield

Do you want to get more information from Harron Homes

Victoria Heights by Harron Homes

Victoria Heights   Plot 133   Harron Homes

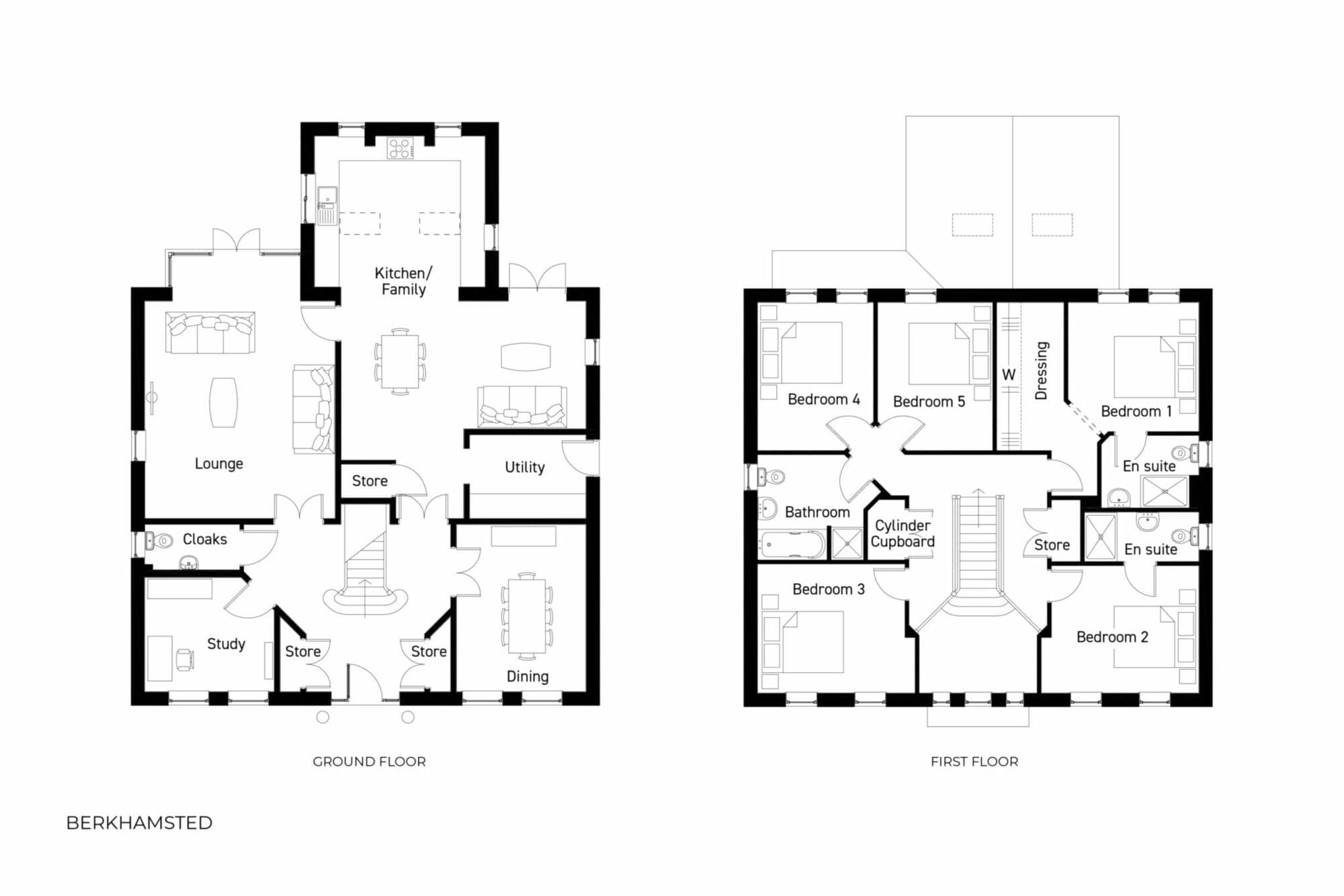
The Berkhamsted is a grand regency style home with elegant tall windows and feature front door offering spacious rooms with high end finishes, perfect for a large family. The Berkhamsted also has the added benefit of a detached double garage.

  • The impressive hallway leads to the many reception rooms and features a grand staircase. The study and the dining room are located at the front of the Berkhamsted, and are both light and airy rooms benefiting from the Georgian inspired windows. The stunning lounge is found towards the rear of the property and features double doors that open out onto the garden. The kitchen is the masterpiece of this home; this spacious room has a high specification kitchen overlooking the garden, while the family area has ample space for a dining table and a sofa, with doors leading to the garden. An additional store cupboard and large utility room are also accessed from the kitchen.

    Upstairs the galleried landing leads to five double sized bedrooms. The master bedroom offers luxury accommodation with its own ensuite and separate dressing area. Bedroom two also has an ensuite making it perfect as a guest suite, whilst the large family bathroom has both a bath and shower suited to a large family.

    Read Less

Property Features

  • Contemporary 5 bedroom regency style home with detached double garage
  • Enhanced specification as standard
  • Large open aspect kitchen with dining and family area including French doors to rear garden
  • Gallery landing with showstopper glass fronted Juliet balcony
  • Choice of stylish Hammonds wardrobes to master suite plus ensuite
  • Spacious lounge with French doors to rear garden
  • Downstairs study ideal for home working or flexible use
  • Block paved driveway with lawned front and rear garden
  • NHBC 10 year warranty giving you peace of mind
  • The Harron specification includes leading brands with the latest Bosch kitchen appliances, contemporary Symphony kitchens, Franke kitchen sinks, Hansgrohe taps, Ideal Standard sanitaryware and luxurious Hammonds wardrobes. Plus the option to upgrade to state-of-the-art Neff hob and integrated ovens

Quick mortgage affordability calculator

Tembo is an award-winning mortgage broker
Voted the UK’s Best Mortgage Broker by its customers in 2022 and 2023, Tembo is helping buyers discover their true mortgage affordability.

Tembo boosts its average customer’s maximum budget by £82,000. They do this by not only checking your affordability for over 100 lenders and standard products, but also for a range of budget-boosting specialist schemes.

Schemes include:
Ways for family to support using income, property or savings 
Private part buy part rent & government shared ownership 
Professional mortgages and 5.5x borrowing schemes
Sharia compliant home purchase plans
& so much more

Discover what your budget could be using our simple calculator, and afterwards access personalised interest rates through their full fact-find.

Your home may be repossessed if you do not keep up payments on your mortgage.

Property Floorplans

Click to expand floorplan image.

Other properties on this development

List Sort: 
Victoria Heights   Plot 136   Harron Homes
5 bedroom home for sale
5 Bedrooms
SAVE 5,000 and PART EXCHANGE AVAILABLE!
Victoria Heights   Plot 123   Harron Homes
5 bedroom home for sale
5 Bedrooms
The striking appearance of the Hedingham makes it a truly distinguished and desirable home
Victoria Heights   Plot 126   Harron Homes
4 bedroom home for sale
4 Bedrooms
NEW RELEASE
Victoria Heights   Plot 122   Harron Homes
4 bedroom home for sale
4 Bedrooms
PART EXCHANGE AVAILABLE
Victoria Heights   Plot 127   Harron Homes
4 bedroom home for sale
4 Bedrooms
NEW RELEASE
Victoria Heights   Plot 125   Harron Homes
4 bedroom home for sale
4 Bedrooms
SAVE 7,500

Property Information

Price Details:
£780,000
Bedrooms:
5 bedrooms
Development:

Development Location

Individual savings and affordability may vary.

YOUR HOME MAY BE REPOSSESSED IF YOU DO NOT KEEP UP PAYMENTS ON YOUR MORTGAGE.

If you choose to use Tembo for mortgage advice, we may earn a commission from them for the introduction. This does not negatively impact the amount you'll pay for their service.

Tembo Money Limited (12631312) is a company registered in England and Wales with its registered office at 18 Crucifix Lane, London, SE1 3JW. Tembo is authorised and regulated by the Financial Conduct Authority under the registration number 952652.
© 2026 WhatHouse?
Click here to see your activities