LoginSubscribe to Alerts

4 bedroom home in New Rossington

Do you want to get more information from Harron Homes

Simpson Park by Harron Homes

Simpson Park   Plot 155   Harron Homes

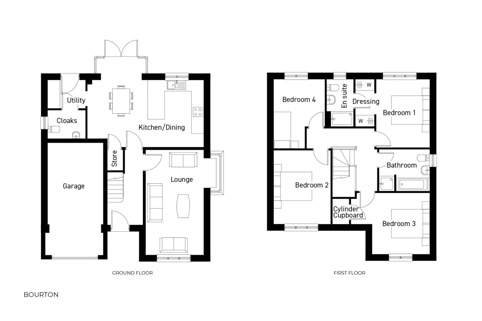
This charming, four bedroom detached home with integral garage is perfect for modern family living with space, style and quality throughout.

  • The large, welcoming hallway leads to the light and airy, luxuriously appointed living room, while at the heart of the property is an impressive, high specification kitchen with dining area, ideal for sitting down together to share a family meal. This spacious open plan room features stylish French doors which open out onto the garden, creating the perfect space to enjoy the warmer summer months. The property also includes an integral garage.

    The upstairs landing leads to the spacious master bedroom, offering true luxury with a dressing area and stylish en-suite shower room, and a further three double bedrooms. A modern yet elegant family bathroom completes the first floor of this beautiful home.

    Read Less

Property Features

  • 4 bedroom detached, spacious family home
  • Open plan kitchen and dining area with French doors to the garden, a perfect space for family dinners
  • Extra storage, utility room and guest WC
  • Master bedroom complete with your choice of Hammonds wardrobes with private en-suite and dressing area
  • A further three double bedrooms and spacious, stylish family bathroom
  • Block paved driveway leading to integral garage
  • NHBC 10 year warranty giving you peace of mind
  • The Harron specification includes leading brands with the latest Bosch kitchen appliances, contemporary Symphony kitchens, Franke kitchen sinks, Hansgrohe taps, Ideal Standard sanitaryware and luxurious Hammonds wardrobes. Plus the option to upgrade to state-of-the-art Neff hob and integrated ovens

Quick mortgage affordability calculator

Tembo is an award-winning mortgage broker
Voted the UK’s Best Mortgage Broker by its customers in 2022 and 2023, Tembo is helping buyers discover their true mortgage affordability.

Tembo boosts its average customer’s maximum budget by £82,000. They do this by not only checking your affordability for over 100 lenders and standard products, but also for a range of budget-boosting specialist schemes.

Schemes include:
Ways for family to support using income, property or savings 
Private part buy part rent & government shared ownership 
Professional mortgages and 5.5x borrowing schemes
Sharia compliant home purchase plans
& so much more

Discover what your budget could be using our simple calculator, and afterwards access personalised interest rates through their full fact-find.

Your home may be repossessed if you do not keep up payments on your mortgage.

Property Floorplans

Click to expand floorplan image.

Other properties on this development

List Sort: 
Simpson Park   Plot 161   Harron Homes
5 bedroom home for sale
5 Bedrooms
The grand, thoughtfully designed five bedroom Banbury comes with integral double garage and block paved driveway is truly spacious and offers everything you could wish for in a large family home
Simpson Park   Plot 148   Harron Homes
4 bedroom home for sale
4 Bedrooms
The Shelford will be adored by families, a spacious, four bedroom detached home with integral garage and classic design features
Simpson Park   Plot 153   Harron Homes
4 bedroom home for sale
4 Bedrooms
STAMP DUTY PAID!
Simpson Park   Plot 150   Harron Homes
4 bedroom home for sale
4 Bedrooms
The stylish Netherton is a four bedroom detached home with integral garage offers the best in modern day living for families that want luxury and style
Simpson Park   Plot 154   Harron Homes
4 bedroom home for sale
4 Bedrooms
BRAND NEW PRICE!
Simpson Park   Plot 149   Harron Homes
3 bedroom home for sale
3 Bedrooms
3 bedroom house in New Rossington This stylish, three bedroom detached home offers the best in modern day living for families ...

Property Information

Price Details:
£359,000
Bedrooms:
4 bedrooms
Development:

Development Location

Individual savings and affordability may vary.

YOUR HOME MAY BE REPOSSESSED IF YOU DO NOT KEEP UP PAYMENTS ON YOUR MORTGAGE.

If you choose to use Tembo for mortgage advice, we may earn a commission from them for the introduction. This does not negatively impact the amount you'll pay for their service.

Tembo Money Limited (12631312) is a company registered in England and Wales with its registered office at 18 Crucifix Lane, London, SE1 3JW. Tembo is authorised and regulated by the Financial Conduct Authority under the registration number 952652.
© 2026 WhatHouse?
Click here to see your activities