LoginSubscribe to Alerts

4 bedroom home in New Rossington

Do you want to get more information from Harron Homes

Simpson Park by Harron Homes

Simpson Park   Plot 150   Harron Homes

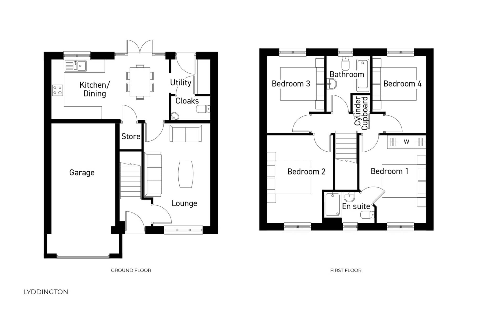
The Lyddington is a modern, four bedroom detached home, perfect for families looking for style combined with high specification design.

  • To the front of the property is a bright and spacious lounge with stunning feature bay window that fills the room with light, the ideal space to relax and unwind after a long day. The modern kitchen has been designed to a high specification and features a beautifully appointed dining area with views to the rear garden. The dining area benefits from classic French doors opening out onto the lawn, perfect for entertaining in the warm summer months.

    Perfect for a busy family life, the utility room is accessed from the kitchen and also features a useful downstairs cloakroom and integral garage space.

    Upstairs there are four double bedrooms and a stylish family bathroom, whilst the main bedroom, benefits from the luxury of an en-suite bathroom, completing this stylish, family home.

    Read Less

Property Features

  • Open-plan kitchen dining area with French doors to the rear garden
  • Separate utility with access to the rear garden
  • 4 double bedrooms
  • En suite to master bedroom
  • Integral garage and block paved driveway with space for parking
  • Electric vehicle car charging point
  • 10 year NHBC warranty and insurance
  • The Harron specification includes leading brands with the latest Bosch kitchen appliances, contemporary Symphony kitchens, Franke kitchen sinks, Hansgrohe taps, Ideal Standard sanitaryware and luxurious Hammonds wardrobes. Plus the option to upgrade to state-of-the-art Neff hob and integrated ovens

Quick mortgage affordability calculator

Tembo is an award-winning mortgage broker
Voted the UK’s Best Mortgage Broker by its customers in 2022 and 2023, Tembo is helping buyers discover their true mortgage affordability.

Tembo boosts its average customer’s maximum budget by £82,000. They do this by not only checking your affordability for over 100 lenders and standard products, but also for a range of budget-boosting specialist schemes.

Schemes include:
Ways for family to support using income, property or savings 
Private part buy part rent & government shared ownership 
Professional mortgages and 5.5x borrowing schemes
Sharia compliant home purchase plans
& so much more

Discover what your budget could be using our simple calculator, and afterwards access personalised interest rates through their full fact-find.

Your home may be repossessed if you do not keep up payments on your mortgage.

Property Floorplans

Click to expand floorplan image.

Other properties on this development

List Sort: 
Simpson Park   Plot 161   Harron Homes
5 bedroom home for sale
5 Bedrooms
The grand, thoughtfully designed five bedroom Banbury comes with integral double garage and block paved driveway is truly spacious and offers everything you could wish for in a large family home
Simpson Park   Plot 148   Harron Homes
4 bedroom home for sale
4 Bedrooms
The Shelford will be adored by families, a spacious, four bedroom detached home with integral garage and classic design features
Simpson Park   Plot 153   Harron Homes
4 bedroom home for sale
4 Bedrooms
STAMP DUTY PAID!
Simpson Park   Plot 154   Harron Homes
4 bedroom home for sale
4 Bedrooms
BRAND NEW PRICE!
Simpson Park   Plot 149   Harron Homes
3 bedroom home for sale
3 Bedrooms
3 bedroom house in New Rossington This stylish, three bedroom detached home offers the best in modern day living for families ...

Property Information

Price Details:
£302,000
Bedrooms:
4 bedrooms
Development:

Development Location

Individual savings and affordability may vary.

YOUR HOME MAY BE REPOSSESSED IF YOU DO NOT KEEP UP PAYMENTS ON YOUR MORTGAGE.

If you choose to use Tembo for mortgage advice, we may earn a commission from them for the introduction. This does not negatively impact the amount you'll pay for their service.

Tembo Money Limited (12631312) is a company registered in England and Wales with its registered office at 18 Crucifix Lane, London, SE1 3JW. Tembo is authorised and regulated by the Financial Conduct Authority under the registration number 952652.
© 2026 WhatHouse?
Click here to see your activities