LoginSubscribe to Alerts

4 bedroom home in Hucknall

Do you want to get more information from Harron Homes

Sandlands Park 4 by Harron Homes

Sandlands Park 4   Plot 403   Harron Homes

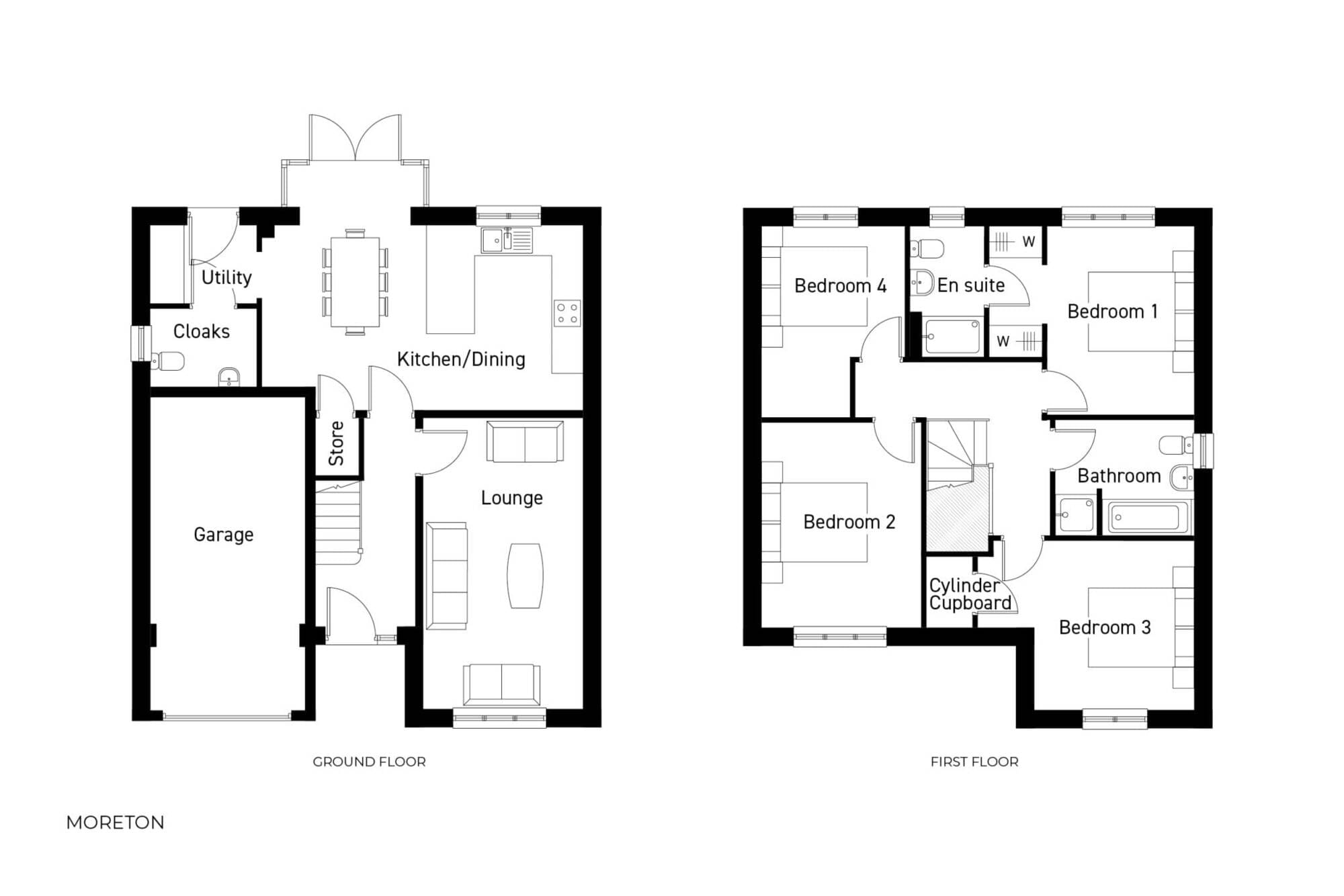
Families will adore this spacious, four bedroom detached family home with integral garage and classic design features.

  • The large welcoming hallway leads onto the luxurious living room with window that floods the room with light. There is a useful downstairs cloakroom off the utility, perfect for busy family life and at the heart of the property is an impressive, high specification kitchen with dining area, a true hub of the home that brings the family together. This stunning open plan room features stylish French doors that open out onto the garden, creating an elegant space for entertaining in the warmer summer months. There is a separate utility room and an integral garage.

    The upstairs landing leads to three, fabulous double bedrooms, a spacious single and a modern yet elegant family bathroom. The magnificent master bedroom offers true luxury with its own stylish ensuite shower room and dressing room, a real retreat after a busy day.

    Read Less

Property Features

  • Detached four-bedroom home with integral garage
  • Enjoy the heart of the home in a high-specification kitchen with French doors
  • Spacious living room for family living
  • Separate utility leads to cloakroom
  • Master bedroom has its own stylish ensuite with shower and bath and a dressing room
  • Two additional double bedrooms and a single
  • Family bathroom perfect for everyday life.
  • The Harron specification includes leading brands with the latest Bosch kitchen appliances, contemporary Symphony kitchens, Franke kitchen sinks, Hansgrohe taps, Ideal Standard sanitaryware and luxurious Hammonds wardrobes. Plus the option to upgrade to state-of-the-art Neff hob and integrated ovens

Quick mortgage affordability calculator

Tembo is an award-winning mortgage broker
Voted the UK’s Best Mortgage Broker by its customers in 2022 and 2023, Tembo is helping buyers discover their true mortgage affordability.

Tembo boosts its average customer’s maximum budget by £82,000. They do this by not only checking your affordability for over 100 lenders and standard products, but also for a range of budget-boosting specialist schemes.

Schemes include:
Ways for family to support using income, property or savings 
Private part buy part rent & government shared ownership 
Professional mortgages and 5.5x borrowing schemes
Sharia compliant home purchase plans
& so much more

Discover what your budget could be using our simple calculator, and afterwards access personalised interest rates through their full fact-find.

Your home may be repossessed if you do not keep up payments on your mortgage.

Property Floorplans

Click to expand floorplan image.

Other properties on this development

List Sort: 
Sandlands Park 4   Plot 400   Harron Homes
5 bedroom home for sale
5 Bedrooms
NEW RELEASE!
Sandlands Park 4   Plot 398   Harron Homes
5 bedroom home for sale
5 Bedrooms
NEW RELEASE!
Sandlands Park 4   Plot 397   Harron Homes
5 bedroom home for sale
5 Bedrooms
BEAUTIFUL 5 BEDROOM HOME AT A NEW PRICE, WITH PART EXCHANGE AVAILABLE!
Sandlands Park 4   Plot 401   Harron Homes
4 bedroom home for sale
4 Bedrooms
NEW RELEASE - STAMP DUTY PAID!
Sandlands Park 4   Plot 402   Harron Homes
4 bedroom home for sale
4 Bedrooms
NEW RELEASE - 4 BEDROOM FAMILY HOME!
Sandlands Park 4   Plot 414   Harron Homes
4 bedroom home for sale
4 Bedrooms
NEW RELEASE!

Property Information

Price Details:
£399,000
Bedrooms:
4 bedrooms
Development:

Development Location

Individual savings and affordability may vary.

YOUR HOME MAY BE REPOSSESSED IF YOU DO NOT KEEP UP PAYMENTS ON YOUR MORTGAGE.

If you choose to use Tembo for mortgage advice, we may earn a commission from them for the introduction. This does not negatively impact the amount you'll pay for their service.

Tembo Money Limited (12631312) is a company registered in England and Wales with its registered office at 18 Crucifix Lane, London, SE1 3JW. Tembo is authorised and regulated by the Financial Conduct Authority under the registration number 952652.
© 2026 WhatHouse?
Click here to see your activities