LoginSubscribe to Alerts

4 bedroom home in Hucknall

Do you want to get more information from Harron Homes

Sandlands Park 4 by Harron Homes

Sandlands Park 4   Plot 414   Harron Homes

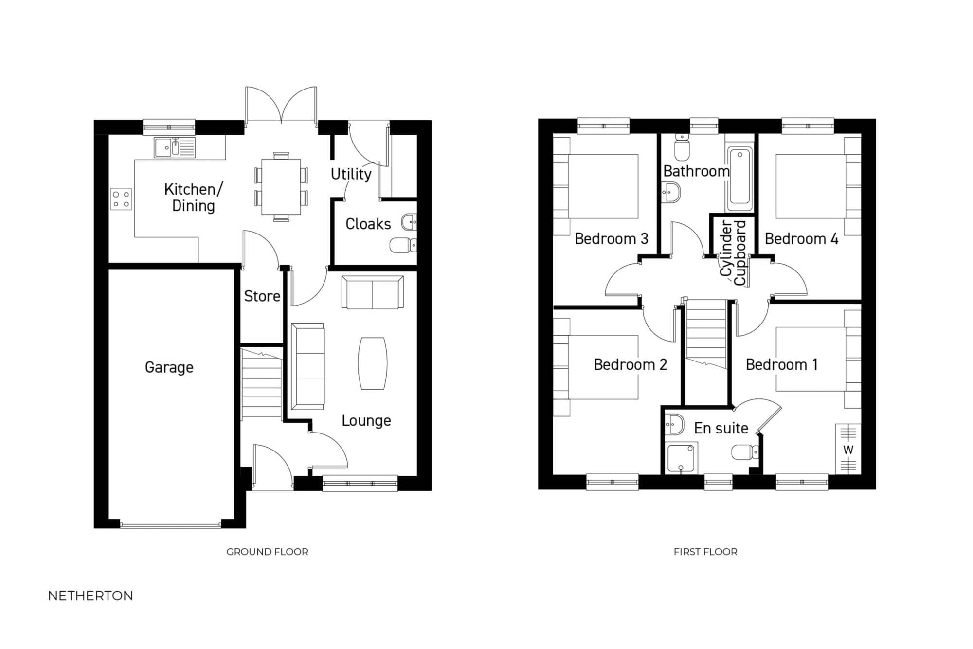
The stylish Netherton is a four bedroom detached home with integral garage offers the best in modern day living for families that want luxury and style.

  • On entering this beautiful property there is a spacious lounge, making it the ideal place to relax and unwind after a long day. The impressive, high specification kitchen with family dining area is at the rear of the property and overlooks the beautiful garden. The dining area benefits from classic double French doors leading out onto the garden and is perfect for entertaining on warm summer evenings. Catering for the busy, modern family, the utility room is accessed from the kitchen with a door leading out to the garden and a useful, separate downstairs cloakroom that maximises on space.

    Upstairs there are four well-proportioned luxurious bedrooms and a stylish family bathroom. The stunning master bedroom includes an en-suite shower room, creating a glamorous retreat in your own home.

    Read Less

Property Features

  • Open-plan kitchen dining area with French doors to the rear garden
  • Separate utility with access to the rear garden
  • 4 double bedrooms
  • En suite to master bedroom
  • Integral garage and block paved driveway with space for parking
  • Electric vehicle car charging point
  • 10 year NHBC warranty and insurance
  • The Harron specification includes leading brands with the latest Bosch kitchen appliances, contemporary Symphony kitchens, Franke kitchen sinks, Hansgrohe taps, Ideal Standard sanitaryware and luxurious Hammonds wardrobes. Plus the option to upgrade to state-of-the-art Neff hob and integrated ovens

Quick mortgage affordability calculator

Tembo is an award-winning mortgage broker
Voted the UK’s Best Mortgage Broker by its customers in 2022 and 2023, Tembo is helping buyers discover their true mortgage affordability.

Tembo boosts its average customer’s maximum budget by £82,000. They do this by not only checking your affordability for over 100 lenders and standard products, but also for a range of budget-boosting specialist schemes.

Schemes include:
Ways for family to support using income, property or savings 
Private part buy part rent & government shared ownership 
Professional mortgages and 5.5x borrowing schemes
Sharia compliant home purchase plans
& so much more

Discover what your budget could be using our simple calculator, and afterwards access personalised interest rates through their full fact-find.

Your home may be repossessed if you do not keep up payments on your mortgage.

Property Floorplans

Click to expand floorplan image.

Other properties on this development

List Sort: 
Sandlands Park 4   Plot 400   Harron Homes
5 bedroom home for sale
5 Bedrooms
NEW RELEASE!
Sandlands Park 4   Plot 398   Harron Homes
5 bedroom home for sale
5 Bedrooms
NEW RELEASE!
Sandlands Park 4   Plot 397   Harron Homes
5 bedroom home for sale
5 Bedrooms
BEAUTIFUL 5 BEDROOM HOME AT A NEW PRICE, WITH PART EXCHANGE AVAILABLE!
Sandlands Park 4   Plot 401   Harron Homes
4 bedroom home for sale
4 Bedrooms
NEW RELEASE - STAMP DUTY PAID!
Sandlands Park 4   Plot 403   Harron Homes
4 bedroom home for sale
4 Bedrooms
NEW RELEASE!

Property Information

Price Details:
£368,000
Bedrooms:
4 bedrooms
Development:

Development Location

Individual savings and affordability may vary.

YOUR HOME MAY BE REPOSSESSED IF YOU DO NOT KEEP UP PAYMENTS ON YOUR MORTGAGE.

If you choose to use Tembo for mortgage advice, we may earn a commission from them for the introduction. This does not negatively impact the amount you'll pay for their service.

Tembo Money Limited (12631312) is a company registered in England and Wales with its registered office at 18 Crucifix Lane, London, SE1 3JW. Tembo is authorised and regulated by the Financial Conduct Authority under the registration number 952652.
© 2026 WhatHouse?
Click here to see your activities