LoginSubscribe to Alerts

4 bedroom semi detached house in Hampton in arden

Do you want to get more information from David Wilson Homes
Call: 03333558479

Ashtree Grove by David Wilson Homes

HEREFORD
Three storey SEMI-DETACHED home with a GARAGE and parking. The KITCHEN DINER includes FRENCH DOORS to the garden and the lounge features additional windows for more light. Upstairs you`ll find THREE DOUBLE BEDROOMS plus a single spread across two storeys, one with an EN SUITE and DRESSING AREA.

Property Features

  • £15,000 Key Worker savings
  • Garage & private driveway
  • 3 storey layout
  • Spacious corner position
  • Private garden
  • Open plan kitchen-diner
  • Dual-aspect views
  • Solar panels
  • EV charging points

Quick mortgage affordability calculator

Tembo is an award-winning mortgage broker
Voted the UK’s Best Mortgage Broker by its customers in 2022 and 2023, Tembo is helping buyers discover their true mortgage affordability.

Tembo boosts its average customer’s maximum budget by £82,000. They do this by not only checking your affordability for over 100 lenders and standard products, but also for a range of budget-boosting specialist schemes.

Schemes include:
Ways for family to support using income, property or savings 
Private part buy part rent & government shared ownership 
Professional mortgages and 5.5x borrowing schemes
Sharia compliant home purchase plans
& so much more

Discover what your budget could be using our simple calculator, and afterwards access personalised interest rates through their full fact-find.

Your home may be repossessed if you do not keep up payments on your mortgage.

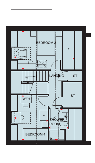
Property Floorplans

Click to expand floorplan image.

Property Tour



Contact David Wilson Homes

Want to know more about Ashtree Grove from David Wilson Homes
David Wilson Homes will use this information to contact you.
ThankYou

Other properties on this development

List Sort: 
H872858 - LICHFIELD
5 bedroom detached house for sale
Video Tour 
5 Bedrooms
Double fronted with DOUBLE DETACHED GARAGE and parking for 4 cars. OPEN PLAN kitchen diner with FRENCH DOORS to your GARDEN. Separate dining room and HOME OFFICE.
H872865 - AVONDALE
4 bedroom detached house for sale
Video Tour 
4 Bedrooms
Attractive DETACHED family home with a SINGLE GARAGE and driveway parking. The bay fronted lounge is bright and airy. The OPEN PLAN kitchen diner benefits from FRENCH DOORS to the garden.
H872866 - HOLDEN
4 bedroom detached house for sale
Video Tour 
4 Bedrooms
A home with true KERB APPEAL, step inside and embrace the bright and airy design. It also includes a handy STUDY ideal when working from home.
H872857 - HOLDEN
4 bedroom detached house for sale
Video Tour 
4 Bedrooms
***MOVE CHAIN-FREE WITH PART EXCHANGE*** A home with true KERB APPEAL! Secluded spot NOT OVERLOOKED. Step inside and embrace the bright and airy design.
H872854 - HERTFORD
4 bedroom detached house for sale
Video Tour 
4 Bedrooms
***PART EXCHANGE AVAILABLE*** Three storey DETACHED home with a GARAGE and parking. The KITCHEN DINER includes FRENCH DOORS to the garden and the lounge features additional windows for more light.
H872828 - HEREFORD
4 bedroom semi detached house for sale
Video Tour 
4 Bedrooms
***PART EXCHANGE AVAILABLE*** Three storey SEMI-DETACHED home with a GARAGE and parking.
H872818 - HERTFORD
4 bedroom detached house for sale
Video Tour 
4 Bedrooms
***PART EXCHANGE AVAILABLE*** 22,500 LUXURY UPGRADES INCLUDED Ready to move into now! BOOK A VIEWING TODAY.
H872874 - KENNETT
3 bedroom semi detached house for sale
Video Tour 
3 Bedrooms
SEMI-DETACHED three storey home with a GARAGE. The spacious KITCHEN DINER enjoys FRENCH DOORS to the garden and the lounge perfect for relaxing.
H872875 - KENNETT
3 bedroom semi detached house for sale
Video Tour 
3 Bedrooms
SEMI-DETACHED three storey home with a GARAGE. The spacious KITCHEN DINER enjoys FRENCH DOORS to the garden and the lounge perfect for relaxing.
H872829 - KENNETT
3 bedroom semi detached house for sale
Video Tour 
3 Bedrooms
***PART EXCHANGE AVAILABLE*** THREE STOREY home with two parking spaces. OPEN PLAN ground floor design with a modern kitchen, dining, family seating and FRENCH DOORS to your garden.
H872841 - ARCHFORD
3 bedroom semi detached house for sale
Video Tour 
3 Bedrooms
**MOVE IN JUNE `26** Last Archford home remaining. Part Exchange available. The hall opens out to a cosy LOUNGE and through to the modern KITCHEN DINER with FRENCH DOORS to the garden.
H872819 - ASHDOWN
2 bedroom semi detached house for sale
Video Tour 
2 Bedrooms
** 20,250 DEPOSIT PAID** Appointment only - book yours to speak to our friendly Sales Adviser. Ideal for couples and First Time Buyers. Semi detached home with 2 PARKING SPACES. Modern kitchen.
H872821 - ASHDOWN
2 bedroom semi detached house for sale
Video Tour 
2 Bedrooms
*** 19,350 KEY WORKER SAVINGS*** Ready to move into! TWO DOUBLE BEDOOMS with TWO EN SUITES. Semi detached home with TWO PARKING SPACES. Open plan lounge diner with FRENCH DOORS to your garden.
H872820 - ASHDOWN
2 bedroom semi detached house for sale
Video Tour 
2 Bedrooms
***HOME OF THE WEEK*** *** 11,550 DEPOSIT PAID & 11,255 WORTH OF LUXURY EXTRAS*** Semi-detached home with TWO PARKING SPACES. Open plan lounge diner with FRENCH DOORS to your garden.
News stories about David Wilson Homes

Property Information

Price Details:
£705,000
Bedrooms:
4 bedrooms
Development:
Brochure:

Development Location

Individual savings and affordability may vary.

YOUR HOME MAY BE REPOSSESSED IF YOU DO NOT KEEP UP PAYMENTS ON YOUR MORTGAGE.

If you choose to use Tembo for mortgage advice, we may earn a commission from them for the introduction. This does not negatively impact the amount you'll pay for their service.

Tembo Money Limited (12631312) is a company registered in England and Wales with its registered office at 18 Crucifix Lane, London, SE1 3JW. Tembo is authorised and regulated by the Financial Conduct Authority under the registration number 952652.
© 2026 WhatHouse?
Click here to see your activities