LoginSubscribe to Alerts

5 bedroom detached house in Edwinstowe

Do you want to get more information from David Wilson Homes
Call: 03333558473
Development Brochure
Request Details
Video Tour Available 

Thoresby Vale by David Wilson Homes

Lichfield
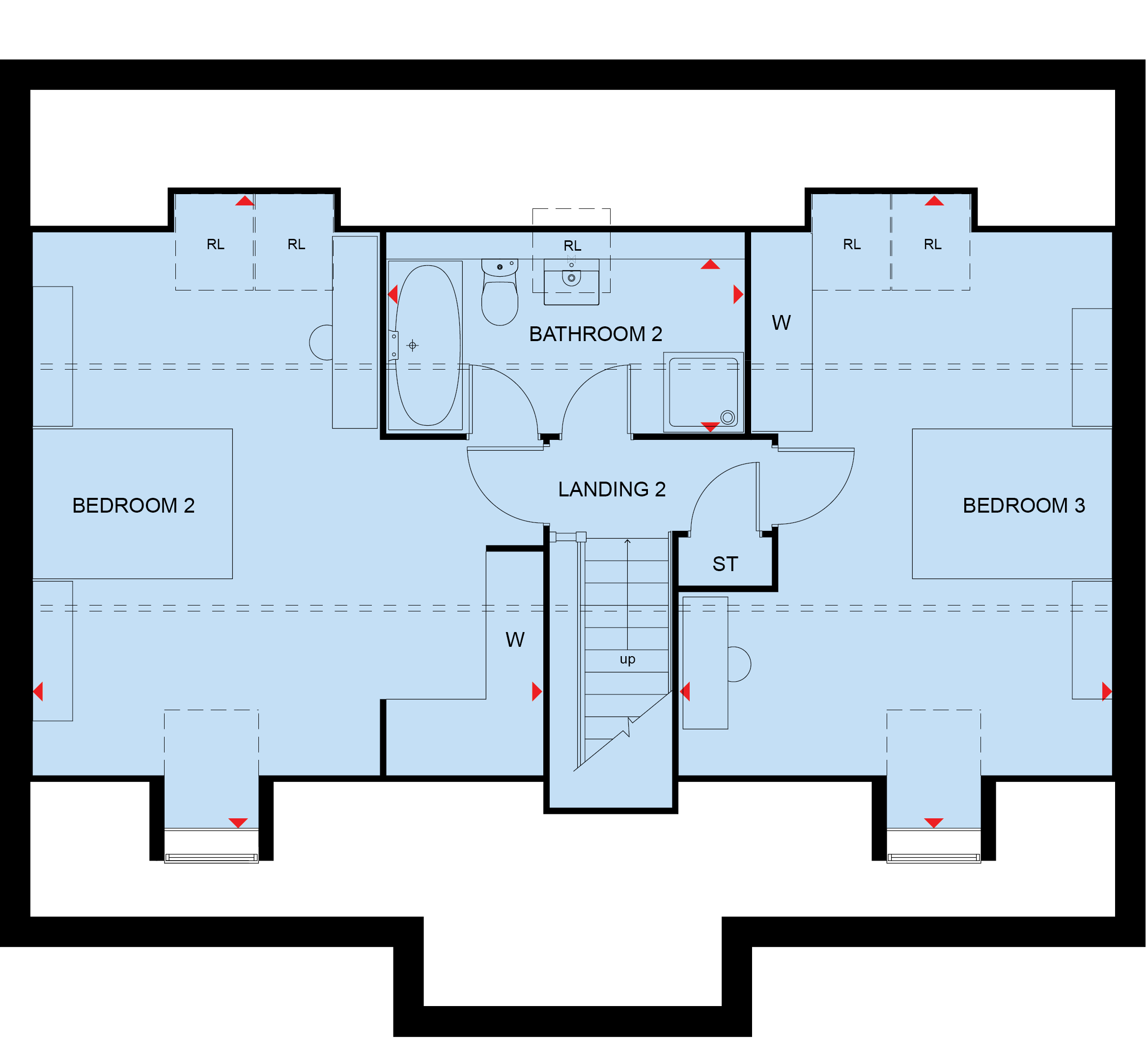
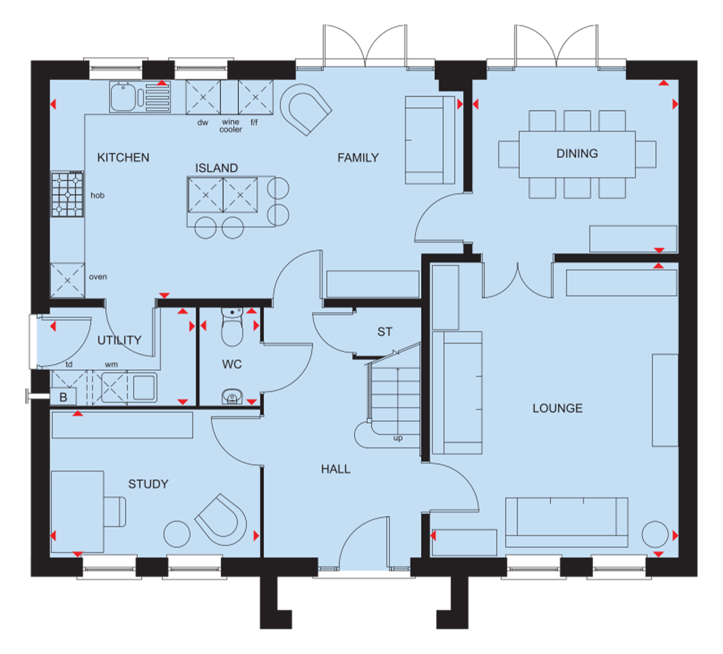
Stamp Duty paid worth 15,000 | Upgraded kitchen package when you reserve this home. This double fronted home has an impressive entrance hall, leading to a comfortable lounge, dining room, study and kitchen with breakfast, family and utility areas, opening up to your south-east facing garden. On the first floor, the main bedroom has a dressing area and en suite and there are two more double bedrooms and a family bathroom. The second floor has two double bedrooms and a dual access bathroom. Double garage & 4 parking spaces. Plot 354 | Lichfield | Thoresby Vale Phase 3 Nestled in the heart of Sherwood Forest, Thoresby Vale is a brand new community in the town of Edwinstowe. You`ll be surrounded by a 350-acre county park, offering plenty of open space for walking, as well as two play areas on the development. You`ll be close to all your local amenities, excellent transport links and OFSTED rated `Good` schools.

Property Features

  • Stamp Duty contribution worth £15,000
  • Upgraded kitchen package worth £2,299
  • South-east facing garden
  • Large open-plan kitchen
  • Spacious lounge
  • Separate dining area
  • 5 double bedrooms
  • Main with en suite & dressing area
  • Double garage
  • 4 parking spaces

Quick mortgage affordability calculator

Tembo is an award-winning mortgage broker
Voted the UK’s Best Mortgage Broker by its customers in 2022 and 2023, Tembo is helping buyers discover their true mortgage affordability.

Tembo boosts its average customer’s maximum budget by £82,000. They do this by not only checking your affordability for over 100 lenders and standard products, but also for a range of budget-boosting specialist schemes.

Schemes include:
Ways for family to support using income, property or savings 
Private part buy part rent & government shared ownership 
Professional mortgages and 5.5x borrowing schemes
Sharia compliant home purchase plans
& so much more

Discover what your budget could be using our simple calculator, and afterwards access personalised interest rates through their full fact-find.

Your home may be repossessed if you do not keep up payments on your mortgage.

Property Floorplans

Click to expand floorplan image.

Property Tour



Contact David Wilson Homes

Want to know more about Thoresby Vale from David Wilson Homes
David Wilson Homes will use this information to contact you.
ThankYou

Other properties on this development

List Sort: 
H8809310 - Lichfield
5 bedroom detached house for sale
Video Tour 
5 Bedrooms
IDEAL FOR LARGE FAMILIES | This double fronted home has an impressive entrance hall, leading to a comfortable lounge, dining room, study and kitchen with breakfast, family and utility areas, opening ...
H8809312 - Moreton
5 bedroom detached house for sale
Video Tour 
5 Bedrooms
Overlooking woodland | South-facing garden | Impressive family home | Featuring two sets of French doors onto the garden from the spacious lounge and open-plan kitchen diner.
H8809305 - Moreton
5 bedroom detached house for sale
Video Tour 
5 Bedrooms
Upgraded kitchen package Impressive family home | Featuring two sets of French doors onto the garden from the spacious lounge and open-plan kitchen diner. Double garage & 4 parking spaces.
H8809306 - Moreton
5 bedroom detached house for sale
Video Tour 
5 Bedrooms
Stamp Duty paid worth 10,000 | Upgraded kitchen package This impressive 5 bedroom home features two sets of French doors onto the garden from the spacious lounge and open-plan kitchen diner.
H8809311 - Winstone
4 bedroom detached house for sale
Video Tour 
4 Bedrooms
Key workerGet up to 25,000 Discover luxury with this stunning home. Impressive main bedroom with en suite and dressing area, 2nd en suite bedroom, 2 further double bedrooms and a family bathroom.
H8066115 - Holden
4 bedroom detached house for sale
Video Tour 
4 Bedrooms
Upgraded kitchen package | Sell your home with Movemaker Overlooking open space | Cul-de-sac location | The Holden is a detached four bedroom home. Single garage & 3 parking spaces.
H8066116 - Holden
4 bedroom detached house for sale
Video Tour 
4 Bedrooms
5,000 moving cost contribution | An upgraded kitchen package Located on a private drive & overlooking open space | The Holden is a detached four bedroom home. Single garage & 3 parking spaces.
H8066118 - Avondale
4 bedroom detached house for sale
Video Tour 
4 Bedrooms
Deal worth 15,200 including Stamp Duty paid worth 12,999 + an upgraded kitchen package Show Home available to view. The generous lounge features French doors that lead to the garden.
H8066112 - Exeter
4 bedroom detached house for sale
Video Tour 
4 Bedrooms
Located on a private drive | This Exeter features an open-plan kitchen-diner with French doors to your garden with a handy utility room. Integral garage & 2 parking spaces.
H8809360 - Exeter
4 bedroom detached house for sale
Video Tour 
4 Bedrooms
Ready to move into - book to view | Deal worth 24,200 | Stamp Duty paid worth 11,249 OR house to sell? Ask about Part Exchange | Upgraded kitchen package worth 3,430 | Flooring included throughout ...
H8809309 - Ashington
4 bedroom detached house for sale
Video Tour 
4 Bedrooms
Estate agent fees paid with Movemaker | Upgraded kitchen package included Corner location | Downstairs you`ll find your spacious dual-aspect lounge with French doors out to your garden, a separate ...
H806660 - GREENWOOD
3 bedroom semi detached house for sale
Video Tour 
3 Bedrooms
View our Show Home | This three bedroom home has space across three floors. You`ll find an open-plan kitchen with a bright glazed bay and French doors onto the garden.
H806684 - Archford
3 bedroom end terraced house for sale
Video Tour 
3 Bedrooms
Ready to move into | 5% towards your deposit worth 12,999 | Receive an upgraded kitchen & flooring packages worth over 7,000, when you reserve this home.
H806685 - Archford
3 bedroom terraced house for sale
Video Tour 
3 Bedrooms
Deal worth 19,700, including 5% deposit boost worth 12,499, plus an upgraded kitchen and flooring package throughout your new home. A spacious lounge offers the ideal space to relax in the evening.
H806658 - WILFORD
2 bedroom semi detached house for sale
Video Tour 
2 Bedrooms
Ideal for first-time buyer | Modern kitchen, open-plan lounge with dining area, French doors onto the garden, 2 double bedrooms, family bathroom. Semi-detached home with 2 parking spaces.
News stories about David Wilson Homes

Property Information

Price Details:
£656,495
Bedrooms:
5 bedrooms
Development:
Brochure:

Development Location

Individual savings and affordability may vary.

YOUR HOME MAY BE REPOSSESSED IF YOU DO NOT KEEP UP PAYMENTS ON YOUR MORTGAGE.

If you choose to use Tembo for mortgage advice, we may earn a commission from them for the introduction. This does not negatively impact the amount you'll pay for their service.

Tembo Money Limited (12631312) is a company registered in England and Wales with its registered office at 18 Crucifix Lane, London, SE1 3JW. Tembo is authorised and regulated by the Financial Conduct Authority under the registration number 952652.
© 2026 WhatHouse?
Click here to see your activities