LoginSubscribe to Alerts

5 bedroom detached house in Park Farm Industrial Estate

Do you want to get more information from David Wilson Homes
Call: 03333558482

Glenvale Park by David Wilson Homes

Moreton
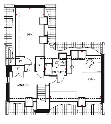
20,550 CASH OR PART EXCHANGE YOUR HOME! 25,925 worth of upgrades included! *PLOT 63 - THE MORETON AT GLENVALE PARK*.Double garage, 4 parking spaces, cul-de-sac location. Featuring two sets of French doors onto the garden from the spacious lounge and open-plan kitchen diner. Also on the ground floor is a utility room and a dining room. On the first floor you will find four double bedrooms, your main with an en suite and a family bathroom. On the top floor is a spacious landing, a further double bedroom with en suite, and a 21ft long den. This home includes a range of energy-efficient features including solar PV panels and more

Property Features

  • We could be your guaranteed buyer^
  • OR choose £20,550 CASH!
  • £25,925 worth of upgrades included!
  • Double garage & 4 parking spaces
  • Main bedroom complete with dressing room
  • 4 further double bedrooms, including one with en suite

Quick mortgage affordability calculator

Tembo is an award-winning mortgage broker
Voted the UK’s Best Mortgage Broker by its customers in 2022 and 2023, Tembo is helping buyers discover their true mortgage affordability.

Tembo boosts its average customer’s maximum budget by £82,000. They do this by not only checking your affordability for over 100 lenders and standard products, but also for a range of budget-boosting specialist schemes.

Schemes include:
Ways for family to support using income, property or savings 
Private part buy part rent & government shared ownership 
Professional mortgages and 5.5x borrowing schemes
Sharia compliant home purchase plans
& so much more

Discover what your budget could be using our simple calculator, and afterwards access personalised interest rates through their full fact-find.

Your home may be repossessed if you do not keep up payments on your mortgage.

Property Floorplans

Click to expand floorplan image.

Property Tour



Contact David Wilson Homes

Want to know more about Glenvale Park from David Wilson Homes
David Wilson Homes will use this information to contact you.
ThankYou

Other properties on this development

List Sort: 
H877359 - Culver
4 bedroom detached house for sale
Video Tour 
4 Bedrooms
*PLOT 59 - THE CULVER AT GLENVALE PARK*. The bright open-plan kitchen/dining opens to your garden through French doors. There is also an elegant bay fronted lounge and a private study.
H877358 - Wychwood
4 bedroom detached house for sale
Video Tour 
4 Bedrooms
UPGRADED KITCHEN AND FLOORING INCLUDED *PLOT 58 - THE WYCHWOOD AT GLENVALE PARK* The Wychwood features an open-plan kitchen with dining area, utility room & dedicated home office.
H877368 - Wychwood
4 bedroom detached house for sale
Video Tour 
4 Bedrooms
PLOT 68 THE WHYCHWOOD AT GLENVALE PARK - The Wychwood features an open-plan kitchen with dining area, utility room & dedicated home office. The family bathroom has a separate bath & shower.
H877367 - Lynford
4 bedroom detached house for sale
Video Tour 
4 Bedrooms
14,250 CASH BOOST - PLOT 67 THE LYNFORD AT GLENVALE PARK - The Lynford features an impressive open-plan kitchen with family and dining areas, a walk in glazed-bay with French doors leads to the rear ...
H877366 - Lynford
4 bedroom detached house for sale
Video Tour 
4 Bedrooms
23,500 TOWARDS YOUR MOVE*. Completing this floor is a spacious lounge and study. Upstairs are four double bedrooms, the main with en suite and a modern family bathroom.
H877354 - Dedham
4 bedroom detached house for sale
Video Tour 
4 Bedrooms
PLOT 54 THE DEDHAM AT GLENVALE PARK - The Dedham is a four-bedroom adaptable home ideal for growing families. Completing the ground floor is the spacious lounge.
H877364 - Dedham
4 bedroom detached house for sale
Video Tour 
4 Bedrooms
21,049 TOWARDS YOUR MOVE + UPGRADES THROUGHOUT*. *PLOT 64 - THE DEDHAM AT GLENVALE PARK*. Completing the ground floor is the spacious lounge.
H877353 - Sudbury
4 bedroom detached house for sale
Video Tour 
4 Bedrooms
PLOT 53 THE SUDBURY AT GLENVALE PARK - 3 STOREY DESIGN - CLOSE TO PUBLIC OPEN SPACE. The Sudbury features an open-plan kitchen with dining and family areas and French doors to the garden.
H877365 - Foxglove
3 bedroom detached house for sale
Video Tour 
3 Bedrooms
11,250 TOWARDS YOUR MOVE*. PLOT 65 THE FOXGLOVE AT GLENVALE PARK - The Foxglove is a 3-bedroom home ideal for first time buyers and growing families looking to expand their space.
News stories about David Wilson Homes

Property Information

Price Details:
£685,000
Bedrooms:
5 bedrooms
Development:
Brochure:

Development Location

Individual savings and affordability may vary.

YOUR HOME MAY BE REPOSSESSED IF YOU DO NOT KEEP UP PAYMENTS ON YOUR MORTGAGE.

If you choose to use Tembo for mortgage advice, we may earn a commission from them for the introduction. This does not negatively impact the amount you'll pay for their service.

Tembo Money Limited (12631312) is a company registered in England and Wales with its registered office at 18 Crucifix Lane, London, SE1 3JW. Tembo is authorised and regulated by the Financial Conduct Authority under the registration number 952652.
© 2026 WhatHouse?
Click here to see your activities