LoginSubscribe to Alerts

3 bedroom end terraced house in Queniborough

Do you want to get more information from David Wilson Homes
Call: 03333558483

Thorpebury In The Limes by David Wilson Homes

Kennett
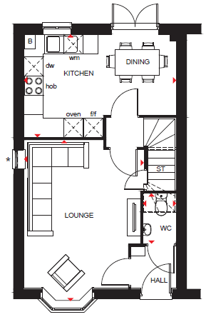
Downstairs you`ll find your BAY-FRONTED LOUNGE and your modern KITCHEN-DINER, with French doors out to your garden. On the first floor there are two DOUBLE BEDROOMS and the family bathroom. On the top floor is your own private haven, with a LARGE MAIN BEDROOM that`s spread across the entire top floor and your own EN SUITE. This home also has parking for two cars. Plot 98, the energy-efficient Kennett at David Wilson Homes, Thorpebury in the Limes, Leicester.

Property Features

  • Driveway parking
  • Good-sized lounge
  • Kitchen-diner with French doors
  • Three double bedrooms
  • Must-see main bedroom
  • Family bathroom

Quick mortgage affordability calculator

Tembo is an award-winning mortgage broker
Voted the UK’s Best Mortgage Broker by its customers in 2022 and 2023, Tembo is helping buyers discover their true mortgage affordability.

Tembo boosts its average customer’s maximum budget by £82,000. They do this by not only checking your affordability for over 100 lenders and standard products, but also for a range of budget-boosting specialist schemes.

Schemes include:
Ways for family to support using income, property or savings 
Private part buy part rent & government shared ownership 
Professional mortgages and 5.5x borrowing schemes
Sharia compliant home purchase plans
& so much more

Discover what your budget could be using our simple calculator, and afterwards access personalised interest rates through their full fact-find.

Your home may be repossessed if you do not keep up payments on your mortgage.

Property Floorplans

Click to expand floorplan image.

Property Tour



Contact David Wilson Homes

Want to know more about Thorpebury in the Limes from David Wilson Homes
David Wilson Homes will use this information to contact you.
ThankYou

Other properties on this development

List Sort: 
H794188 - Henley
5 bedroom detached house for sale
Video Tour 
5 Bedrooms
DEPOSIT CONTRIBUTION WORTH 25,000 PLUS UPGRADED KITCHEN AND FLOORING | OR WE COULD BUY YOUR CURRENT HOME WITH PART EXCHANGE^ Downstairs you`ll find your LARGE LOUNGE, with French doors out to your ...
H794186 - Winstone
4 bedroom detached house for sale
Video Tour 
4 Bedrooms
GET YOUR FULL STAMP DUTY PAID WORTH 20,999* PLUS UPGRADED KITCHEN AND FLOORING Downstairs you`ll find a HOME OFFICE, a separate DINING ROOM or SECOND RECEPTION ROOM, a spacious LOUNGE and the heart ...
H7941133 - Avondale
4 bedroom detached house for sale
Video Tour 
4 Bedrooms
Downstairs you`ll find your HOME OFFICE or playroom, a SPACIOUS LOUNGE with French doors out to your garden and a cleverly designed KITCHEN-DINER. This home has a GARAGE and DRIVEWAY PARKING.
H794191 - Holden
4 bedroom detached house for sale
Video Tour 
4 Bedrooms
UPGRADED KITCHEN AND FLOORING PACKAGE WORTH 12,000* | OVERLOOKING GREEN OPEN SPACE Downstairs you`ll find your spacious BAY-FRONTED LOUNGE, a HOME OFFICE and the impressive, KITCHEN-DINER with out ...
H794196 - Holden
4 bedroom detached house for sale
Video Tour 
4 Bedrooms
GET A 5% HEAD START WORTH 27,750* | PLUS AN UPGRADED KITCHEN AND FLOORING INCLUDED DETACHED FAMILY HOME with DETACHED GARAGE and DRIVEWAY PARKING | Downstairs you`ll find your spacious BAY-FRONTED a ...
H794185 - Bradgate
4 bedroom detached house for sale
Video Tour 
4 Bedrooms
Downstairs you`ll find your OPEN-PLAN KITCHEN with French doors out to your GARDEN and a FAMILY AREA, a bay-fronted LOUNGE and your home office. This home has a GARAGE and driveway parking.
H794187 - HOLDEN
4 bedroom detached house for sale
Video Tour 
4 Bedrooms
WE COULD BE YOUR CASH BUYER WITH PART EXCHANGE* Downstairs you`ll find your spacious BAY-FRONTED LOUNGE, a HOME OFFICE or snug and the impressive heart of the home, the KITCHEN-DINER with FRENCH out ...
H794199 - Kennett
3 bedroom terraced house for sale
Video Tour 
3 Bedrooms
GET A 5% HEAD START WORTH 17,000* PLUS UPGRADED KITCHEN AND FLOORING INCLUDED* | THREE STOREY HOME | MUST-SEE MAIN BEDROOM Downstairs you`ll find your BAY-FRONTED LOUNGE and your modern with doors ...
News stories about David Wilson Homes

Property Information

Price Details:
£359,995
Bedrooms:
3 bedrooms
Brochure:

Development Location

Individual savings and affordability may vary.

YOUR HOME MAY BE REPOSSESSED IF YOU DO NOT KEEP UP PAYMENTS ON YOUR MORTGAGE.

If you choose to use Tembo for mortgage advice, we may earn a commission from them for the introduction. This does not negatively impact the amount you'll pay for their service.

Tembo Money Limited (12631312) is a company registered in England and Wales with its registered office at 18 Crucifix Lane, London, SE1 3JW. Tembo is authorised and regulated by the Financial Conduct Authority under the registration number 952652.
© 2026 WhatHouse?
Click here to see your activities