LoginSubscribe to Alerts

4 bedroom detached house in Hedge End

Do you want to get more information from David Wilson Homes
Call: 03333558494

Forest Walk by David Wilson Homes

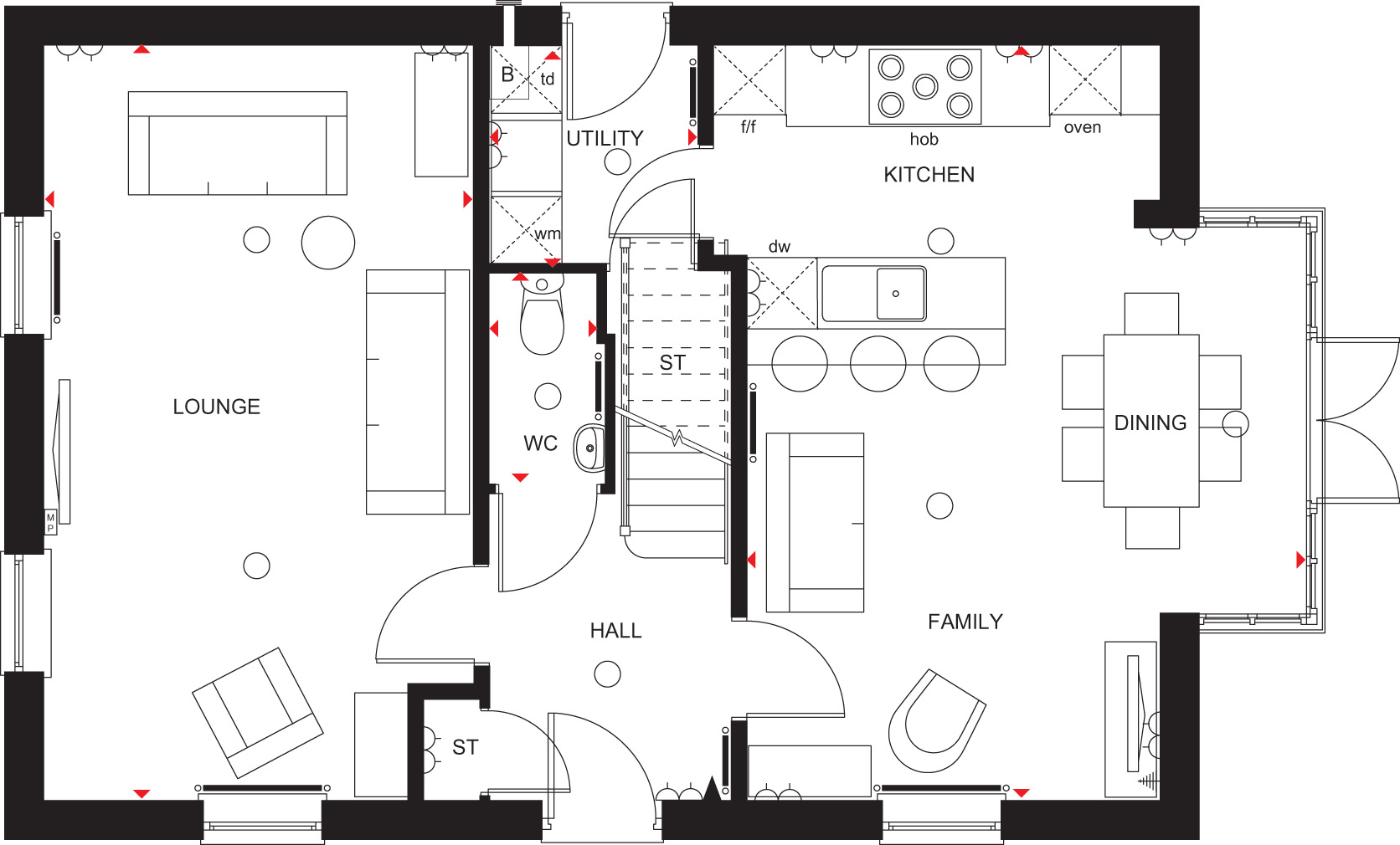
Cornell
Brand new detached bedroom home with a LARGE SOUTH FACING GARDEN, GARAGE AND DRIVEWAY and four spacious bedrooms. Plot 89 | The Cornell | Forest Walk, Whiteley | David Wilson Homes. This home has a large open plan kitchen with French doors to the south facing garden and a separate utility. The dual aspect lounge with feature bay window is a perfect place to relax. Upstairs there`s an en suite main bedroom and two further doubles. You`ll also find a single bedroom and the family bathroom. Comes with a garage and two parking spaces. PEACE OF MIND WHEN BUYING NEW: ENERGY SAVING technologies included, meaning you could enjoy lower bills. COMPREHENSIVE WARRANTY as standard for added reassurance. Need help with your mortgage? We can put you in touch with a New Build MORTGAGE BROKER.

Property Features

  • Property to sell? Why not Part Exchange?
  • Large south facing garden
  • Personalise this home
  • Garage and driveway
  • Open plan kitchen
  • Three double bedrooms

Quick mortgage affordability calculator

Tembo is an award-winning mortgage broker
Voted the UK’s Best Mortgage Broker by its customers in 2022 and 2023, Tembo is helping buyers discover their true mortgage affordability.

Tembo boosts its average customer’s maximum budget by £82,000. They do this by not only checking your affordability for over 100 lenders and standard products, but also for a range of budget-boosting specialist schemes.

Schemes include:
Ways for family to support using income, property or savings 
Private part buy part rent & government shared ownership 
Professional mortgages and 5.5x borrowing schemes
Sharia compliant home purchase plans
& so much more

Discover what your budget could be using our simple calculator, and afterwards access personalised interest rates through their full fact-find.

Your home may be repossessed if you do not keep up payments on your mortgage.

Property Floorplans

Click to expand floorplan image.

Property Tour



Contact David Wilson Homes

Want to know more about Forest Walk from David Wilson Homes
David Wilson Homes will use this information to contact you.
ThankYou

Other properties on this development

List Sort: 
H8677125 - Holden
4 bedroom detached house for sale
Video Tour 
4 Bedrooms
Brand new home with UPGRADES INCLUDED worth over 15,200 and a DEPOSIT CONTRIBUTION of 29,950. Plot 125 | The Holden | Forest Walk, Whiteley | David Wilson Homes.
H8677101 - Hadley
3 bedroom semi detached house for sale
Video Tour 
3 Bedrooms
Brand new semi detached home in a CUL-DE-SAC location. Part exchange your current home with us. Plot 101 | The Hadley | Forest Walk, Whiteley | David Wilson Homes.
H8677118 - Hadley
3 bedroom end terraced house for sale
Video Tour 
3 Bedrooms
Brand new home with TWO PARKING SPACES and photovoltaic SOLAR PANELS. Receive 22,000 TOWARDS YOUR DEPOSIT. Plot 118 | The Hadley | Forest Walk, Whiteley | David Wilson Homes.
H867788 - Curdridge
3 bedroom end terraced house for sale
Video Tour 
3 Bedrooms
Brand new end terrace home with SOUTH FACING GARDEN, EV CHARGER and photovoltaic SOLAR PANELS. Got a property to sell? Why not PART EXCHANGE.
H867787 - Curdridge
3 bedroom terraced house for sale
Video Tour 
3 Bedrooms
Brand new home with three double bedrooms, comes with two parking spaces and EV CHARGING. Receive 12,300 TOWARDS YOUR DEPOSIT. Plot 87 | The Curdridge | Forest Walk, Whiteley | David Wilson Homes.
H8677116 - Archford
3 bedroom end terraced house for sale
Video Tour 
3 Bedrooms
Brand new home in a CUL-DE-SAC location with photovoltaic SOLAR PANELS and an EV CHARGER. Benefit from 19,000 TOWARDS YOUR DEPOSIT.
H8677117 - Archford
3 bedroom terraced house for sale
Video Tour 
3 Bedrooms
Brand new three bedroom home with TWO PARKING SPACES and an EV CHARGER. Plus benefit from a WEST FACING GARDEN. Plus receive 18,750 TOWARDS YOUR DEPOSIT.
H867799 - Wilford
2 bedroom semi detached house for sale
2 Bedrooms
Brand new home with photovoltaic SOLAR PANELS and driveway with EV charger. KEYWORKER? Receive 15,950 towards your deposit. Plot 99 | The Wilford | Forest Walk, Whiteley | David Wilson Homes.
News stories about David Wilson Homes

Property Information

Price Details:
£560,000
Bedrooms:
4 bedrooms
Development:
Brochure:

Development Location

Individual savings and affordability may vary.

YOUR HOME MAY BE REPOSSESSED IF YOU DO NOT KEEP UP PAYMENTS ON YOUR MORTGAGE.

If you choose to use Tembo for mortgage advice, we may earn a commission from them for the introduction. This does not negatively impact the amount you'll pay for their service.

Tembo Money Limited (12631312) is a company registered in England and Wales with its registered office at 18 Crucifix Lane, London, SE1 3JW. Tembo is authorised and regulated by the Financial Conduct Authority under the registration number 952652.
© 2026 WhatHouse?
Click here to see your activities