LoginSubscribe to Alerts

3 bedroom semi detached house in Yate

Do you want to get more information from David Wilson Homes
Call: 03301272523

Ladden Garden Village by David Wilson Homes

Greenwood
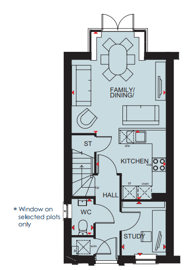
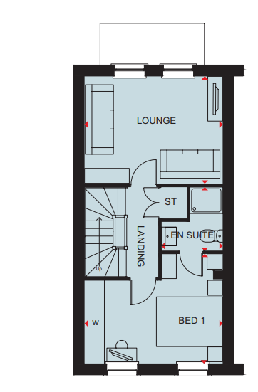
Brand new home in a cul-de-sac with photovoltaic solar panels. Plot 63 | The Greenwood | Ladden Garden Village, Yate | David Wilson Homes. This home has an open plan kitchen with glazed bay and French doors to the garden together with a study. A cloakroom and some understairs storage completes the ground floor. Upstairs, over two floors you`ll find the lounge, an en suite main bedroom, two further double bedrooms and a family bathroom. Comes with two parking spaces. PEACE OF MIND WHEN BUYING NEW: ENERGY SAVING technologies included, meaning you could enjoy lower bills. COMPREHENSIVE WARRANTY as standard for added reassurance. Need help with your mortgage? We can put you in touch with a New Build MORTGAGE BROKER.

Property Features

  • Cul-de-sac
  • Semi detached home
  • 2 parking spaces
  • Photovoltaic solar panels
  • French doors to the garden
  • En suite main bedroom

Quick mortgage affordability calculator

Tembo is an award-winning mortgage broker
Voted the UK’s Best Mortgage Broker by its customers in 2022 and 2023, Tembo is helping buyers discover their true mortgage affordability.

Tembo boosts its average customer’s maximum budget by £82,000. They do this by not only checking your affordability for over 100 lenders and standard products, but also for a range of budget-boosting specialist schemes.

Schemes include:
Ways for family to support using income, property or savings 
Private part buy part rent & government shared ownership 
Professional mortgages and 5.5x borrowing schemes
Sharia compliant home purchase plans
& so much more

Discover what your budget could be using our simple calculator, and afterwards access personalised interest rates through their full fact-find.

Your home may be repossessed if you do not keep up payments on your mortgage.

Property Floorplans

Click to expand floorplan image.

Property Tour



Contact David Wilson Homes

Want to know more about Ladden Garden Village from David Wilson Homes
David Wilson Homes will use this information to contact you.
ThankYou

Other properties on this development

List Sort: 
H860442 - Manning
5 bedroom detached house for sale
Video Tour 
5 Bedrooms
Brand new home with views over green open space, a south facing garden and a home office. Visit us to learn more.
H860443 - Henley
5 bedroom detached house for sale
Video Tour 
5 Bedrooms
Part Exchange Xtra available. Brand new home OVERLOOKING GREEN SPACE from a quiet cul-de-sac. Visit us to learn more.
H860448 - Holden
4 bedroom detached house for sale
Video Tour 
4 Bedrooms
Part Exchange available. Brand new home with a home office and photovoltaic solar panels. Visit us to learn more.
H860449 - Hertford
4 bedroom detached house for sale
Video Tour 
4 Bedrooms
25,000 DEPOSIT CONTRIBUTION. Brand new home with plenty of space. Final Hertford home remaining, visit us to learn more.
H860454 - Bayswater
4 bedroom detached house for sale
Video Tour 
4 Bedrooms
This spacious four bedroom detached home has an open plan kitchen with French doors to the west facing garden. The bay fronted lounge is a perfect place to relax.
H860462 - Archford
3 bedroom semi detached house for sale
Video Tour 
3 Bedrooms
Brand new home overlooking green space. Final Archford home remaining, visit us to learn more.
H860455 - Wilford
2 bedroom end terraced house for sale
Video Tour 
2 Bedrooms
We could boost your deposit by 15,500. Brand new home in a QUIET CUL-DE-SAC. Visit us to learn more.
H860456 - Wilford
2 bedroom terraced house for sale
Video Tour 
2 Bedrooms
Key Worker? We`ll contribute 15,000. Brand new home in a quiet cul-de-sac with photovoltaic solar panels. Visit us to learn more.
News stories about David Wilson Homes

Property Information

Price Details:
£400,000
Bedrooms:
3 bedrooms
Brochure:

Development Location

Individual savings and affordability may vary.

YOUR HOME MAY BE REPOSSESSED IF YOU DO NOT KEEP UP PAYMENTS ON YOUR MORTGAGE.

If you choose to use Tembo for mortgage advice, we may earn a commission from them for the introduction. This does not negatively impact the amount you'll pay for their service.

Tembo Money Limited (12631312) is a company registered in England and Wales with its registered office at 18 Crucifix Lane, London, SE1 3JW. Tembo is authorised and regulated by the Financial Conduct Authority under the registration number 952652.
© 2026 WhatHouse?
Click here to see your activities