LoginSubscribe to Alerts

4 bedroom detached house in Kilmarnock

Do you want to get more information from David Wilson Homes
Call: 03333558463

Lairds Gait by David Wilson Homes

RALSTON
The Ralston is a stylish family home with no shortage of space and light. The bright, modern kitchen includes a dining area, adjoining utility space and glazed bay with French doors leading to the garden. There is also a bright, elegant lounge and downstairs WC. Upstairs are four spacious double bedrooms, the main bedroom with luxurious en suite, and a family bathroom.

Property Features

  • Part Exchange available
  • Detached family home
  • Private fully turfed garden
  • Large entrance hallway
  • Open-plan kitchen/diner
  • Adjoining utility area
  • Spacious lounge
  • Great storage space throughout
  • Four double bedrooms
  • Modern family bathroom

Quick mortgage affordability calculator

Tembo is an award-winning mortgage broker
Voted the UK’s Best Mortgage Broker by its customers in 2022 and 2023, Tembo is helping buyers discover their true mortgage affordability.

Tembo boosts its average customer’s maximum budget by £82,000. They do this by not only checking your affordability for over 100 lenders and standard products, but also for a range of budget-boosting specialist schemes.

Schemes include:
Ways for family to support using income, property or savings 
Private part buy part rent & government shared ownership 
Professional mortgages and 5.5x borrowing schemes
Sharia compliant home purchase plans
& so much more

Discover what your budget could be using our simple calculator, and afterwards access personalised interest rates through their full fact-find.

Your home may be repossessed if you do not keep up payments on your mortgage.

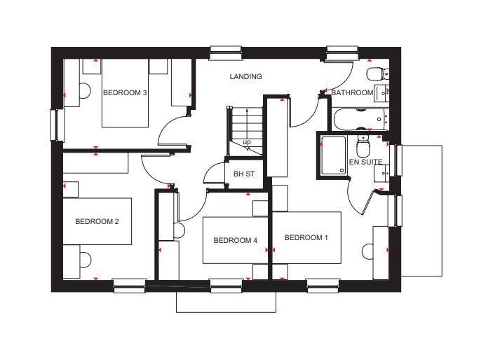
Property Floorplans

Click to expand floorplan image.

Property Tour



Contact David Wilson Homes

Want to know more about Lairds Gait from David Wilson Homes
David Wilson Homes will use this information to contact you.
ThankYou

Other properties on this development

List Sort: 
H8733244 - CRAIGHALL
4 bedroom detached house for sale
Video Tour 
4 Bedrooms
This 4 bedroom detached home, offers an open-plan kitchen/dining/family area with French doors out to your garden and a utility room. A spacious lounge and integral garage complete your new home.
H8733246 - FALKLAND
4 bedroom detached house for sale
Video Tour 
4 Bedrooms
This 4 bedroom detached home, offers open-plan living with a kitchen/dining/family area and French doors out to the garden.
H873352 - FALKLAND
4 bedroom detached house for sale
Video Tour 
4 Bedrooms
The Falkland is a stunning family home designed for modern living. The open-plan kitchen with utility area has bright dining area leading to the garden via a glazed bay.
H8733243 - DALMALLY
4 bedroom detached house for sale
Video Tour 
4 Bedrooms
The Dalmally blends elegance and practicality with an open-plan kitchen/dining/family area and French doors out to your garden. A spacious lounge, utility room, and integral garage complete your home.
H8733250 - DALMALLY
4 bedroom detached house for sale
Video Tour 
4 Bedrooms
This 4 bedroom detached home, blends elegance and practicality with an open-plan kitchen/dining/family area and French doors out to your garden.
H8733248 - DUART
3 bedroom semi detached house for sale
Video Tour 
3 Bedrooms
This three bedroom home, offers a front-facing lounge and an open-plan kitchen/dining area with French doors out to your garden. A utility room and integral garage add convenience to your new home.
News stories about David Wilson Homes

Property Information

Price Details:
£359,995
Bedrooms:
4 bedrooms
Development:
Brochure:

Development Location

Individual savings and affordability may vary.

YOUR HOME MAY BE REPOSSESSED IF YOU DO NOT KEEP UP PAYMENTS ON YOUR MORTGAGE.

If you choose to use Tembo for mortgage advice, we may earn a commission from them for the introduction. This does not negatively impact the amount you'll pay for their service.

Tembo Money Limited (12631312) is a company registered in England and Wales with its registered office at 18 Crucifix Lane, London, SE1 3JW. Tembo is authorised and regulated by the Financial Conduct Authority under the registration number 952652.
© 2026 WhatHouse?
Click here to see your activities