LoginSubscribe to Alerts

3 bedroom detached house in Cambridge

Do you want to get more information from David Wilson Homes
Call: 03333558486

Dwh At Darwin Green by David Wilson Homes

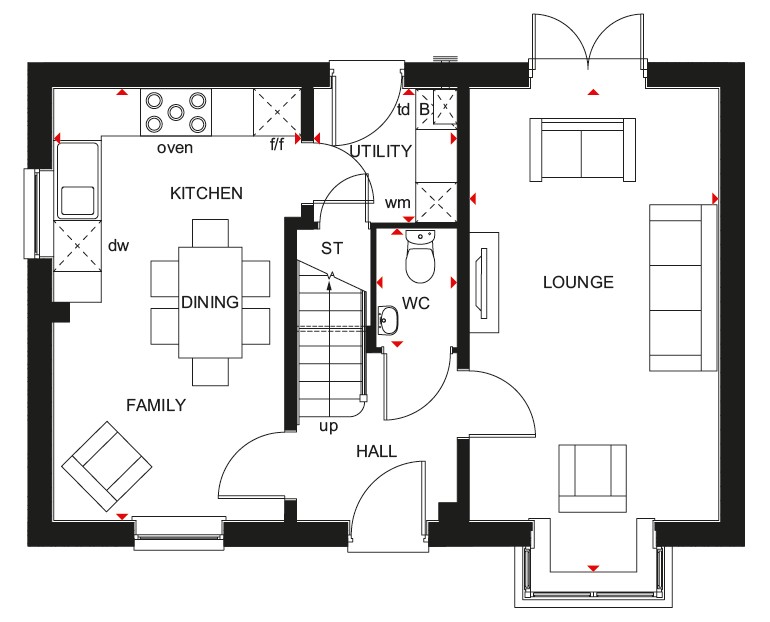
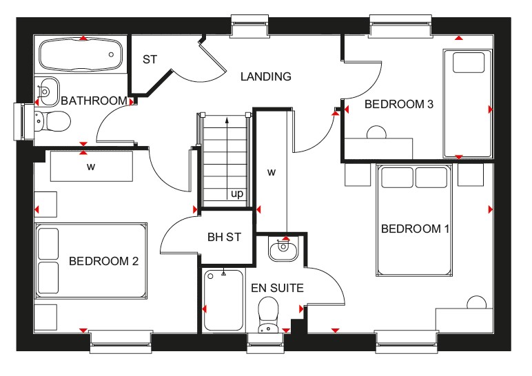
The Hadley
10,000 DEPOSIT CONTRIBUTION* - BRAND NEW HOME. PLOT 128 AT DARWIN GREEN. The Hadley - Featuring an open-plan kitchen, dining and family area, plus a handy utility room. On the opposite side of the home is a dual-aspect lounge with box bay window and French doors onto your garden. Upstairs are 2 double bedrooms, the main with en-suite, plus a single bedroom and bathroom.

Property Features

  • £10,000 Deposit Contribution
  • Top of the range kitchen + silestone worktops
  • Flooring package included
  • Open-plan kitchen diner & family area
  • Dual-aspect lounge with French doors
  • Main bedroom with en-suite
  • Solar panels & EV charging pod

Quick mortgage affordability calculator

Tembo is an award-winning mortgage broker
Voted the UK’s Best Mortgage Broker by its customers in 2022 and 2023, Tembo is helping buyers discover their true mortgage affordability.

Tembo boosts its average customer’s maximum budget by £82,000. They do this by not only checking your affordability for over 100 lenders and standard products, but also for a range of budget-boosting specialist schemes.

Schemes include:
Ways for family to support using income, property or savings 
Private part buy part rent & government shared ownership 
Professional mortgages and 5.5x borrowing schemes
Sharia compliant home purchase plans
& so much more

Discover what your budget could be using our simple calculator, and afterwards access personalised interest rates through their full fact-find.

Your home may be repossessed if you do not keep up payments on your mortgage.

Property Floorplans

Click to expand floorplan image.

Contact David Wilson Homes

Want to know more about DWH at Darwin Green from David Wilson Homes
David Wilson Homes will use this information to contact you.
ThankYou

Other properties on this development

List Sort: 
H7885136 - The Bradgate
4 bedroom detached house for sale
Video Tour 
4 Bedrooms
**STAMP DUTY PAID WORTH 31,999** - SOLAR PANELS - EV CHARGING POD - WEST FACING GARDEN - Plot 136, The Bradgate at Darwin Green features an open-plan kitchen with dining and family areas opening onto ...
H7885124 - The Bradgate
4 bedroom detached house for sale
Video Tour 
4 Bedrooms
The Bradgate features an open-plan kitchen with dining and family areas opening onto the garden through French doors.
H7885140 - The Exeter
4 bedroom detached house for sale
Video Tour 
4 Bedrooms
BRAND NEW HOME. Benefit from a separate utility room. You will also find a bay-fronted lounge. Upstairs are four double bedrooms, the main bedroom benefits from an en suite.
H7885137 - The Exeter
4 bedroom detached house for sale
Video Tour 
4 Bedrooms
**STAMP DUTY PAID WORTH 30,999** - TOP OF THE RANGE KITCHEN WITH SILESTONE WORKTOPS - FLOORING PACKAGE INCLUDED - SOLAR PANELS - EV CHARGING POD - THE EXETER - Discover the impressive open-plan with ...
H7885163 - The Hurst
4 bedroom detached house for sale
Video Tour 
4 Bedrooms
BRAND NEW HOME - 35,850 DEPOSIT CONTRIBUTION* - SOLAR PANELS - EV CHARGING POD - This four bedroom link-detached home has an open-plan kitchen/dining room with French doors to the garden.
H7885221 - The Hurst
4 bedroom semi detached house for sale
Video Tour 
4 Bedrooms
**Ready to move into**, this fourbedroom linkdetached home offers 1,362 sq ft of stylish living. Upstairs are four double bedrooms, including a main with en suite.
H7885215 - The Thorney
3 bedroom detached house for sale
3 Bedrooms
1,265 sqft - DEPOSIT BOOST WORTH 32,500 - solar panels - ev chargers - The Thorney: This detached home features an airy open-plan kitchen with dining and family areas, and French doors to the rear ...
H7885165 - The Wilburton
4 bedroom detached house for sale
Video Tour 
4 Bedrooms
31,750 DEPOSIT CONTRIBUTION* - THE WILBURTON - PLOT 165 AT DARWIN GREEN - SOLAR PANELS - EV CHARGING POD - Featuring an open-plan kitchen with dining and family areas, French doors lead out onto the ...
H7885133 - The Wilburton
4 bedroom detached house for sale
Video Tour 
4 Bedrooms
10,000 DEPOSIT CONTRIBUTION* - BRAND NEW HOME - PLOT 133 THE WILBURTON AT DARWIN GREEN - Featuring an open-plan kitchen with dining and family areas, French doors lead out onto the garden.
H7885130 - The Hadley
3 bedroom detached house for sale
3 Bedrooms
**STAMP DUTY PAID** 19,999 - SOLAR PANELS - EV CHARGING POD - THE HADLEY - Featuring an open-plan kitchen, dining and family area, plus a handy utility room.
News stories about David Wilson Homes

Property Information

Price Details:
£615,995
Bedrooms:
3 bedrooms
Brochure:

Development Location

Individual savings and affordability may vary.

YOUR HOME MAY BE REPOSSESSED IF YOU DO NOT KEEP UP PAYMENTS ON YOUR MORTGAGE.

If you choose to use Tembo for mortgage advice, we may earn a commission from them for the introduction. This does not negatively impact the amount you'll pay for their service.

Tembo Money Limited (12631312) is a company registered in England and Wales with its registered office at 18 Crucifix Lane, London, SE1 3JW. Tembo is authorised and regulated by the Financial Conduct Authority under the registration number 952652.
© 2026 WhatHouse?
Click here to see your activities