LoginSubscribe to Alerts

3 bedroom semi detached house in Winslow

Do you want to get more information from David Wilson Homes
Call: 03333558486

Mallard Meadows At Winslow by David Wilson Homes

Quail
20,750 Deposit Contribution* - Flooring package - Upgraded kitchen - Blinds package included - Bedroom 1 wardrobe included - The Quail - semi detached, featuring an open-plan kitchen diner with utility room and French doors. At the front of the home is a bay-fronted lounge. On the first floor are two double bedrooms and bathroom. While the top floor is dedicated to the main bedroom with en-suite and dressing area. *Incentive subject to completion by 26th June 2026. Part Exchange cannot be used in conjunction with any other offer.

Property Features

  • Ready to move into
  • £20,750 Deposit Contribution
  • OR Part Exchange your home'
  • Flooring & Blinds packages included
  • Upgraded kitchen & integrated appliances
  • Bedroom 1 wardrobe included
  • Solar panels & EV Charging pod
  • Bedroom1 + en-suite & dressing area

Quick mortgage affordability calculator

Tembo is an award-winning mortgage broker
Voted the UK’s Best Mortgage Broker by its customers in 2022 and 2023, Tembo is helping buyers discover their true mortgage affordability.

Tembo boosts its average customer’s maximum budget by £82,000. They do this by not only checking your affordability for over 100 lenders and standard products, but also for a range of budget-boosting specialist schemes.

Schemes include:
Ways for family to support using income, property or savings 
Private part buy part rent & government shared ownership 
Professional mortgages and 5.5x borrowing schemes
Sharia compliant home purchase plans
& so much more

Discover what your budget could be using our simple calculator, and afterwards access personalised interest rates through their full fact-find.

Your home may be repossessed if you do not keep up payments on your mortgage.

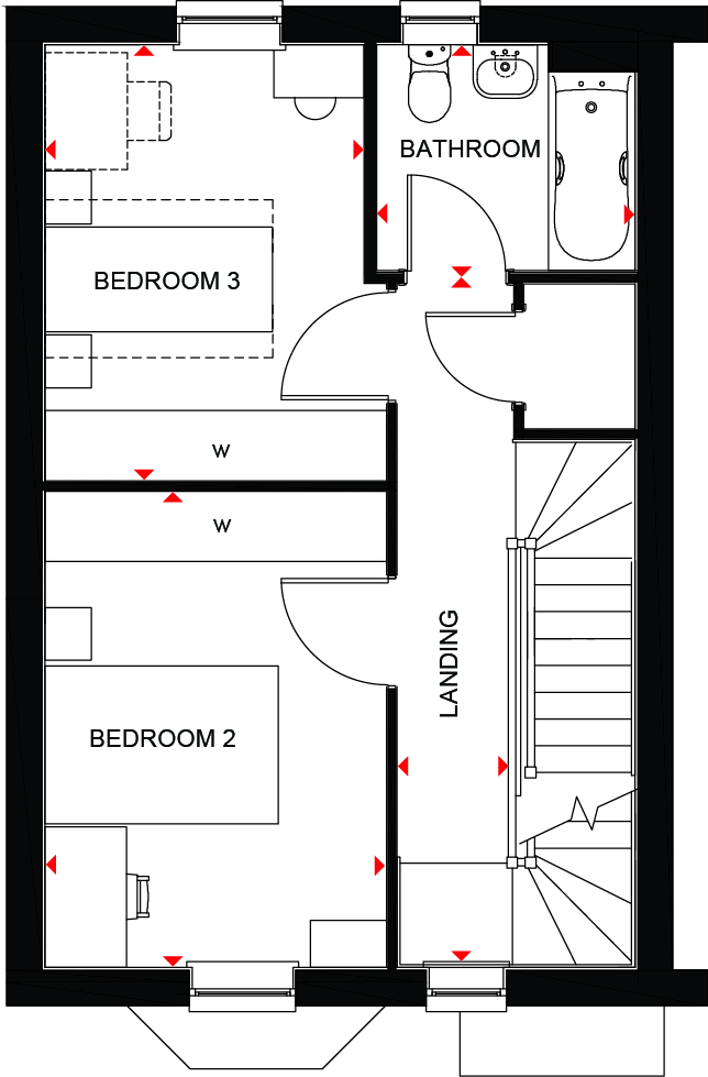
Property Floorplans

Click to expand floorplan image.

Property Tour


Contact David Wilson Homes

Want to know more about Mallard Meadows at Winslow from David Wilson Homes
David Wilson Homes will use this information to contact you.
ThankYou

Other properties on this development

List Sort: 
H873753 - Moreton
4 bedroom detached house for sale
4 Bedrooms
The Moreton - The ideal family home. Featuring an open-plan kitchen with breakfast and family areas with French doors onto the garden. Benefit from a handy adjoining utility room.
H873755 - Manning
5 bedroom detached house for sale
5 Bedrooms
The Manning features a bright and airy kitchen boasting breakfast, family and utility areas and a glazed bay that opens onto the garden. The lounge also features its own set of French doors.
H873752 - WINSTONE
4 bedroom detached house for sale
4 Bedrooms
EV CHARGING POD - SOLAR PANELS INCLUDED - THE WINSTONE SPECIAL - Featuring an open-plan kitchen with family/breakfast areas as well as a adjoined utility room.
H873751 - Avondale
4 bedroom detached house for sale
Video Tour 
4 Bedrooms
AVONDALE SPECIAL - Featuring an open-plan kitchen with bay-fronted dining area, breakfast area with French doors and an adjoined utility room. Whilst a bathroom completes this home.
H873745 - Avondale Special
4 bedroom detached house for sale
Video Tour 
4 Bedrooms
31,550 DEPOSIT CONTRIBUTION* - UPGRADED KITCHEN - FLOORING PACKAGE INCLUDED - SOLAR PANELS & EV CHARGING POD - AVONDALE SPECIAL - Featuring an open-plan kitchen with bay-fronted dining area, area and ...
H8737174 - Millford
4 bedroom detached house for sale
Video Tour 
4 Bedrooms
BRAND NEW HOME. PLTO 174, The Redstart at Mallard Meadows is a spacious 4-bedroom home with an integral garage. The hallway leads to a stylish kitchen diner with French doors to the garden.
H8737173 - Millford
4 bedroom detached house for sale
Video Tour 
4 Bedrooms
The Redstart is a spacious 4-bedroom home with an integral garage. The hallway leads to a stylish kitchen diner with French doors to the garden.
H873730 - Hertford Special
4 bedroom detached house for sale
Video Tour 
4 Bedrooms
26,000 DEPOSIT CONTRIBUTION* - UPGRADED KITCHEN + INTEGRATED APPLIANCES - FLOORING PACKAGE - GARAGE & TWO PARKING SPACES - The Hertford is a stylish four bedroom home spread across three floors, ...
H8737151 - Hertford Special
4 bedroom detached house for sale
Video Tour 
4 Bedrooms
Deposit Boost worth 25,500* - Plot 151 The Hertford Special - Discover an open-plan kitchen diner with bay-window and French doors onto the garden.
H8737138 - Ingleby Special
4 bedroom detached house for sale
Video Tour 
4 Bedrooms
SHOW HOME ON DEVELOPMENT* - Garage & 2 car private driveway - The Ingleby is a stylish 4 bedroom detached home designed for modern family living.
H8737139 - Ingleby Special
4 bedroom detached house for sale
Video Tour 
4 Bedrooms
10,000 DEPOSIT CONTRIBUTION - SOLAR PANELS & EV CHARGING POD INCLUDED - The Ingleby is a stylish 4 bedroom detached home designed for modern family living.
H8737146 - Hadley Special
3 bedroom detached house for sale
Video Tour 
3 Bedrooms
22,500 DEPOSIT CONTRIBUTION* - UPGRADED KITCHEN & INTEGRATED APPLIANCES - FLOORING PACKAGE - An impressive 3 bedroom home, the Hadley features a dual-aspect lounge, allowing for lots of natural light ...
H8737140 - Quail
3 bedroom end terraced house for sale
Video Tour 
3 Bedrooms
BRAND NEW HOME. PLOT 140 The Quail - Featuring an open-plan kitchen diner with utility room and French doors. At the front of the home is a bay-fronted lounge.
News stories about David Wilson Homes

Property Information

Price Details:
£414,995
Bedrooms:
3 bedrooms
Brochure:

Development Location

Individual savings and affordability may vary.

YOUR HOME MAY BE REPOSSESSED IF YOU DO NOT KEEP UP PAYMENTS ON YOUR MORTGAGE.

If you choose to use Tembo for mortgage advice, we may earn a commission from them for the introduction. This does not negatively impact the amount you'll pay for their service.

Tembo Money Limited (12631312) is a company registered in England and Wales with its registered office at 18 Crucifix Lane, London, SE1 3JW. Tembo is authorised and regulated by the Financial Conduct Authority under the registration number 952652.
© 2026 WhatHouse?
Click here to see your activities