LoginSubscribe to Alerts

4 bedroom home in Daresbury

Do you want to get more information from Castle Green Homes
Call: 01745 536677

Bridgewater View At Daresbury Garden Village by Castle Green Homes

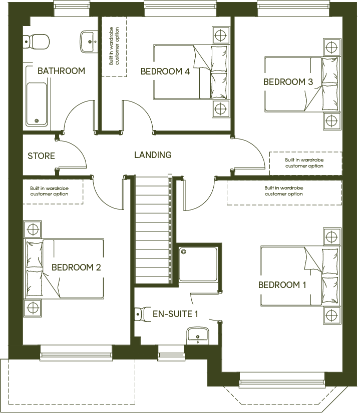
The Wentworth
The Wentworth fuses elegant design with contemporary features to create a comfortable home of distinction. The welcoming hallway leads to the spacious living area, while the open-plan kitchen/dining area forms the beating heart of this beautiful house. The en suite master bedroom is one of four first-floor bedrooms offering plenty of space. Finally, the cloakroom and an integrated garage are desirable features fit for modern family life.

The country village and parish of Daresbury is the perfect place to raise a family and the area boasts ten primary and secondary schools within its catchment, including Daresbury Primary School within the village itself. The community feel of Daresbury village allows for a close knit, sociable schooling experience. Daresbury Primary School is a small, mixed, inclusive school with a varied and engaging curriculum. Daresbury is also home to several secondary schools including Sandymoor Ormiston Academy and Bridgewater High School.

Superbly located just off the A56, Bridge Water View provides easy access to Manchester, Chester, and Liverpool. The city of Runcorn is just a ten-minute drive from Daresbury, as are the areas of Widnes and Frodsham. Warrington city centre is a fourteen-minute drive from the village of Daresbury. Flagship areas of public interest including Creamfields music festival, the Lewis Carroll Centre, and Sci-Tech Daresbury are situated within the village. Commuters will benefit from easy access to Daresbury Park bus station, Warrington Central train station, Runcorn East train station and the A56 dual carriageway.

There are a wide variety of local eateries in the village of Daresbury including country pubs such as The Ring O Bells. This offers a contemporary British pub lunch and comes with a spacious, green outdoor seating area and views of both the high street and All Saints Vicarage. The All Saints Vicarage is home to the Lewis Carroll Centre. The Steam Bake and Grill restaurant in Daresbury offers a cosy, casual atmosphere and a friendly environment with light bites, British classics, and foods of the world.

The leafy community of Daresbury village has a close-knit, friendly feel. This attractive green suburbia comes with a range of cultural activities and attractions for all the family, including The Lewis Carroll Centre, a visitor attraction for fans of the Alices Adventures in Wonderland author. Daresbury is home to the internationally renowned Sci-Tech Daresbury business park, which acts as a research facility and multi-functional workplace. Music lovers will know Daresbury as the home of Creamfields Festival, which takes place during the August Bank Holiday and is located in the Daresbury countryside. Green spaces aplenty, there are many places to take the children and dogs for a walk including Daresbury Firs, a beautiful woodland area, well upheld by the local council and suitable for children, dogs and bike rides.

Quick mortgage affordability calculator

Tembo is an award-winning mortgage broker
Voted the UK’s Best Mortgage Broker by its customers in 2022 and 2023, Tembo is helping buyers discover their true mortgage affordability.

Tembo boosts its average customer’s maximum budget by £82,000. They do this by not only checking your affordability for over 100 lenders and standard products, but also for a range of budget-boosting specialist schemes.

Schemes include:
Ways for family to support using income, property or savings 
Private part buy part rent & government shared ownership 
Professional mortgages and 5.5x borrowing schemes
Sharia compliant home purchase plans
& so much more

Discover what your budget could be using our simple calculator, and afterwards access personalised interest rates through their full fact-find.

Your home may be repossessed if you do not keep up payments on your mortgage.

Property Floorplans

Click to expand floorplan image.

Contact Castle Green Homes

Want to know more about Bridgewater View at Daresbury Garden Village from Castle Green Homes
Castle Green Homes will use this information to contact you.
ThankYou

Other properties on this development

List Sort: 
The Cambridge
4 bedroom home for sale
4 Bedrooms
Welcome to The Cambrdge in Daresbury, Warrington, where modern living meets spacious elegance
The Wiltshire
Studio home for sale
New Build Home
Step inside and be greeted by a sense of boundless space
The Alderton
4 bedroom home for sale
4 Bedrooms
The Alderton fuses elegant design with contemporary features to create a comfortable home of distinction
The Stratford
3 bedroom home for sale
3 Bedrooms
Discover The Stratford, a new three-bedroom home in Bridgewater View at Daresbury Garden Village
The Henley
3 bedroom home for sale
3 Bedrooms
An ideal choice for those looking for open plan living, to the rear of the ground floor is a spacious kitchen and dining room, where French doors look out onto the garden
The Chatsworth
Studio home for sale
New Build Home
The Chatsworth at Bridgewater View Phase 2 at Daresbury Garden Village is an ideal choice for those looking for open-plan living

Property Information

Price Details:
£460,000
Bedrooms:
4 bedrooms

Development Location

Individual savings and affordability may vary.

YOUR HOME MAY BE REPOSSESSED IF YOU DO NOT KEEP UP PAYMENTS ON YOUR MORTGAGE.

If you choose to use Tembo for mortgage advice, we may earn a commission from them for the introduction. This does not negatively impact the amount you'll pay for their service.

Tembo Money Limited (12631312) is a company registered in England and Wales with its registered office at 18 Crucifix Lane, London, SE1 3JW. Tembo is authorised and regulated by the Financial Conduct Authority under the registration number 952652.
© 2026 WhatHouse?
Click here to see your activities