LoginSubscribe to Alerts

6 bedroom detached house in Witherley

Do you want to get more information from Cartwright Homes
Call: 07974 049 335

Witherley Gardens by Cartwright Homes

Plot 5 – The Oak

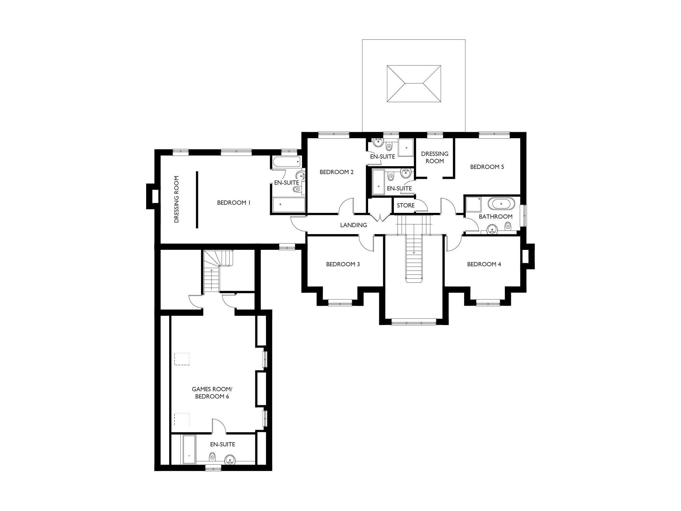
The six-bedroom Oak is the largest home in the collection, offering extensive living space perfectly suited to modern family life. The ground floor features a spacious kitchen and dining area alongside multiple reception rooms including a living room, lounge and snug, creating flexible spaces for relaxing and entertaining. A study, utility room and wet room add further practicality.

Upstairs, bedroom one benefits from a dressing room and en-suite, while bedroom two and bedroom five also enjoy their own en-suite facilities. Three further bedrooms are served by the family bathroom, and a generous games room, which can also function as bedroom six, provides additional versatility.

Outside, the property includes a large garage, driveway parking and an enclosed rear garden.

Quick mortgage affordability calculator

Tembo is an award-winning mortgage broker
Voted the UK’s Best Mortgage Broker by its customers in 2022 and 2023, Tembo is helping buyers discover their true mortgage affordability.

Tembo boosts its average customer’s maximum budget by £82,000. They do this by not only checking your affordability for over 100 lenders and standard products, but also for a range of budget-boosting specialist schemes.

Schemes include:
Ways for family to support using income, property or savings 
Private part buy part rent & government shared ownership 
Professional mortgages and 5.5x borrowing schemes
Sharia compliant home purchase plans
& so much more

Discover what your budget could be using our simple calculator, and afterwards access personalised interest rates through their full fact-find.

Your home may be repossessed if you do not keep up payments on your mortgage.

Property Floorplans

Click to expand floorplan image.

Contact Cartwright Homes

Want to know more about Witherley Gardens from Cartwright Homes
Cartwright Homes will use this information to contact you.
ThankYou

Other properties on this development

List Sort: 
Plot 4 – The Cedar
5 bedroom detached house for sale
5 Bedrooms
The five-bedroom Cedar combines impressive design with spacious and flexible living accommodation. Two further bedrooms are served by the family bathroom.
Plot 3 – The Birch
5 bedroom detached house for sale
5 Bedrooms
The five-bedroom Birch offers generous living accommodation designed for modern family life. A separate living room, study, utility room and guest cloakroom complete the ground floor.
Plot 2 – The Maple
4 bedroom detached house for sale
4 Bedrooms
The four-bedroom Maple combines a contemporary layout with generous living spaces, creating an ideal home for growing families. Two further bedrooms are served by the family bathroom.
Plot 1 – The Willow
3 bedroom detached house for sale
3 Bedrooms
The three-bedroom Willow combines elegant design with practical living spaces, creating a welcoming home ideal for modern family life.

Property Information

Price Details:
£1,400,000
Bedrooms:
6 bedrooms
Development:
Brochure:

Development Location

Individual savings and affordability may vary.

YOUR HOME MAY BE REPOSSESSED IF YOU DO NOT KEEP UP PAYMENTS ON YOUR MORTGAGE.

If you choose to use Tembo for mortgage advice, we may earn a commission from them for the introduction. This does not negatively impact the amount you'll pay for their service.

Tembo Money Limited (12631312) is a company registered in England and Wales with its registered office at 18 Crucifix Lane, London, SE1 3JW. Tembo is authorised and regulated by the Financial Conduct Authority under the registration number 952652.
© 2026 WhatHouse?
Click here to see your activities