LoginSubscribe to Alerts

Persimmon Homes | New Builds in Michaels Grove 🏡 | WhatHouse

Do you want to get more information from Persimmon Homes
Call: 01443 584 102

Property prices from £229,995

Welcome to Michaels Grove modern new houses for sale in Pontyclun

Discover Michaels Grove in the beautiful and historic village of Llanharan, Pontyclun, a charming edge-of-town development offering two, three, four, and five-bedroom homes designed for modern living. With dedicated green spaces, energy-efficient features and a setting surrounded by nature, this is a location that is both calm and connected.

Stylish new build homes in South Wales

Thoughtfully planned layouts and landscaped areas make our houses for sale in Pontyclun a welcoming community. Enjoy peaceful walks, wildlife-friendly spaces and a location that blends countryside calm with easy access to local amenities and vibrant towns nearby.

New build homes with excellent transport links to Cardiff

Commuting is simple with Llanharan train station just a mile away, offering regular, direct routes to Cardiff. The M4 is close by for quick road connections to Swansea and Bridgend to the west and Cardiff and Bristol to the East, making work and weekend travel effortless.

Everything you need on your doorstep

Llanharan is a thriving village with shops, cafes, schools and sports facilities all within easy reach. Nearby Pontyclun and Talbot Green provide even more choice, from supermarkets to retail parks, ensuring everyday essentials are never far away.

Explore the outdoors in South Wales

Surrounded by scenic countryside, Michaels Grove is perfect for nature lovers. Enjoy local trails in the neighbouring Brynna Woods, open green spaces and the beauty of South Wales right on your doorstep, an ideal escape from the bustle of city life.

Ready to make your move?

To explore our new houses for sale in Llanharan and start your new build journey, speak to one of our friendly sales advisors today.

This development offers the following schemes:

  • Part Exchange your home
  • Home Change
  • Help to Buy in Wales Scheme, New Homes

Schemes are available on selected plots only, subject to status, terms and conditions apply. Contact the development for latest information.

Quick mortgage affordability calculator

Tembo is an award-winning mortgage broker
Voted the UK’s Best Mortgage Broker by its customers in 2022 and 2023, Tembo is helping buyers discover their true mortgage affordability.

Tembo boosts its average customer’s maximum budget by £82,000. They do this by not only checking your affordability for over 100 lenders and standard products, but also for a range of budget-boosting specialist schemes.

Schemes include:
Ways for family to support using income, property or savings 
Private part buy part rent & government shared ownership 
Professional mortgages and 5.5x borrowing schemes
Sharia compliant home purchase plans
& so much more

Discover what your budget could be using our simple calculator, and afterwards access personalised interest rates through their full fact-find.

Your home may be repossessed if you do not keep up payments on your mortgage.

Properties on this development

47 - The Kielder
4 bedroom detached house for sale
Video Tour 
4 Bedrooms
The Kielder is a four-bedroom detached family home thats perfect for modern living with an open-plan kitchen/family room, a living room, a dining room, a downstairs WC and a utility room with outside ...

1 - The Whiteleaf
4 bedroom detached house for sale
Video Tour 
4 Bedrooms
The Whiteleaf is a four-bedroom family home. The kitchen/breakfast room enjoys an open aspect through French doors. There is a living room, a dining room, a WC and utility.

7 - The Brampton
4 bedroom detached house for sale
Video Tour 
4 Bedrooms
The Brampton has the flexibility of open-plan space as well as separate private space.

18 - The Barndale
3 bedroom detached house for sale
3 Bedrooms
The Barndale has a bright open plan kitchen/dining room leading to a handy utility room. The spacious living room has French doors leading into the garden.

94 - The Sherwood
3 bedroom detached house for sale
Video Tour 
3 Bedrooms
Designed with families in mind, the Sherwood is a stunning three-bedroom detached home. Theres also a generous front-aspect living room and an en suite to bedroom one.

9 - The Sherwood
3 bedroom detached house for sale
Video Tour 
3 Bedrooms
Designed with families in mind, the Sherwood is a stunning three-bedroom detached home. Theres also a generous front-aspect living room and an en suite to bedroom one.

2 - The Sherwood
3 bedroom detached house for sale
Video Tour 
3 Bedrooms
This is a popular three-bedroom home. The Sherwood has an open-plan kitchen/dining room and a bright front-aspect living room.

20 - The Deepdale
3 bedroom semi detached house for sale
Video Tour 
3 Bedrooms
The Deepdale has a lovely balanced feel, created by a central entrance hall and generous living space to either side. The third, smaller room would make a great home office.

25 - The Danbury
3 bedroom semi detached house for sale
Video Tour 
3 Bedrooms
The three-bedroom Danbury has an open plan kitchen/dining room with garden access and a spacious front-aspect living room thats ideal for entertaining.

24 - The Danbury
3 bedroom semi detached house for sale
Video Tour 
3 Bedrooms
The three-bedroom Danbury has an open plan kitchen/dining room with garden access and a spacious front-aspect living room thats ideal for entertaining.

21 - The Alnmouth
2 bedroom semi detached house for sale
Video Tour 
2 Bedrooms
Perfectly proportioned, the Alnmouth has a stylish open-plan kitchen/dining/living room. It features flexible first-floor rooms, a good-sized family bathroom, handy storage cupboards and parking.

46 - The Lambridge
4 bedroom detached house for sale
4 Bedrooms
The Lambridge is a four-bedroom family home with a spacious kitchen/dining area with French doors to the rear garden, a bright living room with a bay window, utility room, and a downstairs WC.

Development Information

Price Details:
£229,995 - £455,000
Location:
Pencoed, Bridgend CF72
Property Details:
2 - 4 bedroom properties

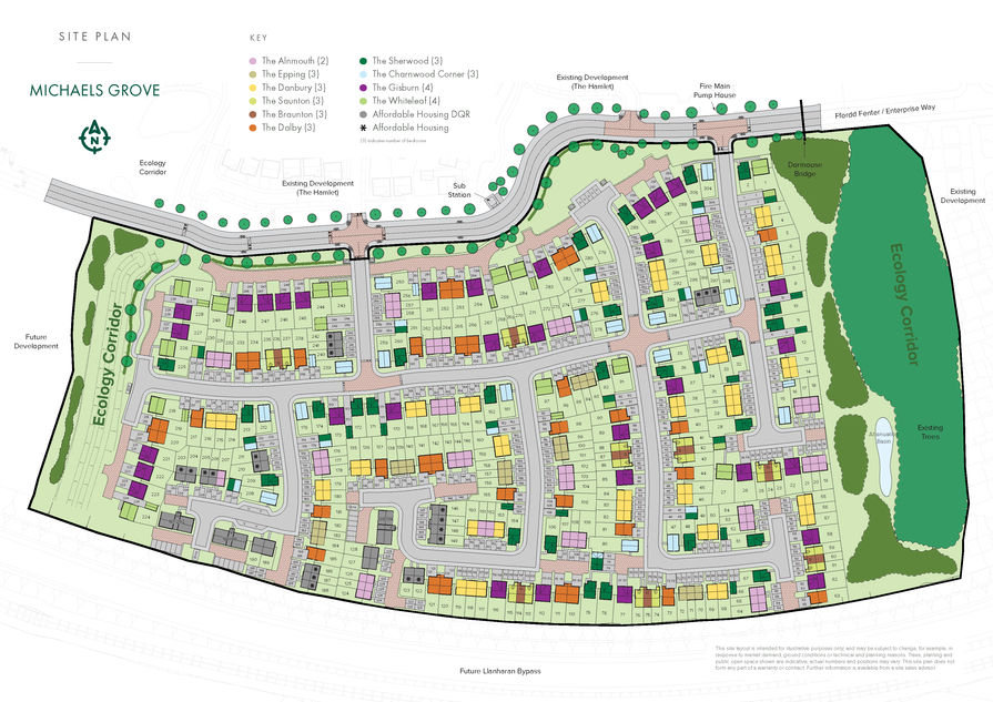
Development Site Plan

Development Location

Contact Persimmon Homes

Want to know more about Michaels Grove from Persimmon Homes
Persimmon Homes will use this information to contact you.
ThankYou
Individual savings and affordability may vary.

YOUR HOME MAY BE REPOSSESSED IF YOU DO NOT KEEP UP PAYMENTS ON YOUR MORTGAGE.

If you choose to use Tembo for mortgage advice, we may earn a commission from them for the introduction. This does not negatively impact the amount you'll pay for their service.

Tembo Money Limited (12631312) is a company registered in England and Wales with its registered office at 18 Crucifix Lane, London, SE1 3JW. Tembo is authorised and regulated by the Financial Conduct Authority under the registration number 952652.
© 2026 WhatHouse?
Click here to see your activities