LoginSubscribe to Alerts

3 bedroom detached house in Rothwell

Do you want to get more information from Orbit Homes

Orbit Homes At Woodland Valley by Orbit Homes

Plot 503 Pitsford   Semi detached

The Pitsford is a 3-bedroom house with accommodation built over three floors.

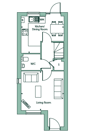
The entrance hall leads into a dual aspect living room. Off the living room is a handy under stairs storage cupboard and cloakroom. The kitchen/dining room is situated at the rear of the property and is equipped with integrated appliances, including stainless-steel single oven, induction hob, extractor hood, fridge/freezer, and dishwasher, with a door leading to the garden.

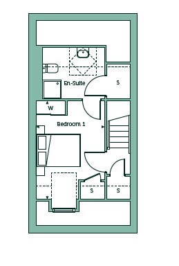
The first floor is home to bedrooms 2 and 3, and the family bathroom, which is fitted with contemporary white sanitaryware, Diesse wall tiles and a heated towel radiator.

The main bedroom is situated on the second floor and has a fitted wardrobe and en suite shower room. There are a further two storage cupboards on this floor.

Vinyl flooring is fitted throughout downstairs and to the bathroom and en suite, and carpets are fitted to the stairs, landing, and bedrooms.

There is landscaping to the front garden and turf, paved patio, 1.8m closeboard fencing, and an external tap to the rear garden.

This home is sold with two parking spaces. Anticipated build completion: October/November 2026.

Tenure: Leasehold

Years remaining on lease: 990 years

Initial ground rent: 0.00
Annual Service charge: 187.72
Service Charge Review Period: April (annually)
Council Tax Band: C (Please note this an estimated Council Tax Band and it will be confirmed by the local authority on completion of the property).

Predicted energy ratings - Energy Efficiency: A (93), Environmental Impact (CO2 rating): B (92)

Images shown are of typical Orbit show homes and are for illustrative purposes only.

The computer-generated images, floor plans, and dimensions are intended for guidance only and may be subject to revision during construction.


Price Example
25% shares from:
£68,750

Full Market Value from:
£275,000

Quick mortgage affordability calculator

Tembo is an award-winning mortgage broker
Voted the UK’s Best Mortgage Broker by its customers in 2022 and 2023, Tembo is helping buyers discover their true mortgage affordability.

Tembo boosts its average customer’s maximum budget by £82,000. They do this by not only checking your affordability for over 100 lenders and standard products, but also for a range of budget-boosting specialist schemes.

Schemes include:
Ways for family to support using income, property or savings 
Private part buy part rent & government shared ownership 
Professional mortgages and 5.5x borrowing schemes
Sharia compliant home purchase plans
& so much more

Discover what your budget could be using our simple calculator, and afterwards access personalised interest rates through their full fact-find.

Your home may be repossessed if you do not keep up payments on your mortgage.

Property Floorplans

Click to expand floorplan image.

Other properties on this development

List Sort: 
Plot 508 Harlestone   Semi detached
3 bedroom detached house for sale
3 Bedrooms
Plot 508 The Harlestone is a 3-bedroom semi-detached house, ideal for growing families
Plot 501 Pitsford   Semi detached
3 bedroom detached house for sale
3 Bedrooms
The Pitsford is a 3-bedroom house with accommodation built over three floors
Plot 511 Kislingbury   Semi detached
2 bedroom detached house for sale
2 Bedrooms
Plot 511 The Kislingbury is a 2-bedroom semi-detached house, perfect for first time buyers or downsizers

Property Information

Price Details:
£68,750 (based on 25% share)
Bedrooms:
3 bedrooms

Development Location

Individual savings and affordability may vary.

YOUR HOME MAY BE REPOSSESSED IF YOU DO NOT KEEP UP PAYMENTS ON YOUR MORTGAGE.

If you choose to use Tembo for mortgage advice, we may earn a commission from them for the introduction. This does not negatively impact the amount you'll pay for their service.

Tembo Money Limited (12631312) is a company registered in England and Wales with its registered office at 18 Crucifix Lane, London, SE1 3JW. Tembo is authorised and regulated by the Financial Conduct Authority under the registration number 952652.
© 2026 WhatHouse?
Click here to see your activities