LoginSubscribe to Alerts

3 bedroom home in Feniscowles

Do you want to get more information from Kingswood Homes

Green Hills The Homestead Collection Ridge Heights by Kingswood Homes

Rufford 5
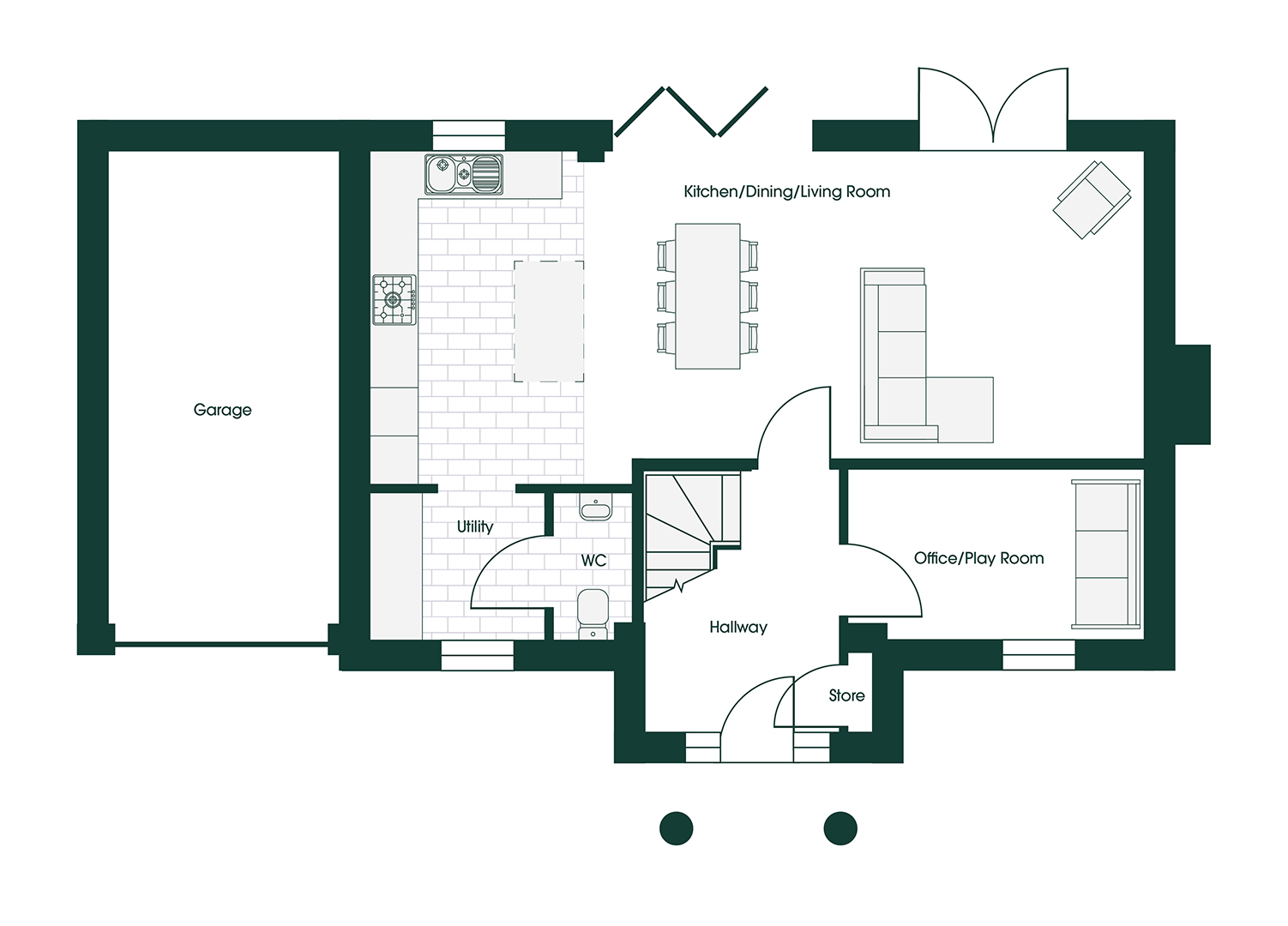
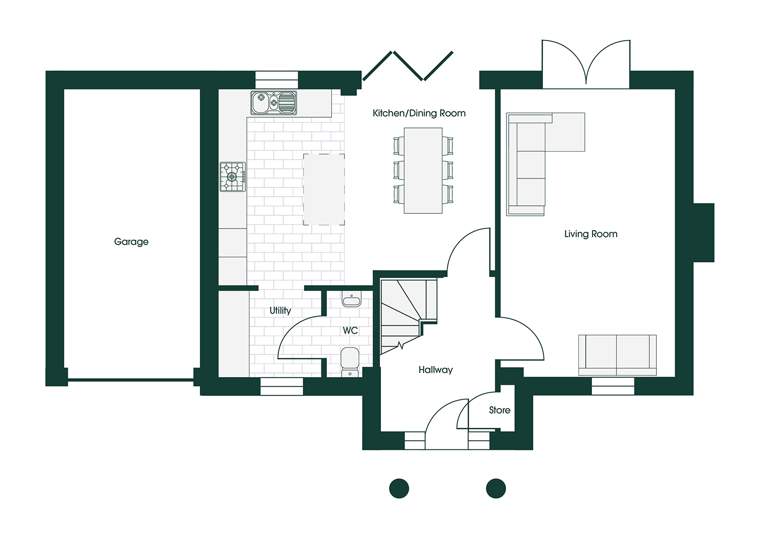
On the ground floor, youll find a large entrance hall with a convenient storage cupboard. The heart of this home is the spacious open-plan kitchen/diner/living space, featuring bi-fold doors that open onto the rear turfed garden and additional patio doors from the living area. A downstairs WC/utility room is accessible from the kitchen. At the front of the home, theres a versatile office/playroomperfect whether you're working from home or need a dedicated space for childrens toys.This home offers a wide range of flexible floor plans. You can relocate the office to the back of the home with garden access and create a front lounge, or remove the office/playroom entirely for a spacious family lounge while maintaining the open-plan living space. Alternatively, you can opt for a smaller kitchen/diner to accommodate a larger family loungethe choice is yours with Shape Your Home.Upstairs, youll discover four double bedrooms and one single bedroom. The master bedroom is a true retreat, complete with a dressing room and en-suite. The other bedrooms share a family bathroom, and theres additional storage space on this floor.The flexibility extends to the first floor, where you can choose from several layout options. Transform it into a four-bedroom home by converting the single bedroom into an additional en-suite, or create a three-bedroom layout with en-suites for each room.This exceptional Homestead home offers 16 different layout variations, making it one of our most adaptable house types.

Quick mortgage affordability calculator

Tembo is an award-winning mortgage broker
Voted the UK’s Best Mortgage Broker by its customers in 2022 and 2023, Tembo is helping buyers discover their true mortgage affordability.

Tembo boosts its average customer’s maximum budget by £82,000. They do this by not only checking your affordability for over 100 lenders and standard products, but also for a range of budget-boosting specialist schemes.

Schemes include:
Ways for family to support using income, property or savings 
Private part buy part rent & government shared ownership 
Professional mortgages and 5.5x borrowing schemes
Sharia compliant home purchase plans
& so much more

Discover what your budget could be using our simple calculator, and afterwards access personalised interest rates through their full fact-find.

Your home may be repossessed if you do not keep up payments on your mortgage.

Property Floorplans

Click to expand floorplan image.

Other properties on this development

List Sort: 
Rivington 5M
4 bedroom home for sale
4 Bedrooms
This five-bedroom home showcases elegant Georgian architecture, featuring Georgian windows, high ceilings, and optional coving detail
Ribchester 4
4 bedroom home for sale
4 Bedrooms
This thoughtfully designed family home perfectly balances contemporary comfort with practical living
Rivington 4
4 bedroom home for sale
4 Bedrooms
The heart of the Rivington 4 is the fantastic open plan kitchen/diner/living space to the rear of the home, with bi-fold doors out onto the turfed garden
Scarisbrick 4
3 bedroom home for sale
3 Bedrooms
It features elegant Georgian architecture, with Georgian windows, high ceilings, and optional coving detail
Croston 3M
3 bedroom home for sale
3 Bedrooms
This stunning home combines traditional Georgian-inspired architecture with modern, flexible living spaces that adapt to your lifestyle

Property Information

Price Details:
from £419,995
Bedrooms:
3 bedrooms

Development Location

Individual savings and affordability may vary.

YOUR HOME MAY BE REPOSSESSED IF YOU DO NOT KEEP UP PAYMENTS ON YOUR MORTGAGE.

If you choose to use Tembo for mortgage advice, we may earn a commission from them for the introduction. This does not negatively impact the amount you'll pay for their service.

Tembo Money Limited (12631312) is a company registered in England and Wales with its registered office at 18 Crucifix Lane, London, SE1 3JW. Tembo is authorised and regulated by the Financial Conduct Authority under the registration number 952652.
© 2026 WhatHouse?
Click here to see your activities