LoginSubscribe to Alerts

3 bedroom home in Billericay

Do you want to get more information from Hill

Kingsley Park by Hill

Kingsley Park The Ivy, Number 109

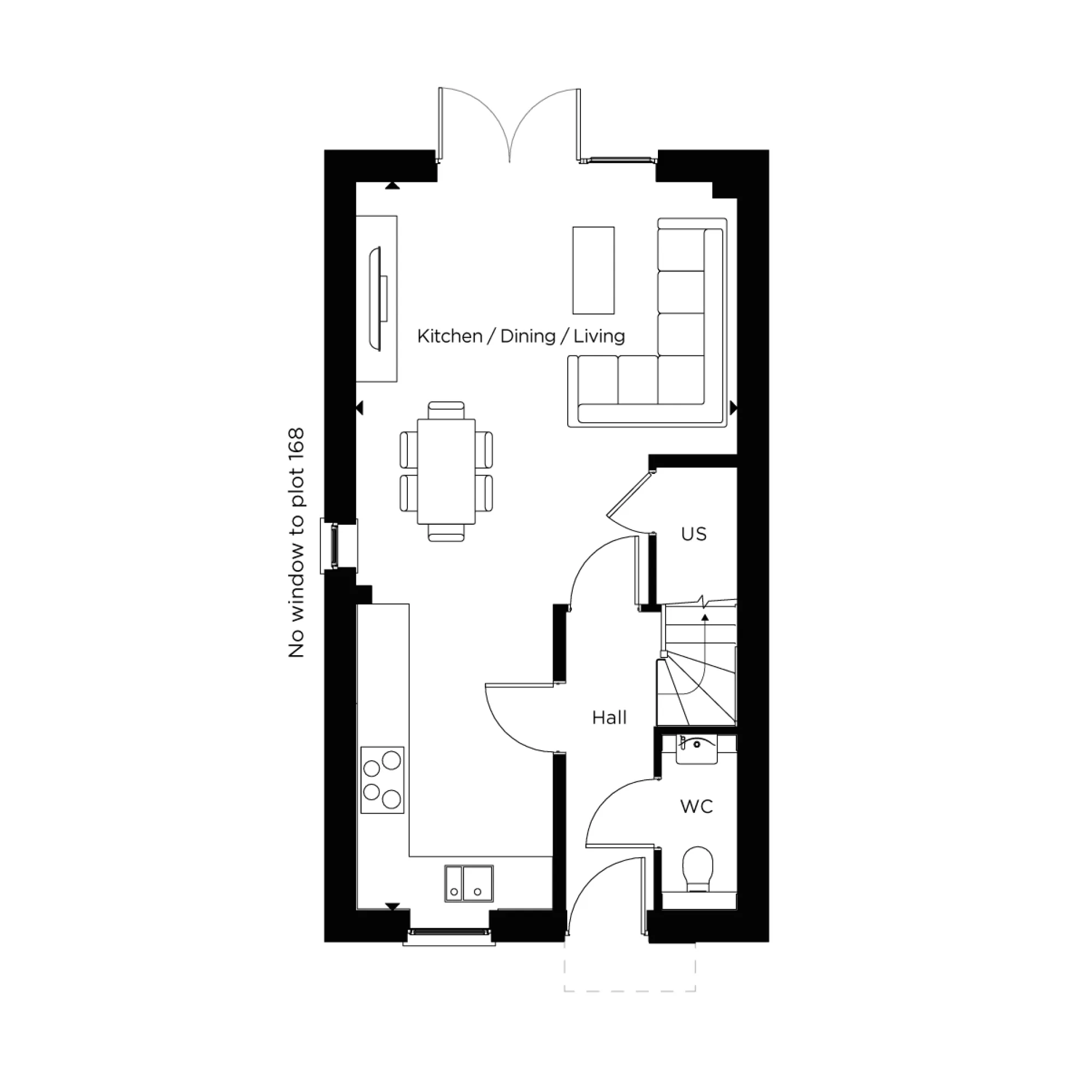
The Ivy, Number 109 is a welldesigned threebedroom semi-detached home offering comfortable and versatile living in a peaceful setting in Billericay. The interior is bright and welcoming, with wellproportioned spaces arranged across three floors to suit modern lifestyles. Generous double bedrooms are complemented by a fully inclusive specification with all kitchen appliances included, while private outdoor space and offstreet parking add everyday practicality.

Property Highlights:

  • Bright open plan kitchen/dining/living area spanning across the entire ground floor
  • The kitchen is a stylish space, finished with contemporary matt handleless units featuring softclose doors and drawers, complemented by sleek Caesarstone worktops with matching upstand and a coordinated splashback behind the induction hob
  • Highquality integrated appliances include a single oven, microwave, fridge/freezer, dishwasher, cooker hood and washer/dryer
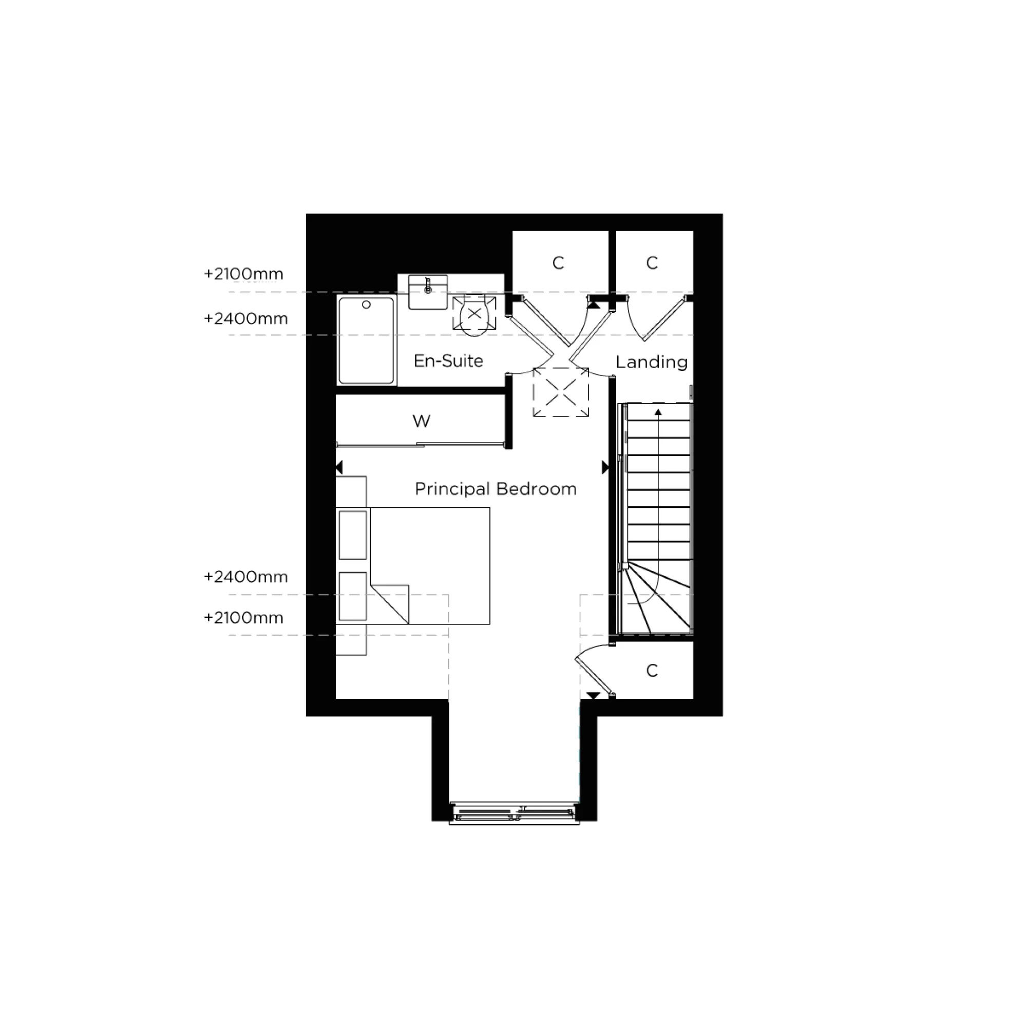
  • Three generous double bedrooms
  • The principal bedroom occupies the entire second floor, featuring a fitted wardrobe and a private en-suite, offering a luxurious retreat with a calm, light-filled ambience ideal for relaxed modern living.
  • Fitted with an air source heat pump, delivering energy-efficient, cost-effective heating
  • BT Openreach and Hyperoptic cabling have been installed to provide a superfast broadband connection.

A Lifestyle at Kingsley Park
Billericay is a vibrant, welcoming community, with beautiful green spaces on your doorstep, family-friendly attractions, and easy access to nearby towns, offering the perfect balance of relaxation at home, adventure, and connection.

  • A short 11-minute walk brings you to Tesco Express, making everyday shopping simple.
  • Reach Billericay Sports and Fitness Centre in a 21-minute walk from the development, making it easy to stay active, whether you're hitting the gym, joining a class, or enjoying some leisure sport.
  • A 7-minute drive from Kingsley Park, Norsey Wood Country Park offers a peaceful escape into nature, perfect for walks, family adventures, or simply enjoying the great outdoors.
  • Families will love the excellent schools in and around Billericay, offering a range of outstanding options that make everyday life easier and provide the perfect foundation for children to thrive.
  • For those keen to venture further, nearby Brentwood brings even more shops, restaurants, and leisure options, all just a short drive from home.

Seamless Travel and Connections
Life in Billericay keeps you effortlessly connected, whether commuting, working, or enjoying a weekend getaway.

  • Billericay Train Station, just a 9-minute bike ride away, offers quick and direct services into Stratford and London Liverpool Street, making city commutes stress-free.
  • For road travel, Billericay sits conveniently between the A127 and A12, with Chelmsford and the M25 Junction 28 interchange both under ten miles away, giving you flexible routes across London, Essex, and beyond.
  • London Stansted Airport is around a 40-minute drive, ensuring both domestic and international journeys are simple and convenient.

Discover your Future Home
Arrange a visit with our sales team and tour o

Quick mortgage affordability calculator

Tembo is an award-winning mortgage broker
Voted the UK’s Best Mortgage Broker by its customers in 2022 and 2023, Tembo is helping buyers discover their true mortgage affordability.

Tembo boosts its average customer’s maximum budget by £82,000. They do this by not only checking your affordability for over 100 lenders and standard products, but also for a range of budget-boosting specialist schemes.

Schemes include:
Ways for family to support using income, property or savings 
Private part buy part rent & government shared ownership 
Professional mortgages and 5.5x borrowing schemes
Sharia compliant home purchase plans
& so much more

Discover what your budget could be using our simple calculator, and afterwards access personalised interest rates through their full fact-find.

Your home may be repossessed if you do not keep up payments on your mortgage.

Property Floorplans

Click to expand floorplan image.

Other properties on this development

List Sort: 
Kingsley Park The Iris, Number 114
5 bedroom home for sale
5 Bedrooms
The Iris, Number 114 Kingsley Park, Billericay
Kingsley Park The Violet, Number 111
4 bedroom home for sale
4 Bedrooms
The Violet, Number 111 Kingsley Park, Billericay
Kingsley Park The Violet, Number 113
4 bedroom home for sale
4 Bedrooms
The Violet, Number 113 Kingsley Park, Billericay
Kingsley Park The Rose, Number 102
4 bedroom home for sale
4 Bedrooms
The Rose, Number 102 Kingsley Park, Billericay
Kingsley Park The Olive, Number 115.
4 bedroom home for sale
4 Bedrooms
The Olive, Number 115 Kingsley Park, Billericay
Kingsley Park The Holly, Number 87
3 bedroom home for sale
3 Bedrooms
The Holly, Number 87 Kingsley Park, Billericay

Property Information

Price Details:
£599,950
Bedrooms:
3 bedrooms
Development:

Development Location

Individual savings and affordability may vary.

YOUR HOME MAY BE REPOSSESSED IF YOU DO NOT KEEP UP PAYMENTS ON YOUR MORTGAGE.

If you choose to use Tembo for mortgage advice, we may earn a commission from them for the introduction. This does not negatively impact the amount you'll pay for their service.

Tembo Money Limited (12631312) is a company registered in England and Wales with its registered office at 18 Crucifix Lane, London, SE1 3JW. Tembo is authorised and regulated by the Financial Conduct Authority under the registration number 952652.
© 2026 WhatHouse?
Click here to see your activities